Estimate your costs based on your location and materials.
Yes! This plan can be customized—contact us for a free quote.

Yes! This plan can be customized—contact us for a free quote.
Optional foundations are available. Please fill out a mod request to receive your free quote.
Note: Porch sq ft figures may include any deck sq ft as well.
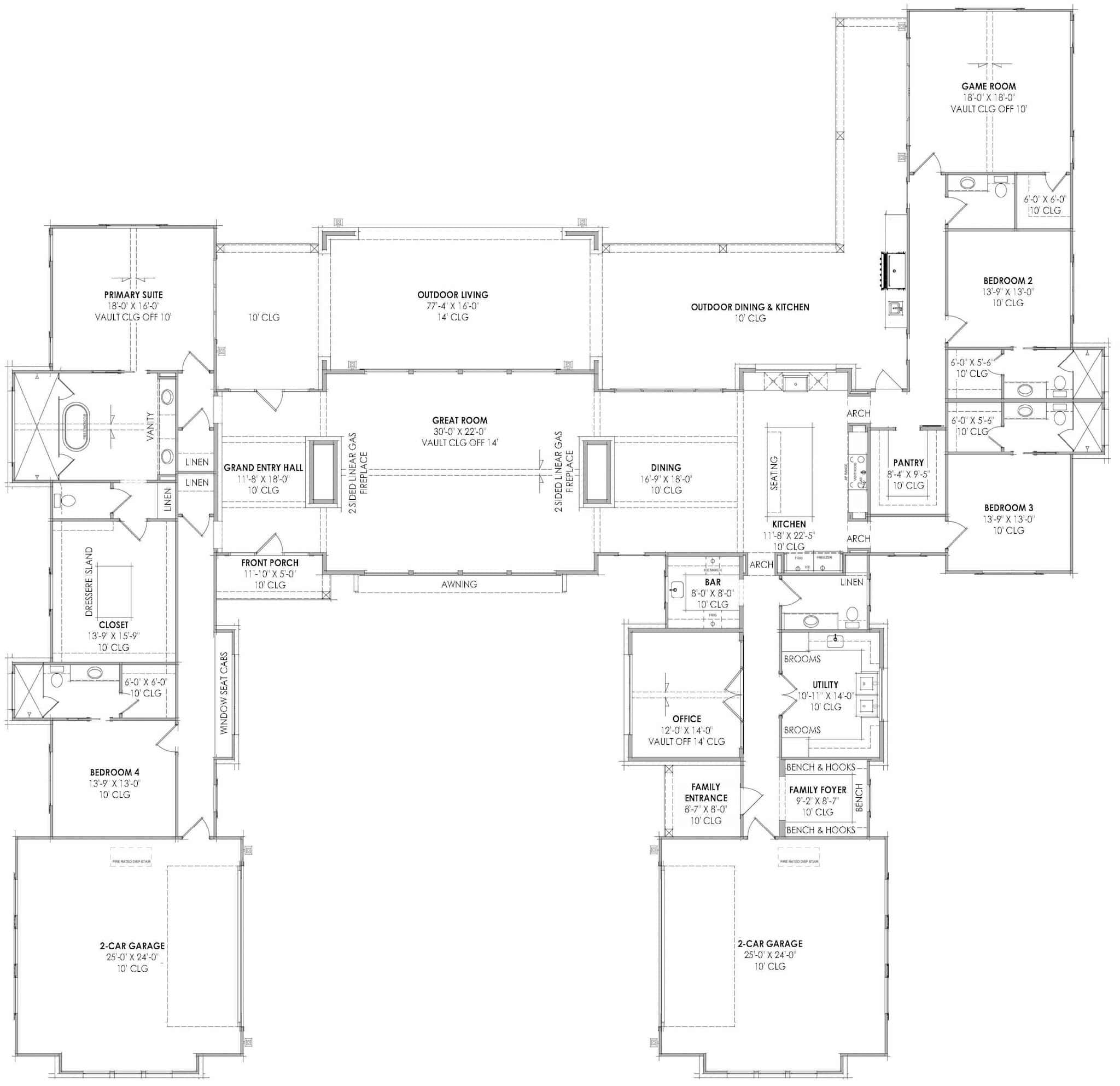
Defined by classic architecture and thoughtful planning, this 1-story Luxury house plan spans 4,944 square feet and features 4 bedrooms, 5 baths, and a 4-car garage. Each detail contributes to a warm and refined living experience. Ideal for those who value enduring style, this home presents:
Estimate your costs based on your location and materials.
All sales of house plans, modifications, and other products found on this site are final. No refunds or exchanges can be given once your order has begun the fulfillment process. Please see our Policies for additional information.
All plans offered on ThePlanCollection.com are designed to conform to the local building codes when and where the original plan was drawn.
The homes as shown in photographs and renderings may differ from the actual blueprints. For more detailed information, please review the floor plan images herein carefully.
Estimate your costs based on your location and materials.







