Estimate your costs based on your location and materials.
Yes! This plan can be customized—contact us for a free quote.

Yes! This plan can be customized—contact us for a free quote.
Optional foundations are available. Please fill out a mod request to receive your free quote.
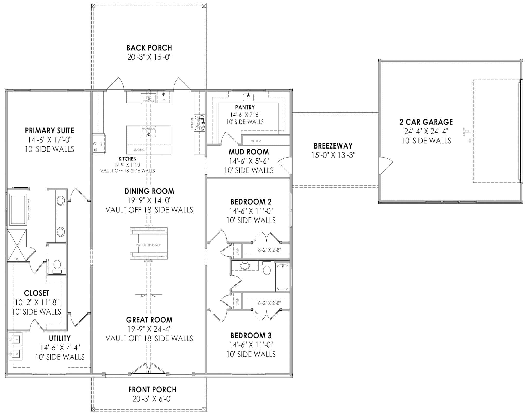
Spanning 2,500 square feet, this Barndominium style abode comprises 3 bedrooms, 2 baths, and a 2-car garage, infused with the enchantment of its enduring Modern Farmhouse characteristics. Moreover, ir delivers a delightful array of features, embodying elegance in every aspect:
Estimate your costs based on your location and materials.
All sales of house plans, modifications, and other products found on this site are final. No refunds or exchanges can be given once your order has begun the fulfillment process. Please see our Policies for additional information.
All plans offered on ThePlanCollection.com are designed to conform to the local building codes when and where the original plan was drawn.
The homes as shown in photographs and renderings may differ from the actual blueprints. For more detailed information, please review the floor plan images herein carefully.
Estimate your costs based on your location and materials.















