Estimate your costs based on your location and materials.
Yes! This plan can be customized—contact us for a free quote.

Yes! This plan can be customized—contact us for a free quote.
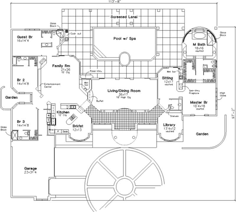
At the center of the plan, the expansive living/dining room opens right into the pool area. The family room and luxurious master suite also offer access to the pool and views of the screened lanai. A secluded master suite boasts a see-through fireplace and a private sitting room with outdoor access. Other extras in this home are a wine closet in the kitchen, a wet bar open to the pool area and a summer kitchen near the pool.
Estimate your costs based on your location and materials.
All sales of house plans, modifications, and other products found on this site are final. No refunds or exchanges can be given once your order has begun the fulfillment process. Please see our Policies for additional information.
All plans offered on ThePlanCollection.com are designed to conform to the local building codes when and where the original plan was drawn.
The homes as shown in photographs and renderings may differ from the actual blueprints. For more detailed information, please review the floor plan images herein carefully.
Estimate your costs based on your location and materials.

