Estimate your costs based on your location and materials.
Yes! This plan can be customized—contact us for a free quote.


Yes! This plan can be customized—contact us for a free quote.
PLEASE NOTE!! For this designer, The PDF that comes with the PRINT Packages (5 set+PDF and 8 set+PDF) is NOT Modifiable - it is for printing ONLY!
PLEASE NOTE!! Optional Foundations (foundations that cost extra money) will take 5-10 business days to complete.
Total covered square footage: 5355 square feet
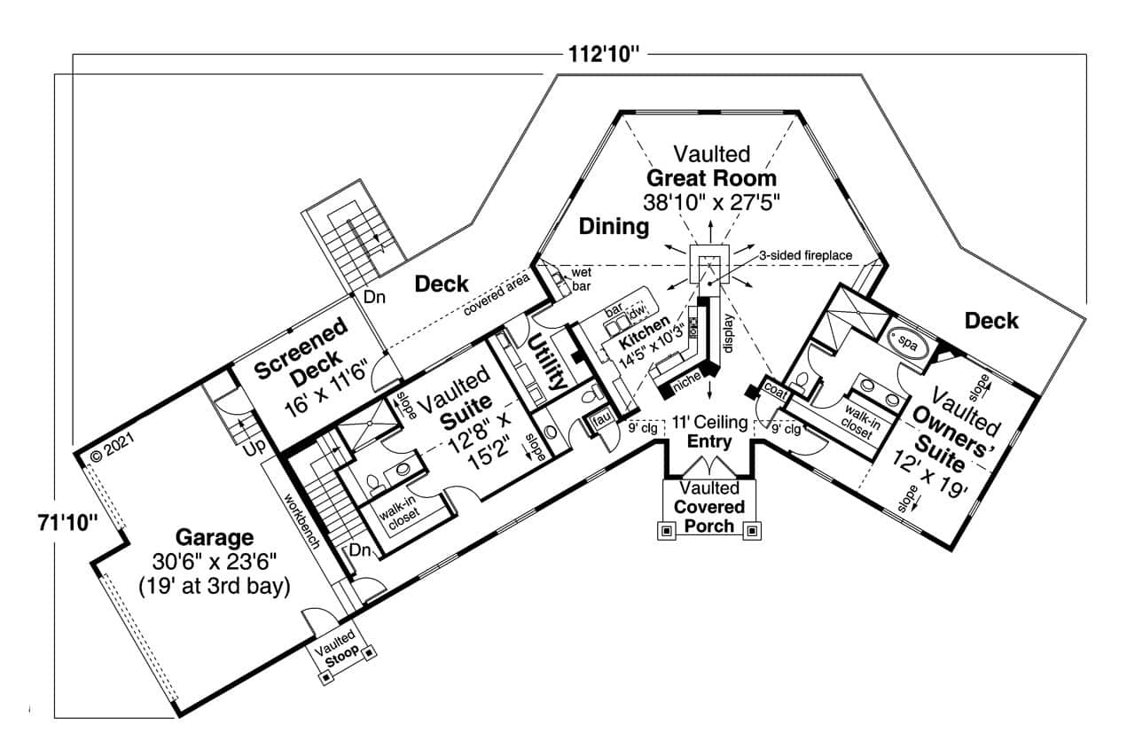
Relax and unwind in this warm and inviting European style house featuring a beautiful 3-sided fireplace in the vaulted Great Room. The luxurious single-story home's floor plan has 4461 square feet of heated and cooled living space with a daylight basement. You will also love these features:
• Two large bedroom suites on the main level
• Vaulted ceilings
• Good-size utility room with sink
• Game room
• Home theater
Estimate your costs based on your location and materials.
All sales of house plans, modifications, and other products found on this site are final. No refunds or exchanges can be given once your order has begun the fulfillment process. Please see our Policies for additional information.
All plans offered on ThePlanCollection.com are designed to conform to the local building codes when and where the original plan was drawn.
The homes as shown in photographs and renderings may differ from the actual blueprints. For more detailed information, please review the floor plan images herein carefully.
Estimate your costs based on your location and materials.







