Estimate your costs based on your location and materials.
Yes! This plan can be customized—contact us for a free quote.


Yes! This plan can be customized—contact us for a free quote.
Please Note: There might be a 4-5 day delay in getting the sales orders out due to updates being made to the designer's plans.
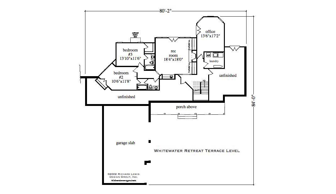
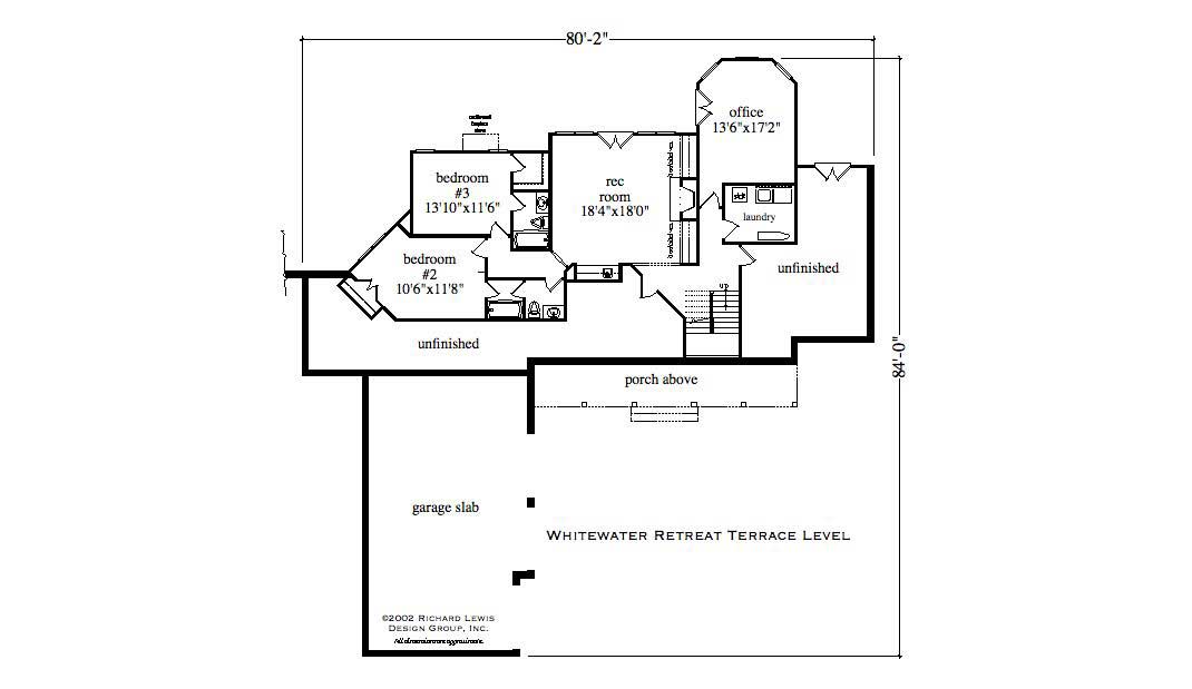
This plan takes full advantage of the scenery with windows that wrap the house from the kitchen to the Master Bath. Super features include the keeping room with its fireplace and coffered ceiling, the kitchen with loads of workspace and storage, vaulted family room, open formal dining room and a luxurious master retreat. The views also highlight the terrace level with additional bedrooms, a rec room, even an office that could be used as a different space if desired.
Estimate your costs based on your location and materials.
All sales of house plans, modifications, and other products found on this site are final. No refunds or exchanges can be given once your order has begun the fulfillment process. Please see our Policies for additional information.
All plans offered on ThePlanCollection.com are designed to conform to the local building codes when and where the original plan was drawn.
The homes as shown in photographs and renderings may differ from the actual blueprints. For more detailed information, please review the floor plan images herein carefully.
Estimate your costs based on your location and materials.












