Estimate your costs based on your location and materials.
Yes! This plan can be customized—contact us for a free quote.



Yes! This plan can be customized—contact us for a free quote.
PLEASE NOTE! This designer's plans do NOT come with framing!
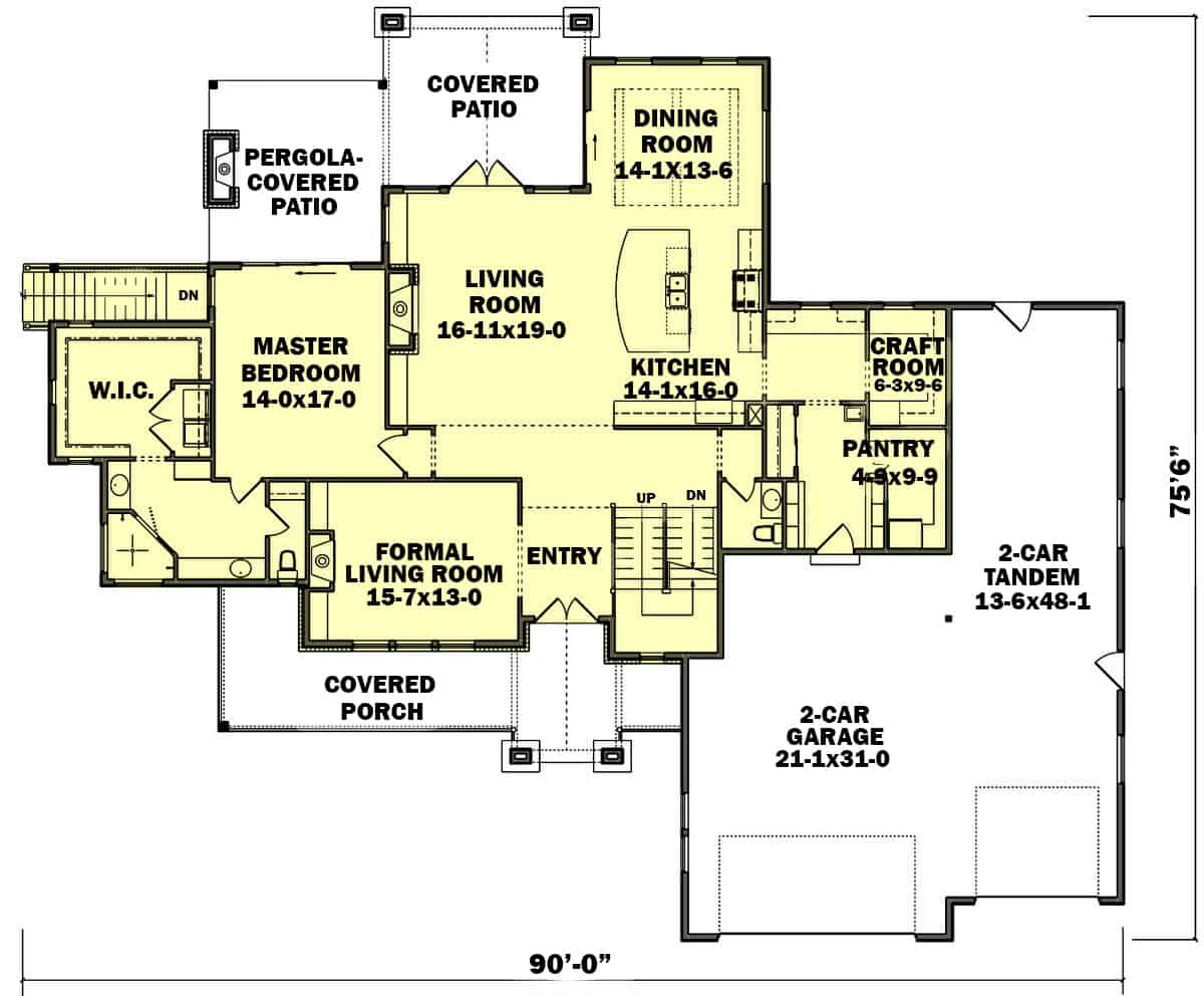
This Contemporary Country style home has so much to offer – from the architectural design and spacious layout to the gorgeous exterior design perfect for a family. The luxurious 2-story floor plan has 3717 square feet of heated and cooled living space on the main and upper levels with a 2258-square-foot unfinished daylight basement that you can finish at your option resulting in 1981 square feet of living space area downstairs, in addition to 277 square feet of unfinished storage.
The impressive entry portico will welcome you as you arrive, and the home's main...
Estimate your costs based on your location and materials.
All sales of house plans, modifications, and other products found on this site are final. No refunds or exchanges can be given once your order has begun the fulfillment process. Please see our Policies for additional information.
All plans offered on ThePlanCollection.com are designed to conform to the local building codes when and where the original plan was drawn.
The homes as shown in photographs and renderings may differ from the actual blueprints. For more detailed information, please review the floor plan images herein carefully.
Estimate your costs based on your location and materials.

























