Estimate your costs based on your location and materials.
Yes! This plan can be customized—contact us for a free quote.

Yes! This plan can be customized—contact us for a free quote.
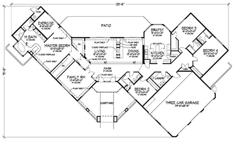
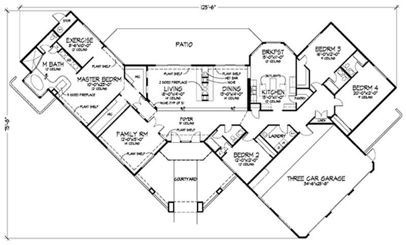
This sprawling one-story home serves as a stylish tribute to the traditional homes of the Southwest. Inside, the foyer steps up to the living and dining rooms, which share a see-through fireplace and a handy wet bar. Both rooms also include access to a patio. At day's end, the master suite serves as a refreshing retreat. In particular, the exercise room is a great bonus.
Estimate your costs based on your location and materials.
All sales of house plans, modifications, and other products found on this site are final. No refunds or exchanges can be given once your order has begun the fulfillment process. Please see our Policies for additional information.
All plans offered on ThePlanCollection.com are designed to conform to the local building codes when and where the original plan was drawn.
The homes as shown in photographs and renderings may differ from the actual blueprints. For more detailed information, please review the floor plan images herein carefully.
Estimate your costs based on your location and materials.

