Estimate your costs based on your location and materials.
Yes! This plan can be customized—contact us for a free quote.

Yes! This plan can be customized—contact us for a free quote.
PLEASE NOTE!! For this designer, The PDF that comes with the PRINT Packages (5 set+PDF and 8 set+PDF) is NOT Modifiable - it is for printing ONLY! PLEASE NOTE!! Optional Foundations (foundations that cost extra money) will take 5-10 business days to complete.
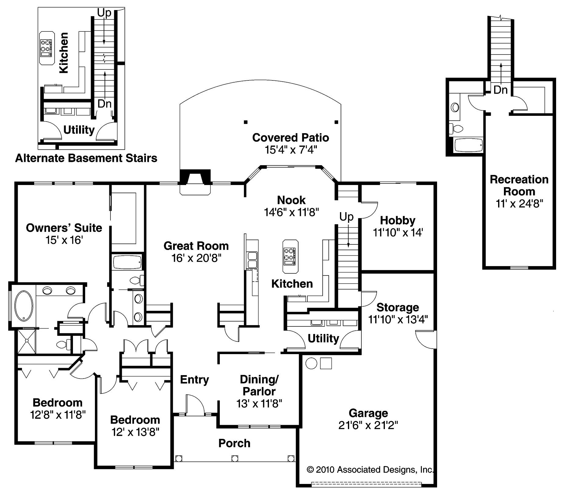
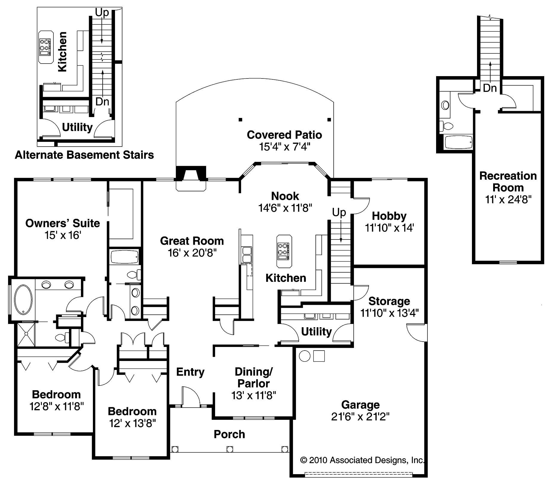
Traditional home plans. Smooth, painted columns and graceful keystone arches enhance classic look of this traditional ranch style home. Windows flank fireplace in spacious great room at the home's core. Glass wraps around a bayed nook in the large country kitchen. Graceful keystone arches and bold corner quoins lend a classic look to the #108-1089. Smooth, painted columns enhance the effect, while supporting the roof of a wide and welcoming covered porch. This is basically a single story home with a recreation room, storage and bathroom over the garage. Entering, you step into an entry...
Estimate your costs based on your location and materials.
All sales of house plans, modifications, and other products found on this site are final. No refunds or exchanges can be given once your order has begun the fulfillment process. Please see our Policies for additional information.
All plans offered on ThePlanCollection.com are designed to conform to the local building codes when and where the original plan was drawn.
The homes as shown in photographs and renderings may differ from the actual blueprints. For more detailed information, please review the floor plan images herein carefully.
Estimate your costs based on your location and materials.


