Estimate your costs based on your location and materials.
Yes! This plan can be customized—contact us for a free quote.


Yes! This plan can be customized—contact us for a free quote.
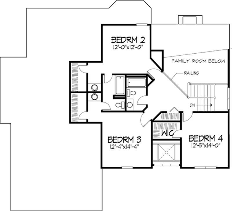
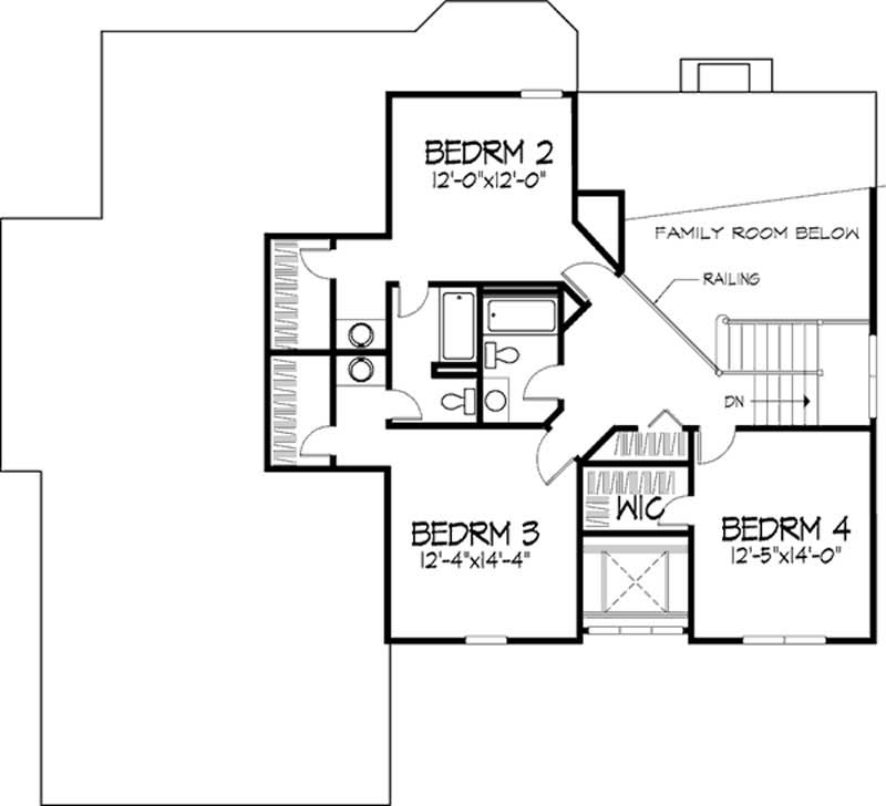
This beautiful home is marked by classic shutters, sparkling windows and a brick finish. Inside, a vaulted ceiling and a fireplace help the family room become this home's centerpiece. The nearby kitchen features an island worktop, a sun-drenched breakfast nook and easy access to the formal dining room through a hallway with a butler's pantry. A stunning tray ceiling tops the master suite, which also offers a corner window treatment and a private bath with a garden tub and dual sinks. Upstairs, two secondary bedrooms share a split bath. An additional bedroom boasts a walk-in closet and is...
Estimate your costs based on your location and materials.
All sales of house plans, modifications, and other products found on this site are final. No refunds or exchanges can be given once your order has begun the fulfillment process. Please see our Policies for additional information.
All plans offered on ThePlanCollection.com are designed to conform to the local building codes when and where the original plan was drawn.
The homes as shown in photographs and renderings may differ from the actual blueprints. For more detailed information, please review the floor plan images herein carefully.
Estimate your costs based on your location and materials.


