3-Bedroom, 2778 Sq Ft Coastal Plan with Family Room

Front elevation of Coastal home (ThePlanCollection: House Plan #108-1593)

Images/Plans copyrighted by designer. Photos may reflect homeowner modifications.

About House Plan #108-1593

Sq Ft
2778
Sq Ft
Bedrooms
3
Bedrooms
Bathroom
2
Baths
Half Baths
1
Half Baths
Bedrooms
3
Cars
Bedrooms
1
Stories
Bedrooms
88' 0'
Width
Bedrooms
56
Depth
Starting at$1635.00What's included
STEP 1Bedrooms
STEP 2Bedrooms
STEP 3Bedrooms

Subtotal:$0
BedroomsBest Price Guaranteed
Plan Collection

How much will it cost to build?

Estimate your costs based on your location and materials.

Free Cost Instant Estimator

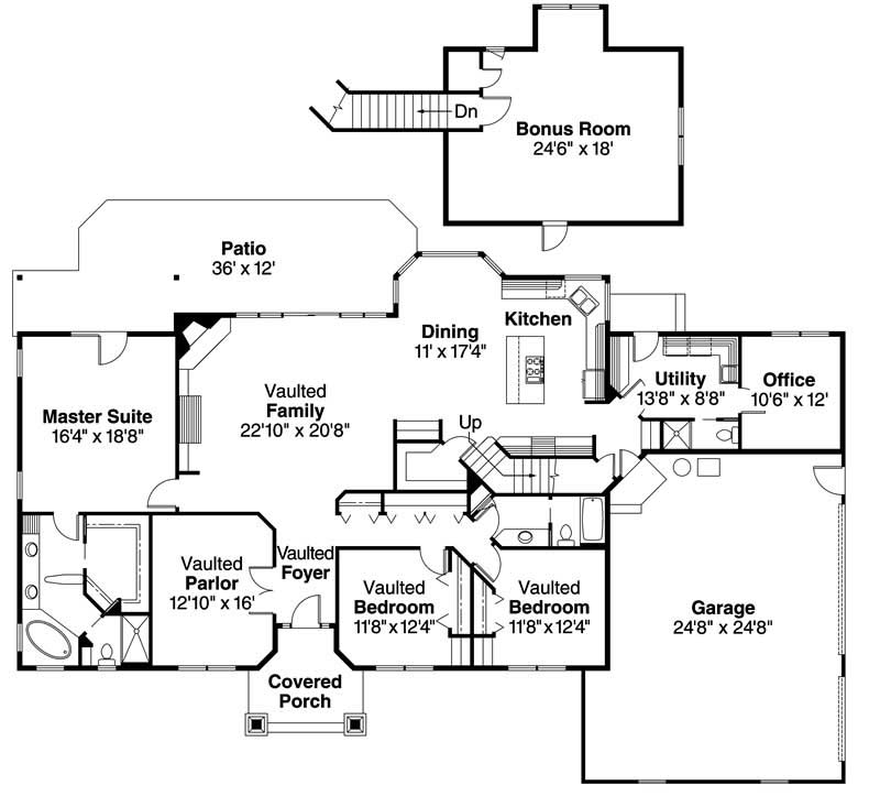
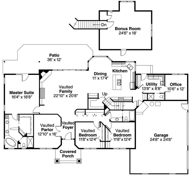
Floor Plans

FLOOR PLANS
FLOOR PLANS
Plan Collection

Can I modify this plan?

Yes! This plan can be customized—contact us for a free quote.

Additional Notes from Designer

PLEASE NOTE!! For this designer, The PDF that comes with the PRINT Packages (5 set+PDF and 8 set+PDF) is NOT Modifiable - it is for printing ONLY! PLEASE NOTE!! Optional Foundations (foundations that cost extra money) will take 5-10 business days to complete.

House Plan Description

This is a single story, craftsman style house plan with 2778 total living square feet. This craftsman home plan has clean, simple lines accented by earthy stone veneer which supports for its tapered columns. Sparkling sets of double windows flank the sliding glass doors in the family room. The high-ceilinged master suite features a huge walk-in closet and deep soaking tub.

Home Details

Summary
Plan #:108-1593
Starting at:$1635.00
Floors:1
Bedrooms:3
Full Baths:2
Half Baths:1
Garage:
Square Footage
Heated Area:2778 Sq. Ft.
First Floor:2778 Sq. Ft.
Unheated Area:
Bonus Room:519 Sq. Ft.
Dimensions
Depth:56' 6''
Ridge Height:25-8' 0''
Architectural Styles
Exterior Wall Material
Wood Siding
Roof Pitch
8/12
Ceiling Height
9 Foot Ceiling
Special Feature
Family Room
Garage Type
Attached GarageSide Entry
Fireplaces
One Fireplace
Exterior Wall Framing
2x6

What’s Included

Most plan sets include the following:

icon text-secondary-400 included Artist’s rendering of the home,

icon text-secondary-400 included Front/Rear/Left and Right Elevations,

icon text-secondary-400 included Main floor plan, Second or Basement floor plans (if applicable),

icon text-secondary-400 included Foundation plan and detail,

icon text-secondary-400 included Floor framing plan,

icon text-secondary-400 included Roof framing plan, supporting details and

icon text-secondary-400 included Electric layout.

What’s Not Included

These items are  NOT included:

icon text-secondary-400 includedArchitectural or Engineering Stamp - handled locally if required.

icon text-secondary-400 includedSite Plan - handled locally when required.

icon text-secondary-400 includedMechanical Drawings (location of heating and air equipment and ductwork) - your subcontractors handle this.

icon text-secondary-400 includedPlumbing Drawings (drawings showing the actual plumbing pipe sizes and locations) - your subcontractors handle this.

icon text-secondary-400 includedEnergy calculations - handled locally when required.

Related House Plans

Plan Collection
Plan Collection
Plan Collection
Plan#142-1168
Starting at$1495
2597
Sq Ft
1
Story
3
Bed
2.5
Bath
2
Car
Plan Collection
Plan Collection
Plan Collection
Plan#117-1092
Starting at$1295
2091
Sq Ft
1
Story
3
Bed
2.5
Bath
2
Car
Plan Collection
Plan Collection
Plan Collection
Plan#153-1432
Starting at$1200
2096
Sq Ft
1
Story
3
Bed
2.5
Bath
3
Car
View All

Other Plans By This Designer

Plan Collection
Plan Collection
Plan Collection
Plan#108-1268
Starting at$1510
3384
Sq Ft
1
Story
3
Bed
4.5
Bath
3
Car
Plan Collection
Plan Collection
Plan Collection
Plan#108-1562
Starting at$1765
3537
Sq Ft
1
Story
3
Bed
3
Bath
3
Car
Plan Collection
Plan Collection
Plan Collection
Plan#108-1538
Starting at$690
1216
Sq Ft
2
Story
2
Bed
2
Bath
0
Car