Estimate your costs based on your location and materials.
Yes! This plan can be customized—contact us for a free quote.

Yes! This plan can be customized—contact us for a free quote.
PLEASE NOTE!! For this designer, The PDF that comes with the PRINT Packages (5 set+PDF and 8 set+PDF) is NOT Modifiable - it is for printing ONLY!
PLEASE NOTE!! Optional Foundations (foundations that cost extra money) will take 5-10 business days to complete.
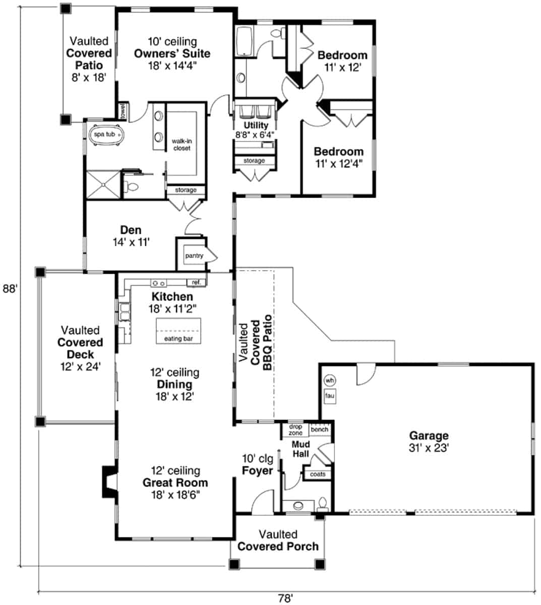
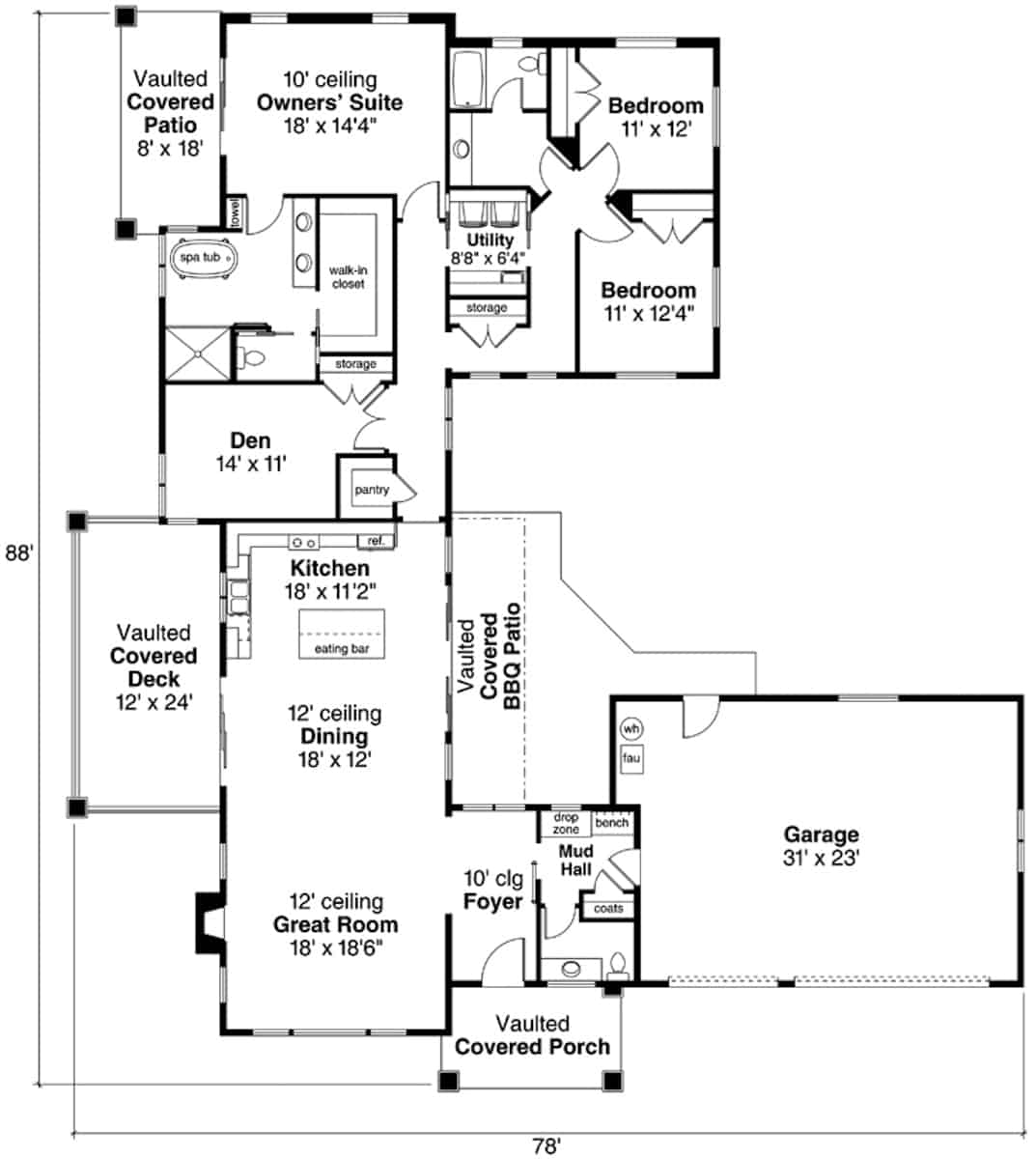
Total under-roof square footage: 3355 square feet
This may be the one you’ve been waiting for! The gorgeous Contemporary style home is made with an attention to every little detail, providing spacious rooms that every member of the family will surely love. The enchanting 1-story family home has 2577 square feet of fully conditioned living space and includes the following great amenities:
• Walk-in kitchen pantry
• High ceilings up to 12 feet tall
• Fireplace in the Great Room
• Mudroom with a bench
• Private patio...
Estimate your costs based on your location and materials.
All sales of house plans, modifications, and other products found on this site are final. No refunds or exchanges can be given once your order has begun the fulfillment process. Please see our Policies for additional information.
All plans offered on ThePlanCollection.com are designed to conform to the local building codes when and where the original plan was drawn.
The homes as shown in photographs and renderings may differ from the actual blueprints. For more detailed information, please review the floor plan images herein carefully.
Estimate your costs based on your location and materials.




