Estimate your costs based on your location and materials.
Yes! This plan can be customized—contact us for a free quote.


Yes! This plan can be customized—contact us for a free quote.
NO Material lists.
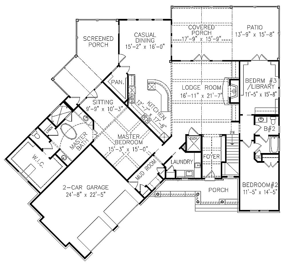
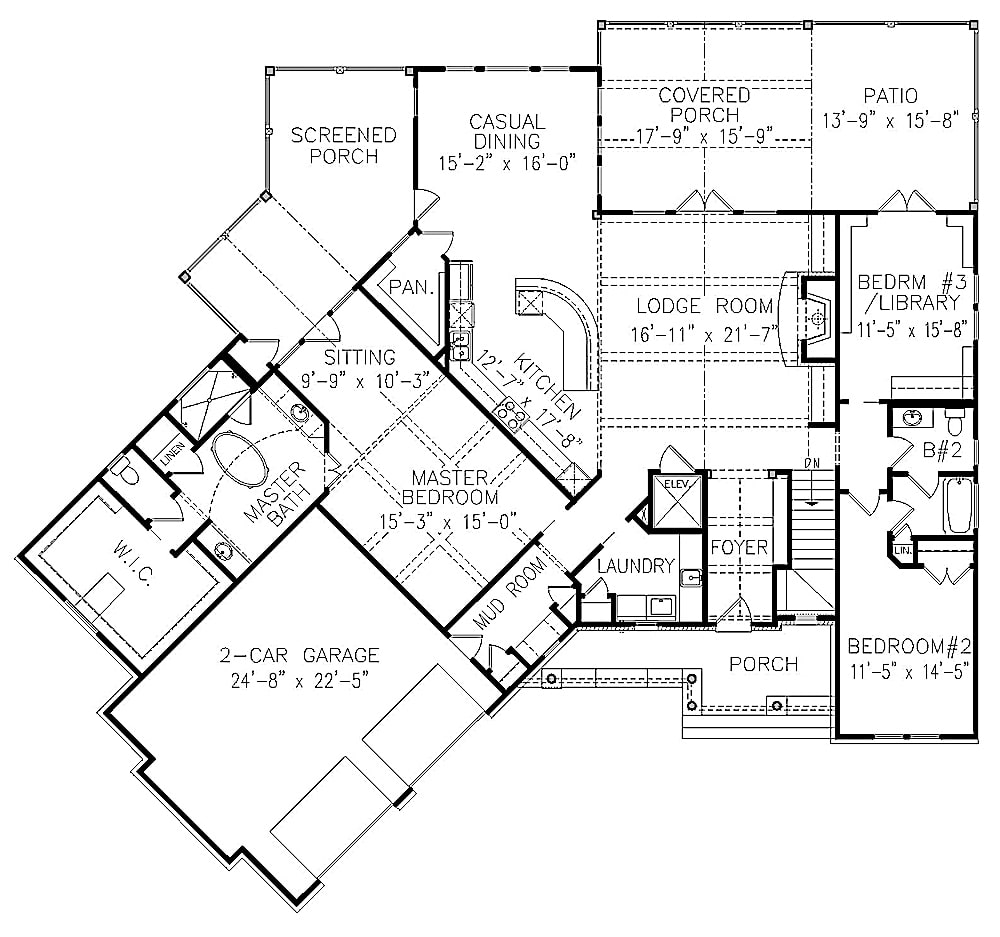
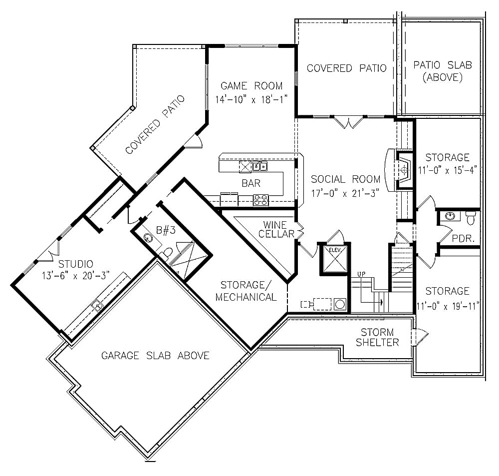
This charming Cottage style home with Craftsman enchacements (Plan #198-1079) has 2574 square feet of living space on the main floor, with a basement that may be finished in the future following the suggested floor plan supplied. The 1 story floor plan includes 3 bedrooms and 2 full bathrooms. Also included: an open floor plan with family, kitchen, and dining areas and a fireplace, walk-in kitchen pantry, mudroom, laundry room, font porch, screened porch, covered rear porch, and patio. Note the master suite has a sitting room and is split from the other bedrooms.
If finished, the...
Estimate your costs based on your location and materials.
All sales of house plans, modifications, and other products found on this site are final. No refunds or exchanges can be given once your order has begun the fulfillment process. Please see our Policies for additional information.
All plans offered on ThePlanCollection.com are designed to conform to the local building codes when and where the original plan was drawn.
The homes as shown in photographs and renderings may differ from the actual blueprints. For more detailed information, please review the floor plan images herein carefully.
Estimate your costs based on your location and materials.






