Estimate your costs based on your location and materials.
Yes! This plan can be customized—contact us for a free quote.


Yes! This plan can be customized—contact us for a free quote.
PLEASE NOTE!! For this designer, The PDF that comes with the PRINT Packages (5 set+PDF and 8 set+PDF) is NOT Modifiable - it is for printing ONLY! PLEASE NOTE!! Optional Foundations (foundations that cost extra money) will take 5-10 business days to complete.
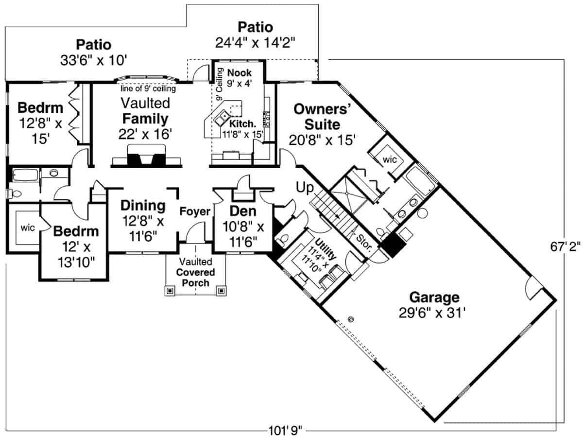
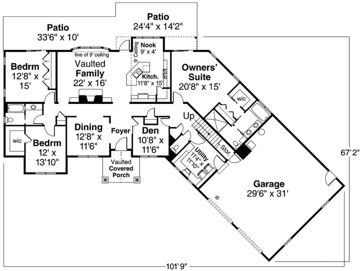
The impressive entrance makes this magnificent home with European Country influenced design more desirable. The attractive 2-story home's floor plan has 2511 square feet of fully conditioned living space with wonderful amenities that would satisfy everyone, like:
• Wide utility room
• Vaulted ceiling in the family room
• Fireplace in the family room
• Mudroom
• 957 sq. ft. unfinished storage and 711 sq. ft. unfinished bonus space upstairs
Estimate your costs based on your location and materials.
All sales of house plans, modifications, and other products found on this site are final. No refunds or exchanges can be given once your order has begun the fulfillment process. Please see our Policies for additional information.
All plans offered on ThePlanCollection.com are designed to conform to the local building codes when and where the original plan was drawn.
The homes as shown in photographs and renderings may differ from the actual blueprints. For more detailed information, please review the floor plan images herein carefully.
Estimate your costs based on your location and materials.





