Estimate your costs based on your location and materials.
Yes! This plan can be customized—contact us for a free quote.


Yes! This plan can be customized—contact us for a free quote.
NOTE FROM DESIGNER REGARDING PLAN PURCHASES: 80% of a 5 set purchase price can be applied to any PDF or CAD license upgrade. Additionally, 80% of PDF Study purchase price can be applied to any CAD or PDF license upgrade.
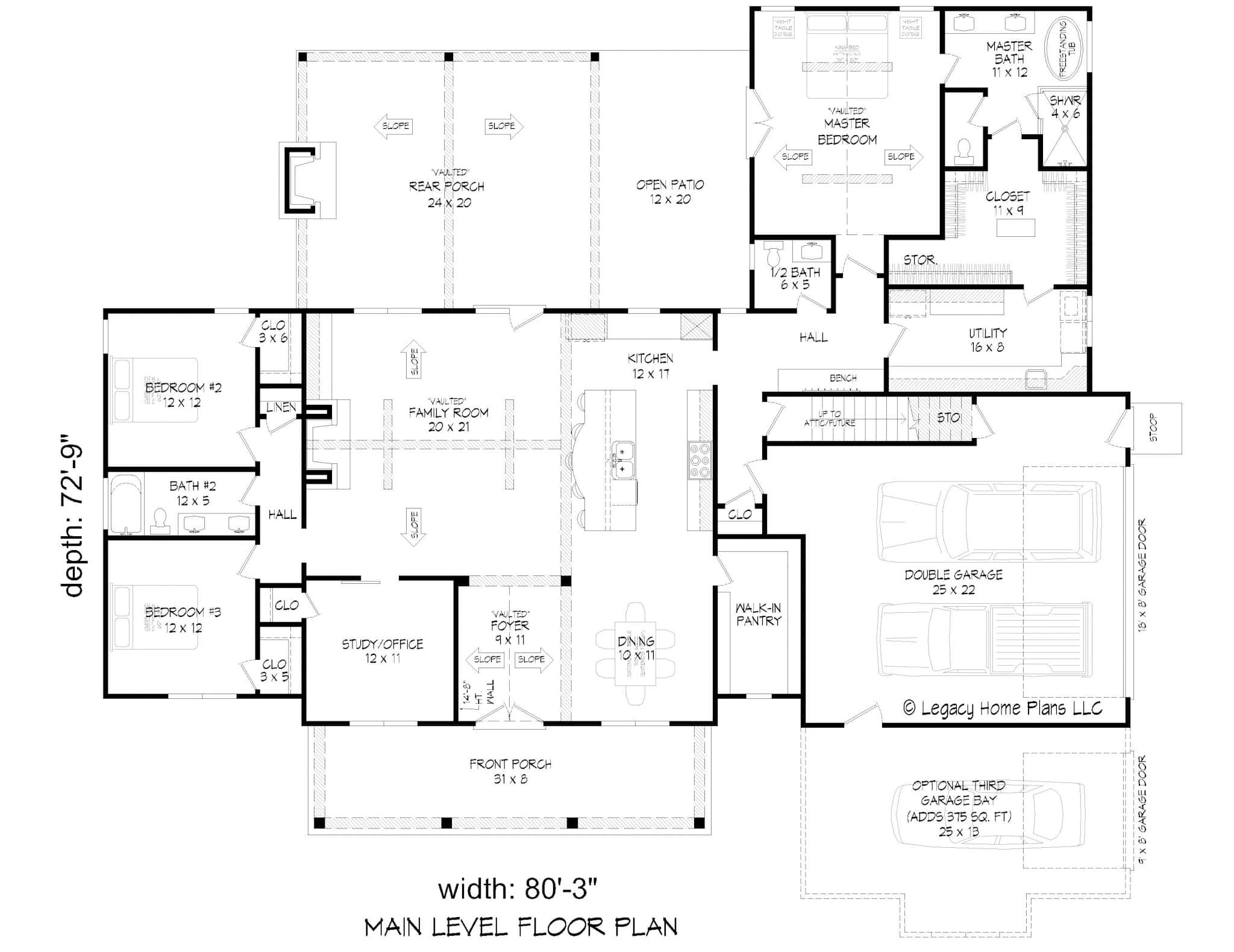
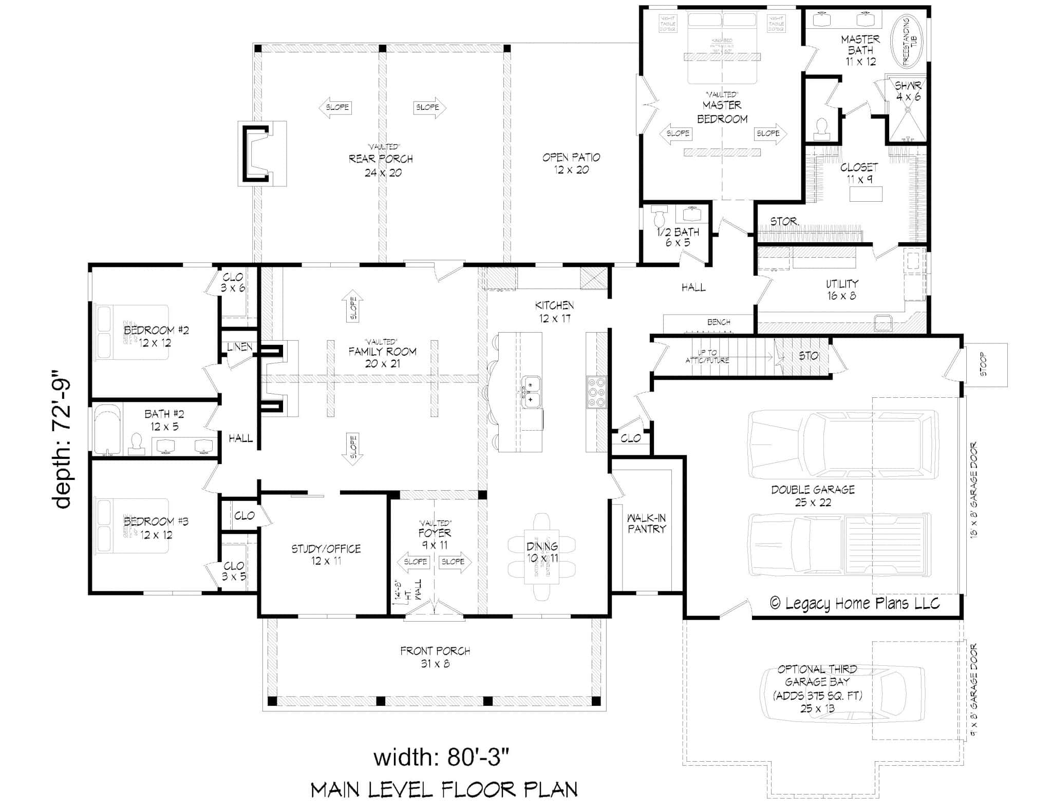
This 3-bedroom, 2,496 sq ft Farmhouse plan offers spacious and flexible living with charming details throughout. Enjoy a vaulted-ceiling family room with a cozy fireplace, a dedicated study, and a formal dining area. The kitchen features an island with an eating bar and a walk-in pantry. Outdoor living shines with a rear patio and both front and rear porches. Options include a third garage and a future bonus room or loft, perfect for expansion or customization.
Estimate your costs based on your location and materials.
All sales of house plans, modifications, and other products found on this site are final. No refunds or exchanges can be given once your order has begun the fulfillment process. Please see our Policies for additional information.
All plans offered on ThePlanCollection.com are designed to conform to the local building codes when and where the original plan was drawn.
The homes as shown in photographs and renderings may differ from the actual blueprints. For more detailed information, please review the floor plan images herein carefully.
Estimate your costs based on your location and materials.








