Estimate your costs based on your location and materials.
Yes! This plan can be customized—contact us for a free quote.

Yes! This plan can be customized—contact us for a free quote.
PLEASE NOTE: This designer has zip code restrictions and a 5-7 day processing time for their CAD and PDF orders. Please contact us to verify your zip code BEFORE you order!! 2x6 and Right-Reading Reverse options are available. PLEASE NOTE: The designer is currently not providing modifications. We suggest you purchase a CAD file and work with a local engineer for changes. Additionally, orders (including electronic formats) could take up to 5 days to be delivered or shipped. Thank you!
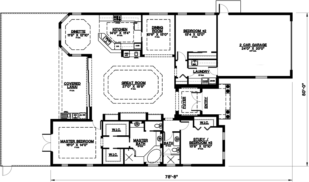
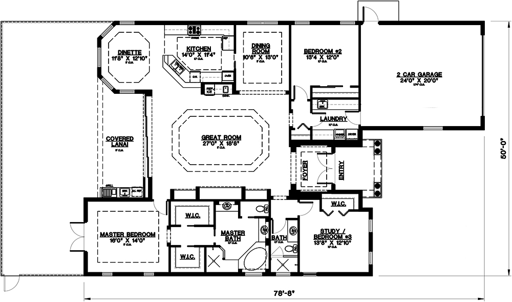
This lovely Mediterranean style home with Tuscan influences (House Plan #175-1206) has 2400 square feet of living space. The 1 story floor plan includes 3 bedrooms.
Estimate your costs based on your location and materials.
All sales of house plans, modifications, and other products found on this site are final. No refunds or exchanges can be given once your order has begun the fulfillment process. Please see our Policies for additional information.
All plans offered on ThePlanCollection.com are designed to conform to the local building codes when and where the original plan was drawn.
The homes as shown in photographs and renderings may differ from the actual blueprints. For more detailed information, please review the floor plan images herein carefully.
Estimate your costs based on your location and materials.

