Estimate your costs based on your location and materials.
Yes! This plan can be customized—contact us for a free quote.

Yes! This plan can be customized—contact us for a free quote.
PLEASE NOTE!! For this designer, The PDF that comes with the PRINT Packages (5 set+PDF and 8 set+PDF) is NOT Modifiable - it is for printing ONLY! PLEASE NOTE!! Optional Foundations (foundations that cost extra money) will take 5-10 business days to complete.
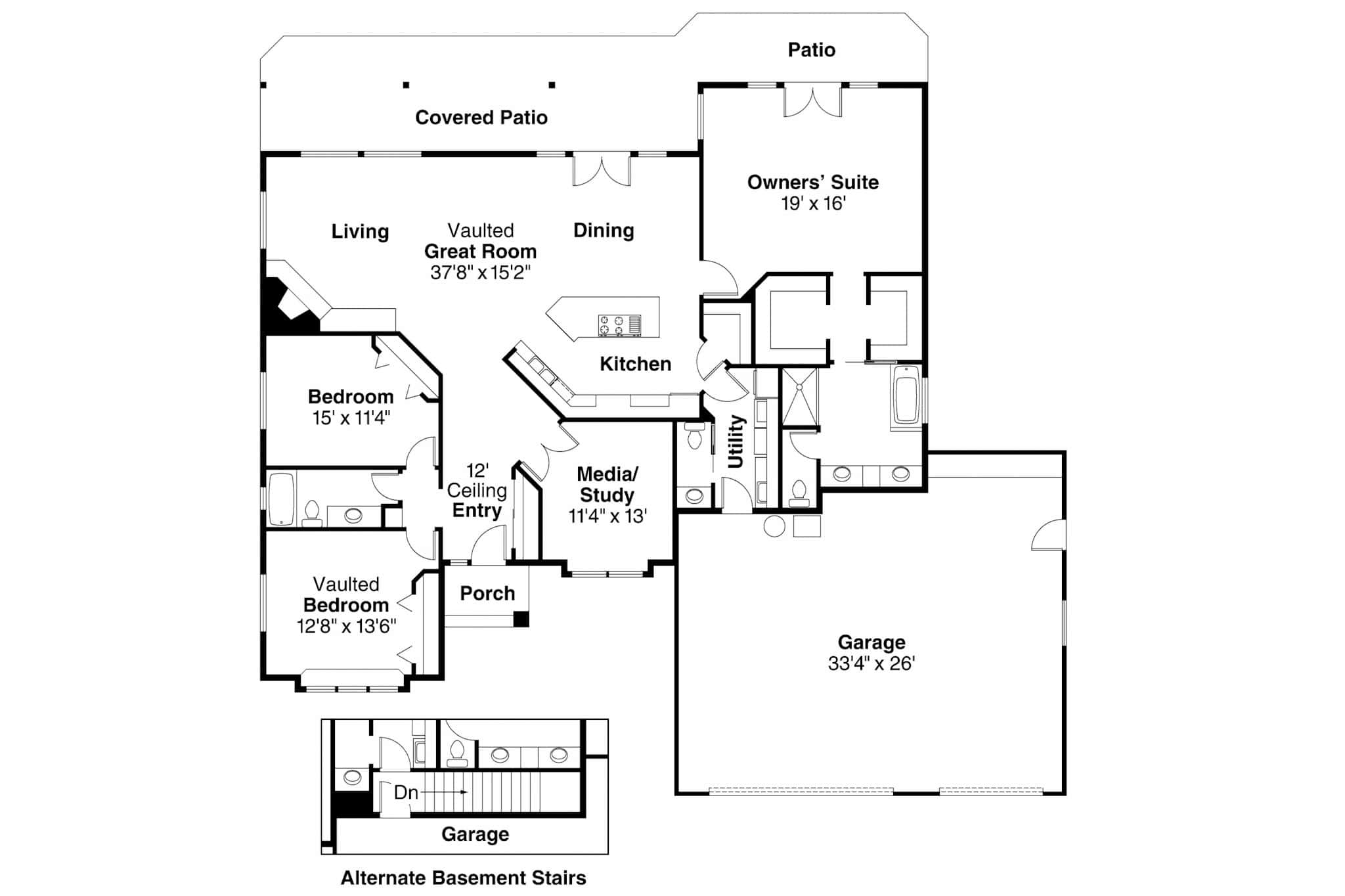
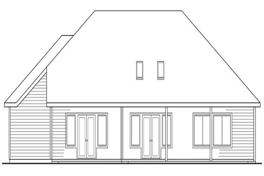
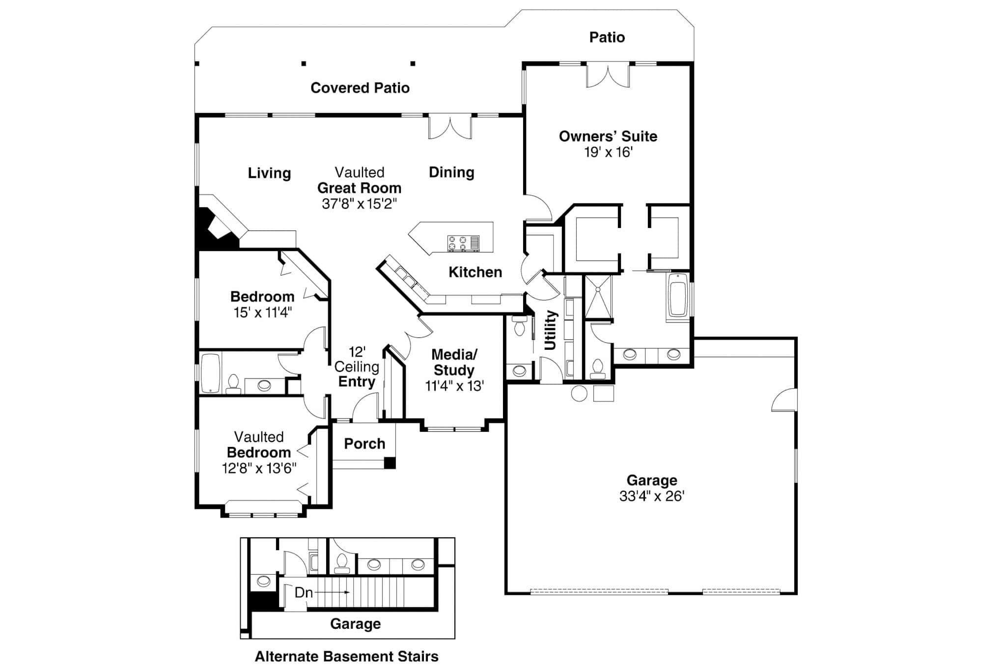
The #108-1409 home plan is a single story contemporary style house plan with 2272 total living square feet. Relaxed and spacious, this contemporary home plan is designed to suit families who prefer an informal lifestyle. Interconnected family living spaces fill the window-bright vaulted great room at the rear. French double doors in the lavish owners' suite offer direct patio access to a spot that's perfect for a hot tub.
Estimate your costs based on your location and materials.
All sales of house plans, modifications, and other products found on this site are final. No refunds or exchanges can be given once your order has begun the fulfillment process. Please see our Policies for additional information.
All plans offered on ThePlanCollection.com are designed to conform to the local building codes when and where the original plan was drawn.
The homes as shown in photographs and renderings may differ from the actual blueprints. For more detailed information, please review the floor plan images herein carefully.
Estimate your costs based on your location and materials.







