Estimate your costs based on your location and materials.
Yes! This plan can be customized—contact us for a free quote.

Yes! This plan can be customized—contact us for a free quote.
NOTE FROM DESIGNER REGARDING PLAN PURCHASES: 80% of a 5 set purchase price can be applied to any PDF or CAD license upgrade. Additionally, 80% of PDF Study purchase price can be applied to any CAD or PDF license upgrade.
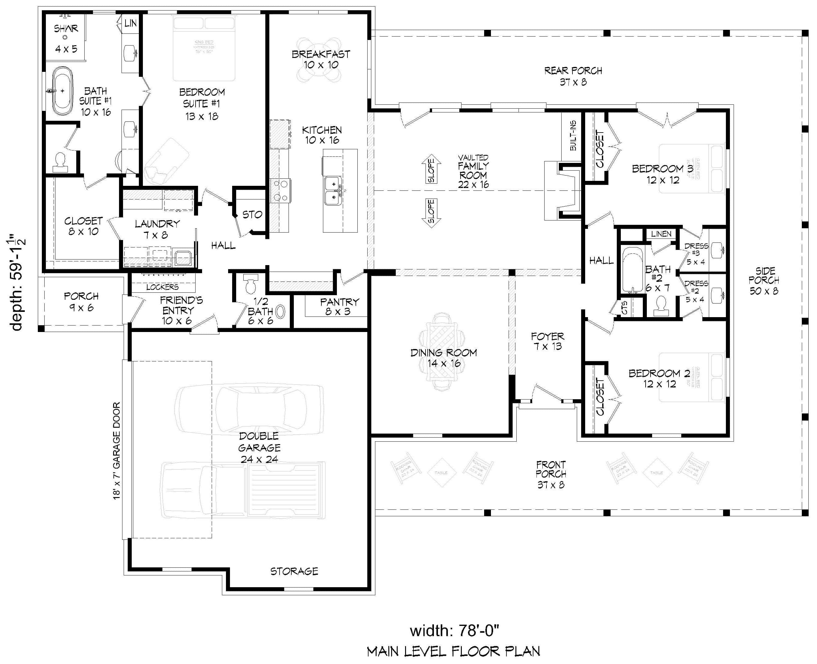
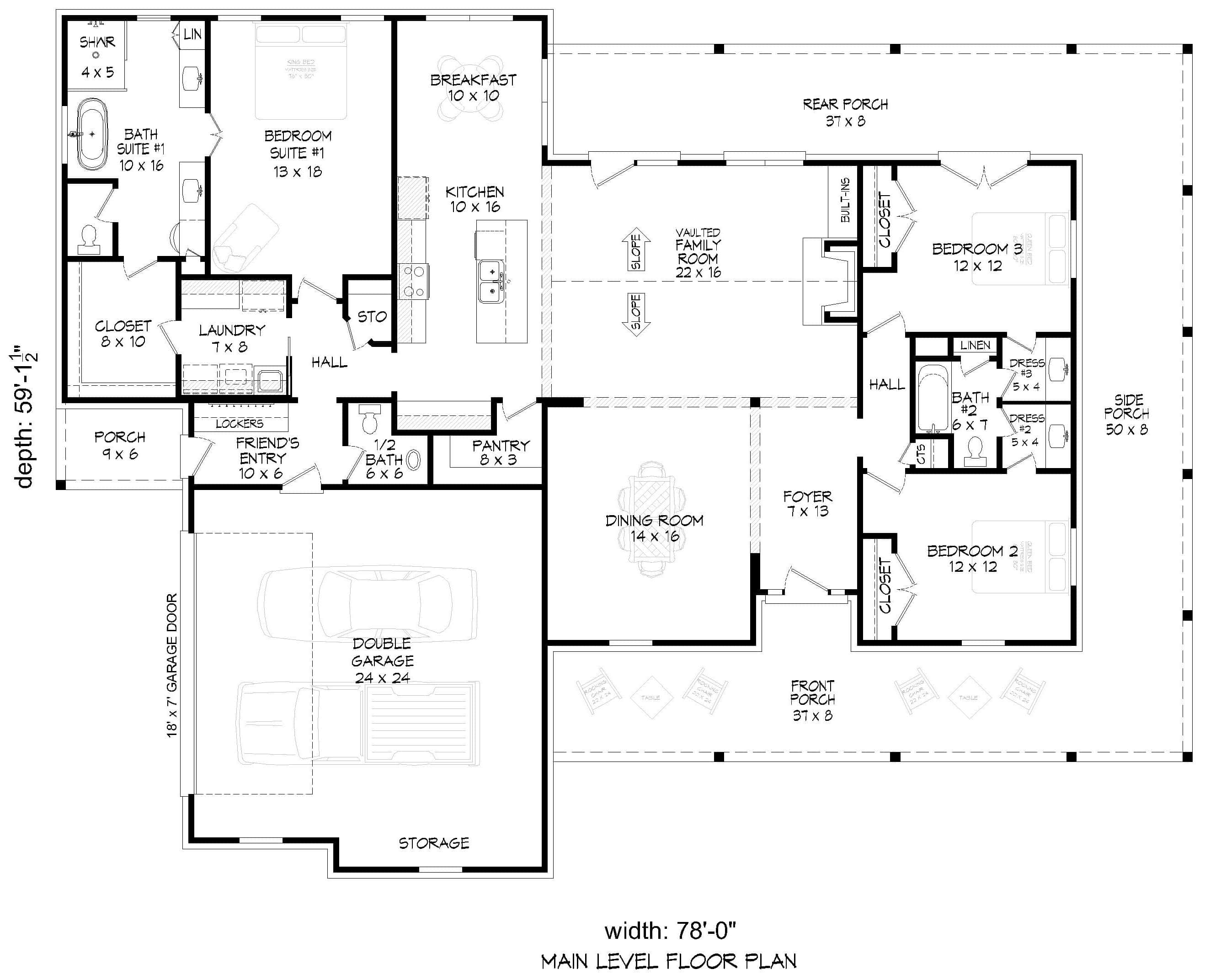
Boasting 2247 sq ft of heated livable space, 3 bedrooms and 2.5 bath, this farmhouse is cozy and pleasing. In addition it has a friend's entry, vaulted family room, primary suite with closet and primary bath, kitchen island, breakfast area, walk in pantry, front/rear/side porches. 8:12 is the primary roddf pitch and the secondary roof pitch is 12:12. It has a 10 Lbs snow load rating and 2x4 exterior walls.
Estimate your costs based on your location and materials.
All sales of house plans, modifications, and other products found on this site are final. No refunds or exchanges can be given once your order has begun the fulfillment process. Please see our Policies for additional information.
All plans offered on ThePlanCollection.com are designed to conform to the local building codes when and where the original plan was drawn.
The homes as shown in photographs and renderings may differ from the actual blueprints. For more detailed information, please review the floor plan images herein carefully.
Estimate your costs based on your location and materials.











