Estimate your costs based on your location and materials.
Yes! This plan can be customized—contact us for a free quote.


Yes! This plan can be customized—contact us for a free quote.
PLEASE NOTE!! For this designer, The PDF that comes with the PRINT Packages (5 set+PDF and 8 set+PDF) is NOT Modifiable - it is for printing ONLY! PLEASE NOTE!! Optional Foundations (foundations that cost extra money) will take 5-10 business days to complete.
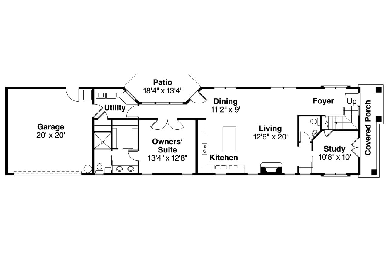
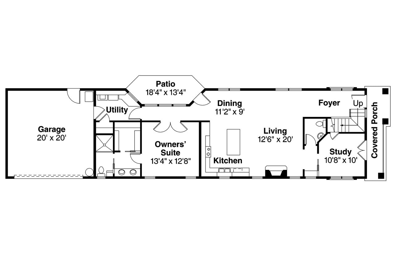
This Contemporary Cottage style home with 2,488 square feet of finished and unfinished space is designed for comfort, aesthetics, and convenience for its residents. An open-design covered porch frames the main door, leading to an indoor foyer and access stairs to the upper floor. The 431-square-foot 2-car garage is located at the back entrance with easy access to the utility / laundry area and the kitchen.
The expansive feeling inside the house was created by the open plan of the living room, dining area, and kitchen, with island counter surrounded by...
Estimate your costs based on your location and materials.
All sales of house plans, modifications, and other products found on this site are final. No refunds or exchanges can be given once your order has begun the fulfillment process. Please see our Policies for additional information.
All plans offered on ThePlanCollection.com are designed to conform to the local building codes when and where the original plan was drawn.
The homes as shown in photographs and renderings may differ from the actual blueprints. For more detailed information, please review the floor plan images herein carefully.
Estimate your costs based on your location and materials.















