3-Bedroom, 1972 Sq Ft European Plan with Sundeck

Main image for house plan # 9007

Images/Plans copyrighted by designer. Photos may reflect homeowner modifications.

About House Plan #126-1411

Sq Ft
1972
Sq Ft
Bedrooms
3
Bedrooms
Bathroom
2
Baths
Half Baths
0
Half Baths
Bedrooms
1
Cars
Bedrooms
2
Stories
Bedrooms
44' 0'
Width
Bedrooms
42
Depth
Starting at$1740.00What's included
STEP 1Bedrooms
STEP 2Bedrooms
STEP 3Bedrooms

Subtotal:$0
BedroomsBest Price Guaranteed
Plan Collection

How much will it cost to build?

Estimate your costs based on your location and materials.

Free Cost Instant Estimator

Floor Plans

MAIN FLOOR PLAN
MAIN FLOOR PLAN
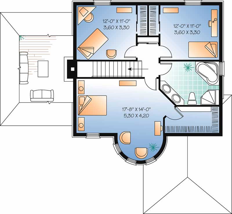
SECOND FLOOR PLAN
SECOND FLOOR PLAN
Plan Collection

Can I modify this plan?

Yes! This plan can be customized—contact us for a free quote.

Additional Notes from Designer

Please Note: The Designer's office will be closed for the holidays from 12/19/2025 to 1/5/2026. Any orders placed during this time will be fulfilled when the designer resumes office. This designer's plans take 7-14 additional business days regardless of the type of delivery (express, email, etc). Please keep this in mind when ordering. BCIN is available for this designer - please submit a modification request to get a quote and time frame. PLEASE NOTE! This designer's plans do NOT come with an electrical layout. They will provide an electrical layout for an additional fee.

House Plan Description

1st level: Entry hall with closet, large family room with fireplace, dining room, kitchen with island and lunch counter, shower room, laundry room and office.2nd Level: Master bedroom with large walk-in closet and sitting area in the turret, full bathroom, two secondary bedrooms.

Home Details

Summary
Plan #:126-1411
Starting at:$1740.00
Floors:2
Bedrooms:3
Full Baths:2
Half Baths:0
Garage:
Square Footage
Heated Area:1972 Sq. Ft.
First Floor:1062 Sq. Ft.
Second Floor:910 Sq. Ft.
Unheated Area:
Garage:302 Sq. Ft.
Dimensions
Architectural Styles
Exterior Wall Material
BrickRock/Stone
Special Feature
FireplaceDining RoomFamily Room
Garage Type
Detached Garage
Building Lot Type
Narrow Lot Design

What’s Included

Most plan sets include the following:

icon text-secondary-400 includedExterior elevations

icon text-secondary-400 includedFoundation plan

icon text-secondary-400 includedMain floor plan

icon text-secondary-400 includedUpper floor plan (if applicable)

icon text-secondary-400 includedRoof plan

icon text-secondary-400 includedTruss diagrams & building sections

icon text-secondary-400 includedConstruction details

icon text-secondary-400 includedTypical wall section

What’s Not Included

These items are  NOT included:

icon text-secondary-400 includedArchitectural or Engineering Stamp - handled locally if required.

icon text-secondary-400 includedSite Plan - handled locally when required.

icon text-secondary-400 includedNo Electrical

icon text-secondary-400 includedMechanical Drawings (location of heating and air equipment and ductwork) - your subcontractors handle this.

icon text-secondary-400 includedPlumbing Drawings (drawings showing the actual plumbing pipe sizes and locations) - your subcontractors handle this.

icon text-secondary-400 includedEnergy calculations - handled locally when required.

Related House Plans

Plan Collection
Plan Collection
Plan Collection
Plan#117-1030
Starting at$1295
2112
Sq Ft
2
Story
3
Bed
2.5
Bath
2
Car
Plan Collection
Plan Collection
Plan Collection
Plan#102-1018
Starting at$950
1658
Sq Ft
2
Story
3
Bed
2.5
Bath
2
Car
Plan Collection
Plan Collection
Plan Collection
Plan#126-1110
Starting at$1855
1826
Sq Ft
2
Story
3
Bed
2
Bath
1
Car
View All

Other Plans By This Designer

Plan Collection
Plan Collection
Plan Collection
Plan#126-1325
Starting at$3160
7624
Sq Ft
3
Story
16
Bed
8
Bath
0
Car
Plan Collection
Plan Collection
Plan Collection
Plan#126-1279
Starting at$1855
2252
Sq Ft
2
Story
4
Bed
3.5
Bath
2
Car
Plan Collection
Plan Collection
Plan Collection
Plan#126-1590
Starting at$1740
1872
Sq Ft
2
Story
3
Bed
2
Bath
2
Car