Estimate your costs based on your location and materials.
Yes! This plan can be customized—contact us for a free quote.




Yes! This plan can be customized—contact us for a free quote.
PLEASE NOTE! If you order an optional foundation and a materials list, the materials list will NOT include the optional foundation, only the standard foundation. The designer can provide an updated materials list for a fee, so please ask for a quote! ATTENTION! All CAD orders include a PDF
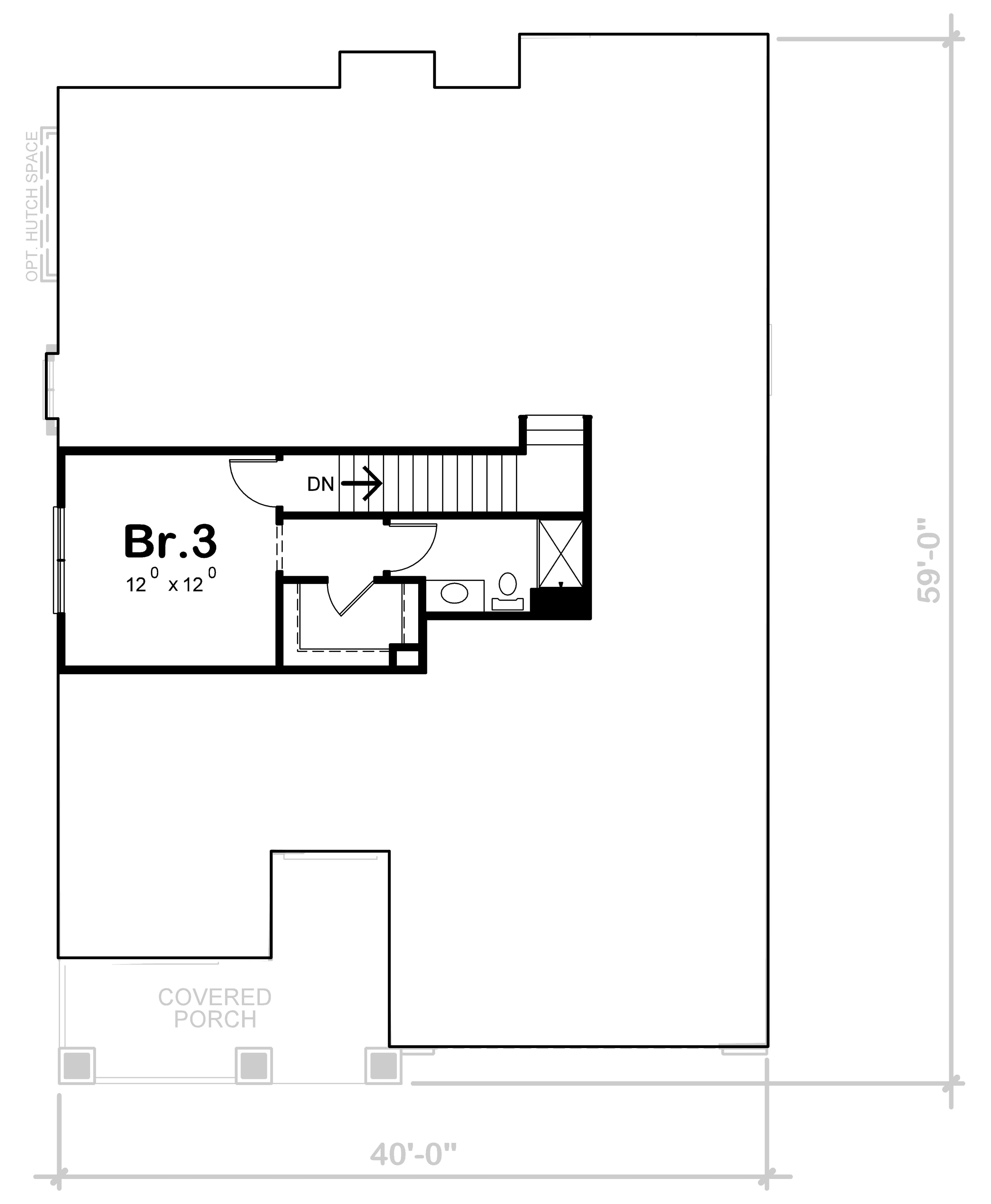
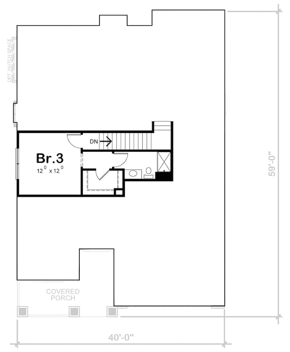
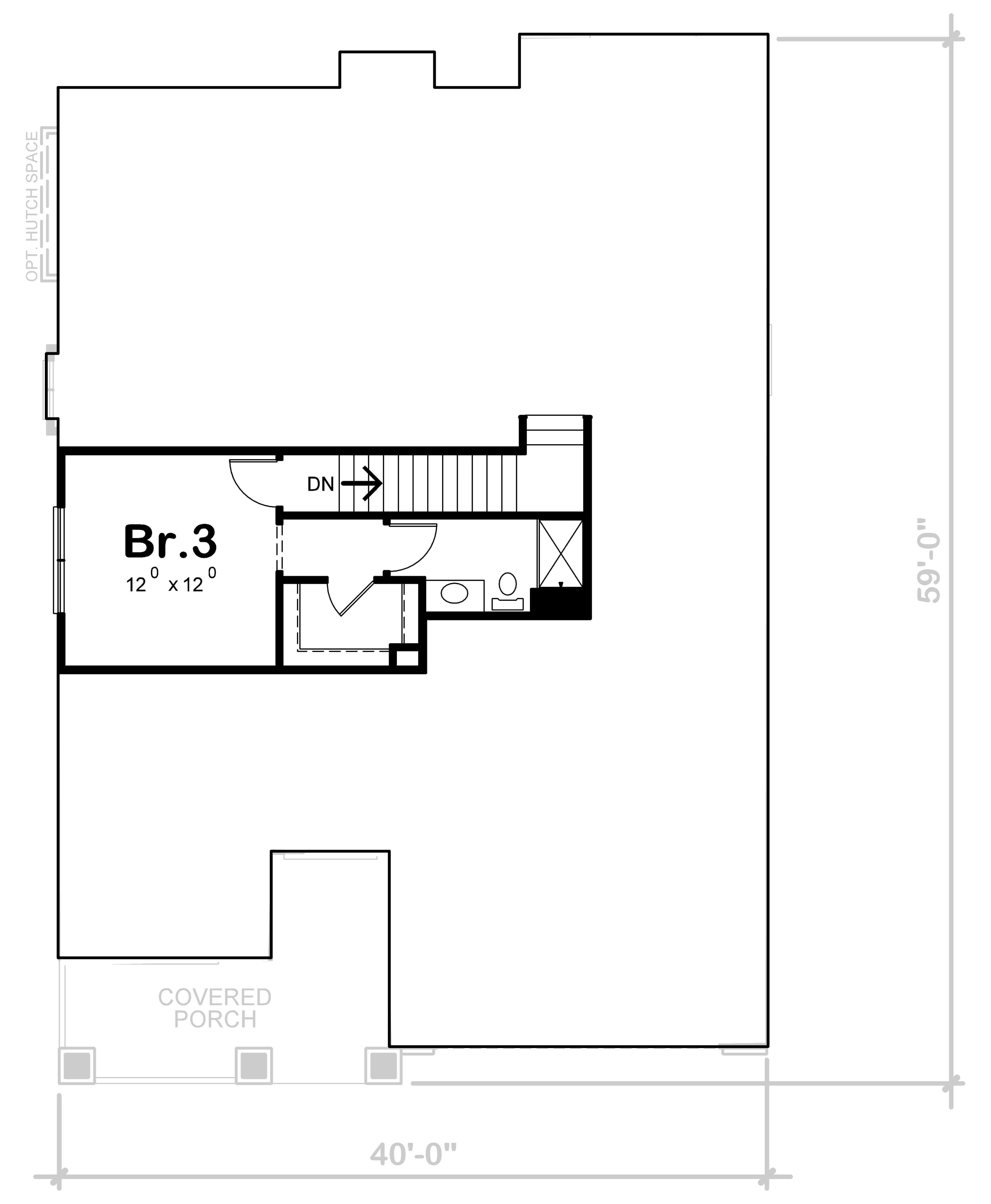
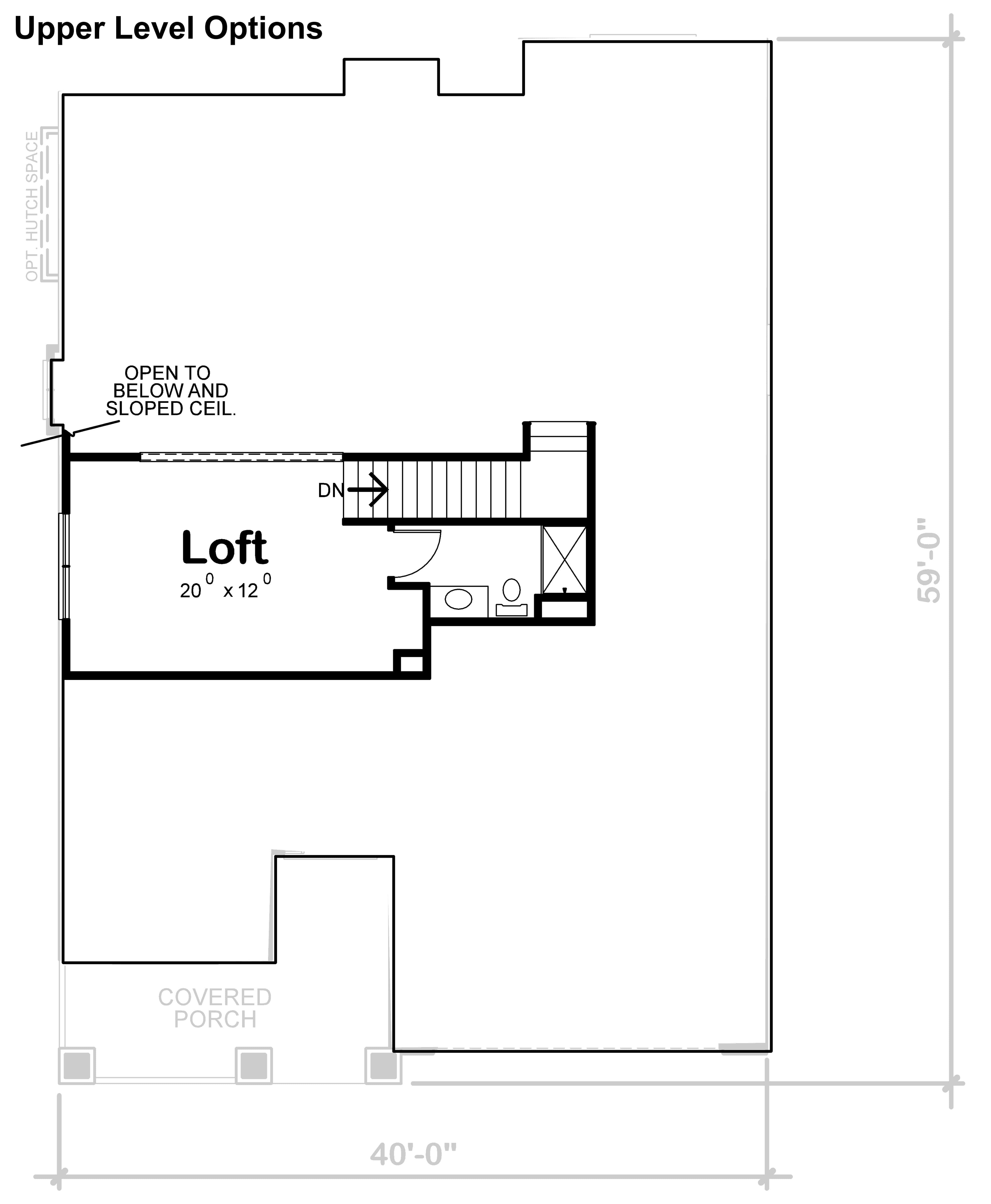
This Colonial style home with Country details has a nice and cozy covered front porch with turned columns that gives a warm welcome into its living spaces. The charming 1-story home's floor plan covers a total heated-and-cooled area of 1898 square feet with a 473-square-foot 2-car garage. Amenities found in this plan include
• Walk-in kitchen pantry
• Laundry room with sink
• Fireplace in the Great Room
• Mud room with drop zone
• Walk-in bedroom closets
Estimate your costs based on your location and materials.
All sales of house plans, modifications, and other products found on this site are final. No refunds or exchanges can be given once your order has begun the fulfillment process. Please see our Policies for additional information.
All plans offered on ThePlanCollection.com are designed to conform to the local building codes when and where the original plan was drawn.
The homes as shown in photographs and renderings may differ from the actual blueprints. For more detailed information, please review the floor plan images herein carefully.
Estimate your costs based on your location and materials.







