Estimate your costs based on your location and materials.
Yes! This plan can be customized—contact us for a free quote.


Yes! This plan can be customized—contact us for a free quote.
On some plans, Basement Foundations, Walkout Basement Foundations, & 2x6 Conversions could take up to ONE WEEK to produce. Materials Lists could take up to FOUR WEEKS to produce and they will be for the ORIGINAL plan! Any modifications will NOT be reflected on the Materials List. NOTE FROM DESIGNER: If you purchase a CAD, you will automatically receive the unlimited build license - no need to purchase separately!
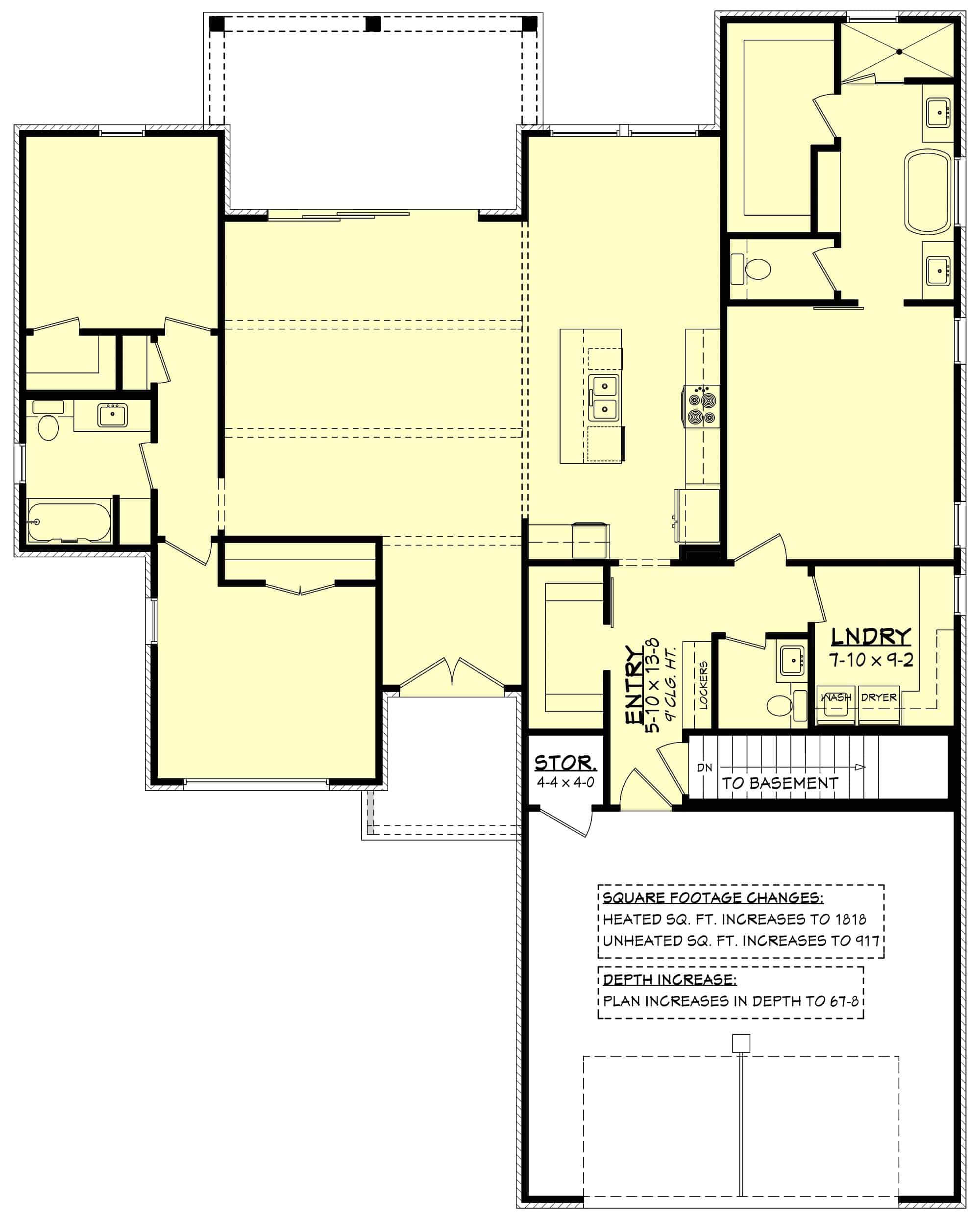
This ranch-style home offers 1,775 square feet of living space, featuring three bedrooms and two and a half bathrooms. The open floor plan connects the kitchen, living, and dining areas, creating a welcoming environment. The kitchen includes a large island and a walk-in pantry, providing ample storage and workspace. Adjacent to the kitchen, there's a mudroom and a powder room for added convenience. The primary suite boasts a walk-in closet and a well-appointed bathroom, while the two additional bedrooms share a full bath. The exterior combines vinyl siding, stone accents, and wood...
Estimate your costs based on your location and materials.
All sales of house plans, modifications, and other products found on this site are final. No refunds or exchanges can be given once your order has begun the fulfillment process. Please see our Policies for additional information.
All plans offered on ThePlanCollection.com are designed to conform to the local building codes when and where the original plan was drawn.
The homes as shown in photographs and renderings may differ from the actual blueprints. For more detailed information, please review the floor plan images herein carefully.
Estimate your costs based on your location and materials.







