Estimate your costs based on your location and materials.
Yes! This plan can be customized—contact us for a free quote.


Yes! This plan can be customized—contact us for a free quote.
On some plans, Basement Foundations, Walkout Basement Foundations, & 2x6 Conversions could take up to ONE WEEK to produce. Materials Lists could take up to FOUR WEEKS to produce and they will be for the ORIGINAL plan! Any modifications will NOT be reflected on the Materials List. NOTE FROM DESIGNER: If you purchase a CAD, you will automatically receive the unlimited build license - no need to purchase separately!
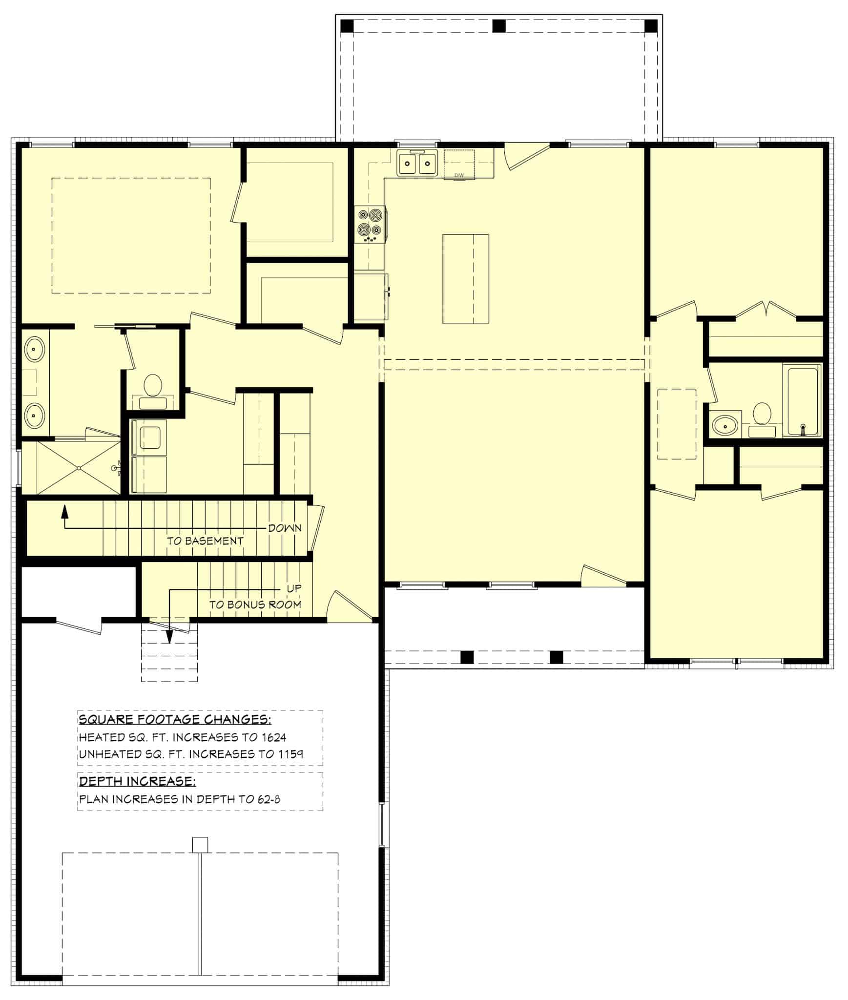
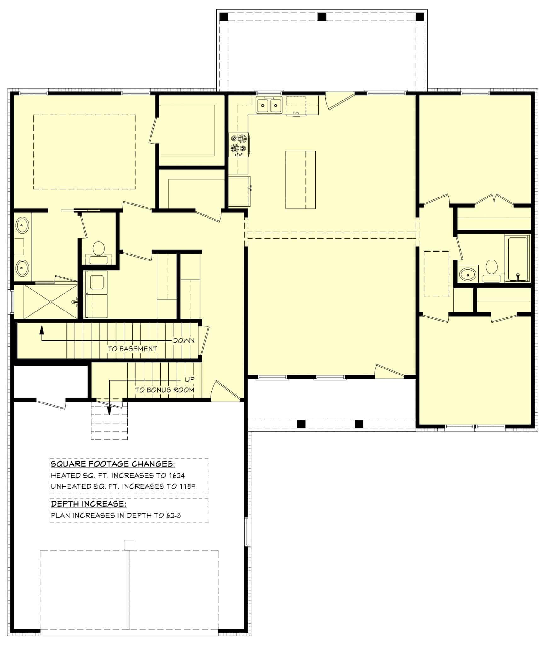
This charming 3-bedroom, 1,526 sq ft Country Plan offers comfort and character with an inviting open layout. The vaulted kitchen, dining, and great room create a spacious feel, while the kitchen island with an eating bar adds casual dining convenience. A walk-in pantry provides extra storage, and the split primary bedroom ensures privacy. Enjoy outdoor living on the covered front and rear porches, and take advantage of the bonus room for added flexibility. A 2-car garage completes this thoughtfully designed home.
Estimate your costs based on your location and materials.
All sales of house plans, modifications, and other products found on this site are final. No refunds or exchanges can be given once your order has begun the fulfillment process. Please see our Policies for additional information.
All plans offered on ThePlanCollection.com are designed to conform to the local building codes when and where the original plan was drawn.
The homes as shown in photographs and renderings may differ from the actual blueprints. For more detailed information, please review the floor plan images herein carefully.
Estimate your costs based on your location and materials.







