Estimate your costs based on your location and materials.
Yes! This plan can be customized—contact us for a free quote.


Yes! This plan can be customized—contact us for a free quote.
Please Note: There might be a 4-5 day delay in getting the sales orders out due to updates being made to the designer's plans.
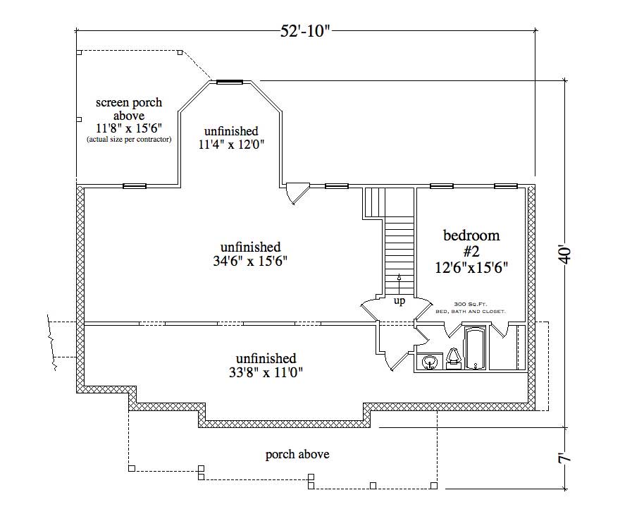
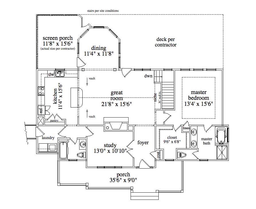
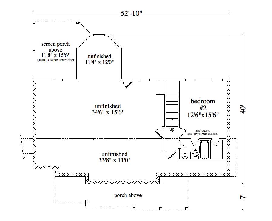
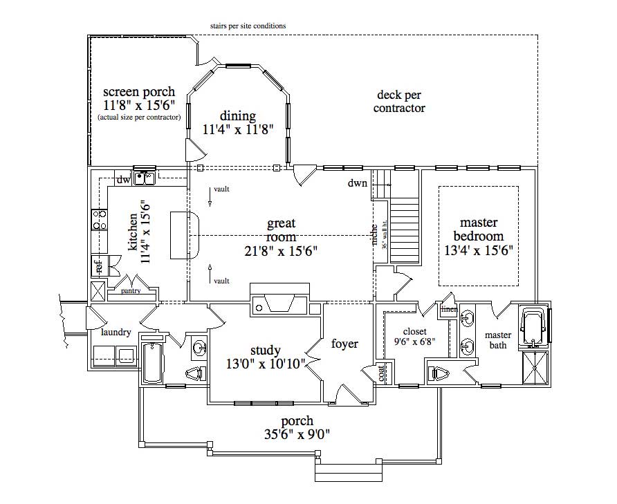
Enticing mountain cottage is great for a weekend get-a-way or a vacation home. The rustic exterior blends nicely with a mountainous or hilly terrain. There is a covered front porch a screened porch off the rear and a large deck located off of the rear. The warm interior welcomes you with a foyer and a large vaulted great room. The generous kitchen is open to the great room and opposite the master suite. The study could be converted to an additional bedroom. Downstairs there is a finished guest suite with a walk-in closet and full bath. Additionally there is plenty of room for storage...
Estimate your costs based on your location and materials.
All sales of house plans, modifications, and other products found on this site are final. No refunds or exchanges can be given once your order has begun the fulfillment process. Please see our Policies for additional information.
All plans offered on ThePlanCollection.com are designed to conform to the local building codes when and where the original plan was drawn.
The homes as shown in photographs and renderings may differ from the actual blueprints. For more detailed information, please review the floor plan images herein carefully.
Estimate your costs based on your location and materials.




























