2-Bedroom, 1258 Sq Ft Ranch Plan for Empty Nesters

Front elevation of Ranch home (ThePlanCollection: House Plan #108-2066)

Images/Plans copyrighted by designer. Photos may reflect homeowner modifications.

About House Plan #108-2066

Sq Ft
1258
Sq Ft
Bedrooms
2
Bedrooms
Bathroom
2
Baths
Half Baths
0
Half Baths
Bedrooms
2
Cars
Bedrooms
1
Stories
Bedrooms
75' 0'
Width
Bedrooms
33
Depth
Starting at$1025.00What's included
STEP 1Bedrooms
STEP 2Bedrooms
STEP 3Bedrooms

Subtotal:$0
Plan Collection

How much will it cost to build?

Estimate your costs based on your location and materials.

Free Cost Instant Estimator

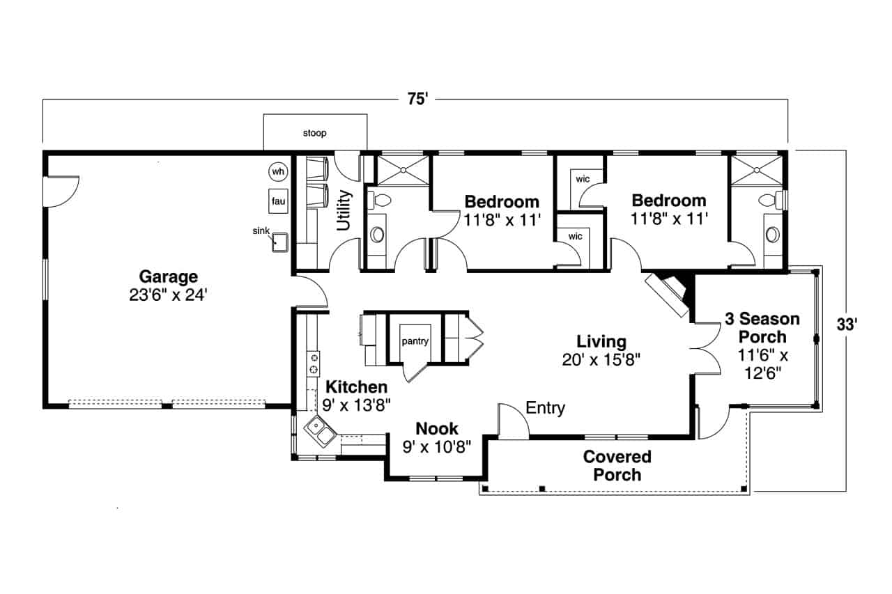
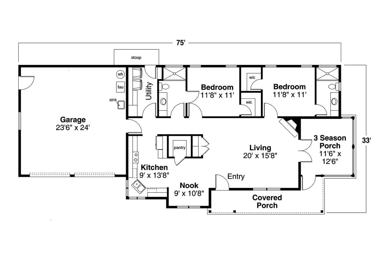
Floor Plans

Main Level
Main Level
Plan Collection

Can I modify this plan?

Yes! This plan can be customized—contact us for a free quote.

Additional Notes from Designer

PLEASE NOTE!! For this designer, The PDF that comes with the PRINT Packages (5 set+PDF and 8 set+PDF) is NOT Modifiable - it is for printing ONLY! PLEASE NOTE!! Optional Foundations (foundations that cost extra money) will take 5-10 business days to complete.

This Single Family Country Traditional Style House Plan has 1258 square feet, 2 bedrooms, and 2 bathrooms.

House Plan Description

Comfort and energy-efficient home offered by this Country Traditional style home.  There is definitely no wasted space in this house!  The pleasant  1-story floor plan has 1258 square feet of fully conditioned living space and includes these great amenities:

• Fireplace in the living room
• Spacious walk-in closets
• Huge walk-in kitchen pantry
• Utility room
• Lots of storage space

Home Details

Summary
Plan #:108-2066
Starting at:$1025.00
Floors:1
Bedrooms:2
Full Baths:2
Half Baths:0
Garage:
Square Footage
Heated Area:1258 Sq. Ft.
First Floor:1258 Sq. Ft.
Unheated Area:
Garage:600 Sq. Ft.
Dimensions
Architectural Styles
Exterior Wall Material
Vinyl SidingWood Siding
Roofing Type
Gable
Roofing Material
Asphalt Shingles
Roof Pitch
8/12
Ceiling Height
9 Foot Ceiling
Special Feature
FireplaceMain Level LaundryStorageOpen Floor Plan
Garage Type
Attached GarageFront Entry
Fireplaces
One Fireplace
Exterior Wall Framing
2x6
Kitchen Features
Nook/Breakfast AreaWalk-in PantryPeninsula/Eating Bar
Porches and Exterior Features
Covered Front Porch
Master Suite Features
Main Floor MasterMaster BathroomWalk In Closet

What’s Included

Most plan sets include the following:

icon text-secondary-400 included Artist’s rendering of the home,

icon text-secondary-400 included Front/Rear/Left and Right Elevations,

icon text-secondary-400 included Main floor plan, Second or Basement floor plans (if applicable),

icon text-secondary-400 included Foundation plan and detail,

icon text-secondary-400 included Floor framing plan,

icon text-secondary-400 included Roof framing plan, supporting details and

icon text-secondary-400 included Electric layout.

What’s Not Included

These items are  NOT included:

icon text-secondary-400 includedArchitectural or Engineering Stamp - handled locally if required.

icon text-secondary-400 includedSite Plan - handled locally when required.

icon text-secondary-400 includedMechanical Drawings (location of heating and air equipment and ductwork) - your subcontractors handle this.

icon text-secondary-400 includedPlumbing Drawings (drawings showing the actual plumbing pipe sizes and locations) - your subcontractors handle this.

icon text-secondary-400 includedEnergy calculations - handled locally when required.

Related House Plans

Plan Collection
Plan Collection
Plan Collection
Plan#123-1071
Starting at$890
1292
Sq Ft
1
Story
2
Bed
2
Bath
0
Car
Plan Collection
Plan Collection
Plan Collection
Plan#132-1697
Starting at$1145
1176
Sq Ft
1
Story
2
Bed
2
Bath
0
Car
Plan Collection
Plan Collection
Plan Collection
Plan#174-1050
Starting at$610
1036
Sq Ft
1
Story
2
Bed
2
Bath
1
Car
View All

Other Plans By This Designer

Plan Collection
Plan Collection
Plan Collection
Plan#108-1268
Starting at$1475
3384
Sq Ft
1
Story
3
Bed
4.5
Bath
3
Car
Plan Collection
Plan Collection
Plan Collection
Plan#108-1562
Starting at$1725
3537
Sq Ft
1
Story
3
Bed
3
Bath
3
Car
Plan Collection
Plan Collection
Plan Collection
Plan#108-1538
Starting at$675
1216
Sq Ft
2
Story
2
Bed
2
Bath
0
Car