3-Bedroom, 2927 Sq Ft Ranch Plan with Covered Rear Porch

Front elevation of Ranch home (ThePlanCollection: House Plan #116-1068)

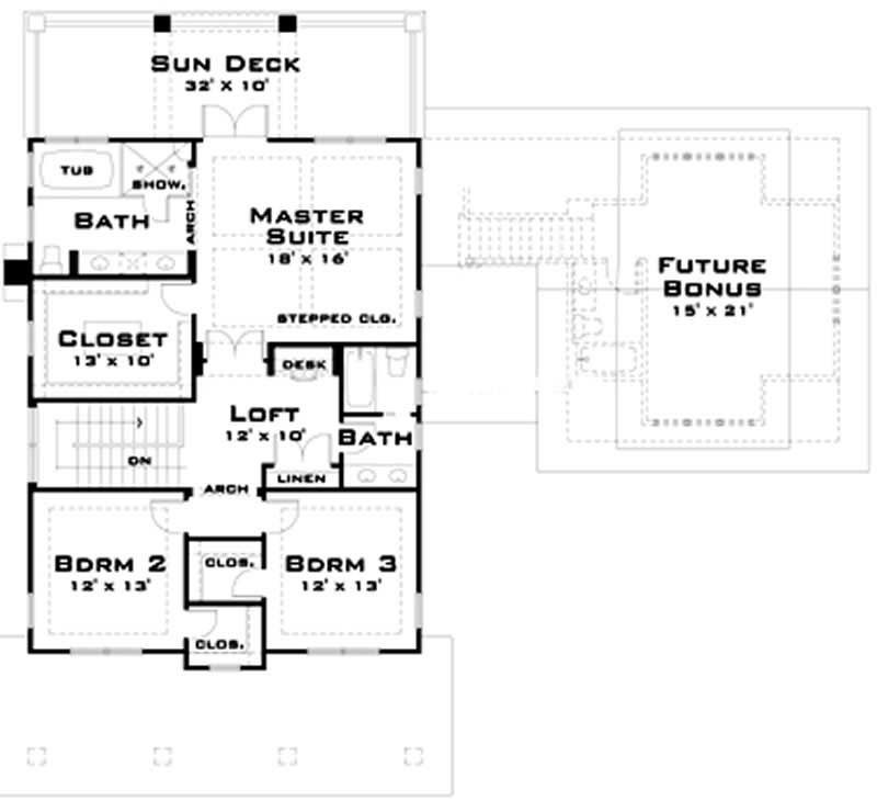
Images/Plans copyrighted by designer. Photos may reflect homeowner modifications.

About House Plan #116-1068

Sq Ft
3344
Sq Ft
Bedrooms
3
Bedrooms
Bathroom
3
Baths
Half Baths
0
Half Baths
Bedrooms
2
Cars
Bedrooms
2
Stories
Bedrooms
68' 0'
Width
Bedrooms
61
Depth
Starting at$2867.50What's included
STEP 1Bedrooms
STEP 2Bedrooms
STEP 3Bedrooms

Subtotal:$0
BedroomsBest Price Guaranteed
Plan Collection

How much will it cost to build?

Estimate your costs based on your location and materials.

Free Cost Instant Estimator

Floor Plans

FIRST FLOOR PLANS
FIRST FLOOR PLANS
SECOND FLOOR PLANS
SECOND FLOOR PLANS
Plan Collection

Can I modify this plan?

Yes! This plan can be customized—contact us for a free quote.

Additional Notes from Designer

CAD files for this plan will be delivered in both DXF (AutoCad readable) and Sketchup Pro formats.

House Plan Description

The plan number 116-1068 is a classic bungalow plan which houses separate living, dining, home office, and family room downstairs. The open kitchen and large island are perfect for casual entertaining. Upstairs, the 3 bedrooms are generously sized for your family. The bonus space above the garage can be used for a second family room, project room, exercise room, or office.

Home Details

Summary
Plan #:116-1068
Starting at:$2867.50
Floors:2
Bedrooms:3
Full Baths:3
Half Baths:0
Garage:
Square Footage
Heated Area:3344 Sq. Ft.
First Floor:1574 Sq. Ft.
Second Floor:1770 Sq. Ft.
Unheated Area:
Garage:561 Sq. Ft.
Dimensions
Ridge Height:34' 0''
Architectural Styles
Roofing Material
Metal
Roof Pitch
5/12
Ceiling Height
10 Foot Ceiling
Special Feature
Home OfficeFamily Room
Exterior Wall Framing
2x4
Porches and Exterior Features
Covered Front Porch

What’s Included

Most plan sets include the following:

icon text-secondary-400 includedFloor plans

icon text-secondary-400 includedExterior elevations

icon text-secondary-400 includedBuilding sections

icon text-secondary-400 includedFoundation plan

icon text-secondary-400 includedFloor & Roof structure layouts

icon text-secondary-400 includedWall section

icon text-secondary-400 includedNotes

icon text-secondary-400 includedElectrical layout (switches, outlets)

icon text-secondary-400 includedUnlimited license

What’s Not Included

These items are  NOT included:

icon text-secondary-400 includedArchitectural or Engineering Stamp - handled locally if required.

icon text-secondary-400 includedSite Plan - handled locally when required.

icon text-secondary-400 includedMechanical Drawings (location of heating and air equipment and ductwork) - your subcontractors handle this.

icon text-secondary-400 includedPlumbing Drawings (drawings showing the actual plumbing pipe sizes and locations) - your subcontractors handle this.

icon text-secondary-400 includedEnergy calculations - handled locally when required.

Related House Plans

Plan Collection
Plan Collection
Plan Collection
Plan#192-1033
Starting at$600
3915
Sq Ft
2
Story
3
Bed
3.5
Bath
2
Car
Plan Collection
Plan Collection
Plan Collection
Plan#146-1965
Starting at$1120
2701
Sq Ft
2
Story
3
Bed
3
Bath
2
Car
Plan Collection
Plan Collection
Plan Collection
Plan#108-1637
Starting at$1765
3641
Sq Ft
2
Story
3
Bed
3
Bath
2
Car
View All

Other Plans By This Designer

Plan Collection
Plan Collection
Plan Collection
Plan#116-1106
Starting at$0
5165
Sq Ft
2
Story
5
Bed
5.5
Bath
3
Car
Plan Collection
Plan Collection
Plan Collection
Plan#116-1104
Starting at$0
2490
Sq Ft
1.5
Story
4
Bed
3
Bath
0
Car
Plan Collection
Plan Collection
Plan Collection
Plan#116-1080
Starting at$0
3885
Sq Ft
2
Story
4
Bed
3.5
Bath
3
Car