Estimate your costs based on your location and materials.
Yes! This plan can be customized—contact us for a free quote.


Yes! This plan can be customized—contact us for a free quote.
Plans by this designer do NOT usually come with FRAMING - some plans may have framing available for an extra fee - please contact us to find out about a specific plan & we will check with the designer!! Additionally: For this designer, if you choose optional features such as but not limited to: 2x6 framing, reverse or optional basement, the designer will need an additional 2-5 business days to adjust the plan accordingly. Please keep this in mind when choosing your shipping option. If you would like Express or Priority shipping, the designer will ship the plan to you using the method you choose but you will still have the 2-5 business day waiting period BEFORE they ship! Please feel free to contact us with any questions! PLEASE NOTE: Multi-licenses are available. The plans do not come with ICF specifications. If ICF construction method is desired, the CAD plan can be purchased and then forwarded to the ICF dealer and they’ll do a takeoff to assist with that specific projec
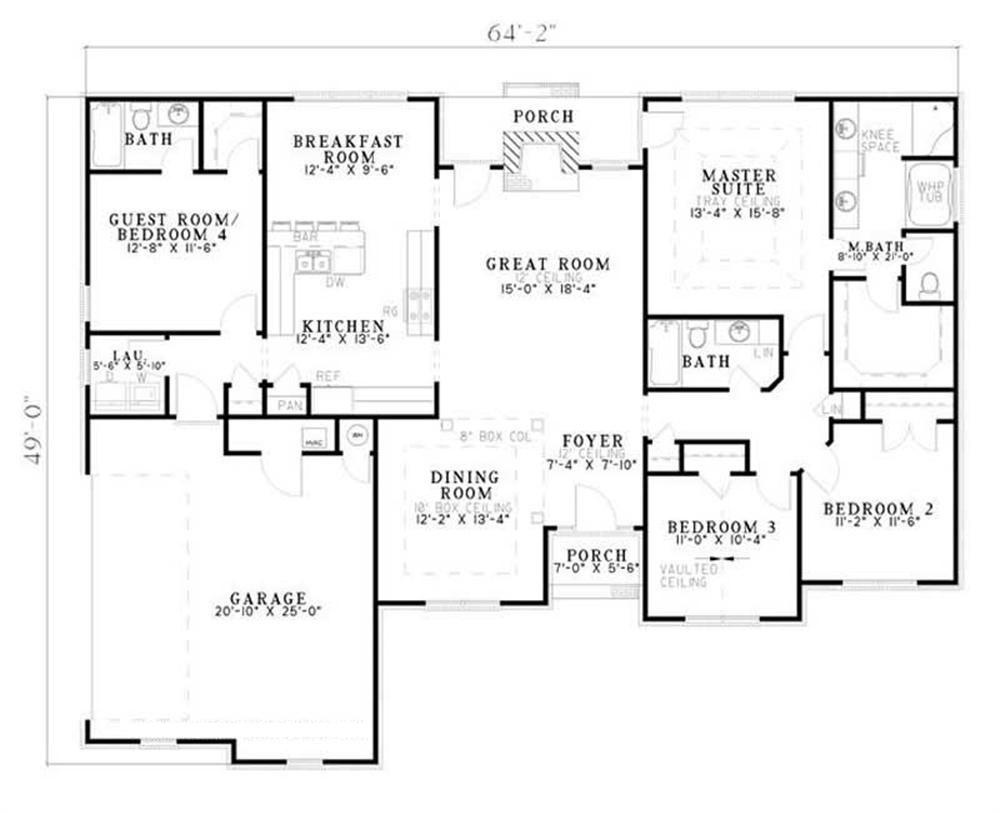
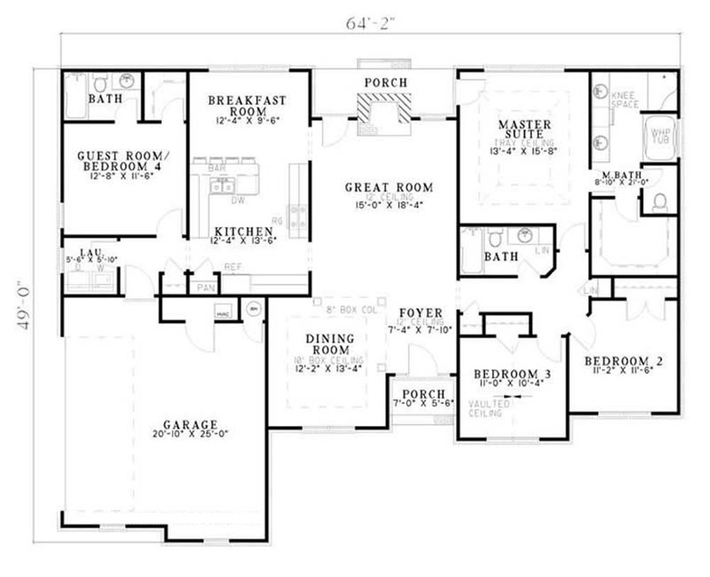
This captivating Ranch style home with Contemporary characteristics (Plan #153-1645) has 1989 square feet of finished, conditioned living space. The attractive 1-story home's floor plan includes 4 bedrooms in addition to
• Fireplace
• Guest room suite
• High ceilings
• Oversize garage
Estimate your costs based on your location and materials.
All sales of house plans, modifications, and other products found on this site are final. No refunds or exchanges can be given once your order has begun the fulfillment process. Please see our Policies for additional information.
All plans offered on ThePlanCollection.com are designed to conform to the local building codes when and where the original plan was drawn.
The homes as shown in photographs and renderings may differ from the actual blueprints. For more detailed information, please review the floor plan images herein carefully.
Estimate your costs based on your location and materials.






















