Estimate your costs based on your location and materials.
Yes! This plan can be customized—contact us for a free quote.

Yes! This plan can be customized—contact us for a free quote.
PLEASE NOTE!! For this designer, The PDF that comes with the PRINT Packages (5 set+PDF and 8 set+PDF) is NOT Modifiable - it is for printing ONLY!
PLEASE NOTE!! Optional Foundations (foundations that cost extra money) will take 5-10 business days to complete.
When choosing an optional (priced) foundation, please allow 5–10 days for plan to ship.
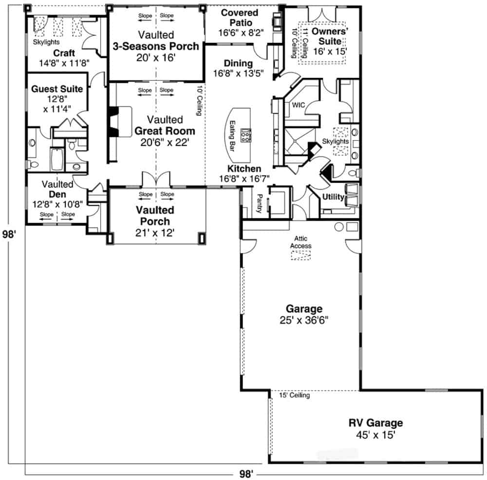
Designed with exquisite craftsmanship, refinement, and sophistication, this Country Ranch home with Texas Style characteristics may well be your family’s top choice once they get a look at it, especially if you're an RV-loving family! Covering a total heated and cooled area of 2652 square feet with 2 bedrooms – 4 if you make the den with closet and craft room with closet into bedrooms – the house also features an oversize 1675-square-foot 3-car garage that includes an RV bay.
Estimate your costs based on your location and materials.
All sales of house plans, modifications, and other products found on this site are final. No refunds or exchanges can be given once your order has begun the fulfillment process. Please see our Policies for additional information.
All plans offered on ThePlanCollection.com are designed to conform to the local building codes when and where the original plan was drawn.
The homes as shown in photographs and renderings may differ from the actual blueprints. For more detailed information, please review the floor plan images herein carefully.
Estimate your costs based on your location and materials.





