Estimate your costs based on your location and materials.
Yes! This plan can be customized—contact us for a free quote.


Yes! This plan can be customized—contact us for a free quote.
PLEASE NOTE! Please note that paper orders will be delayed until after the New Year. Due to the high volume of requests, please note that timelines for quotes and order fulfillment for this designer will be longer. We are looking at a 2-week timelines.
On some plans, alternate foundations could take up to ONE WEEK to produce. NOTE FROM DESIGNER: If you purchase a CAD, you will automatically receive the unlimited build license!
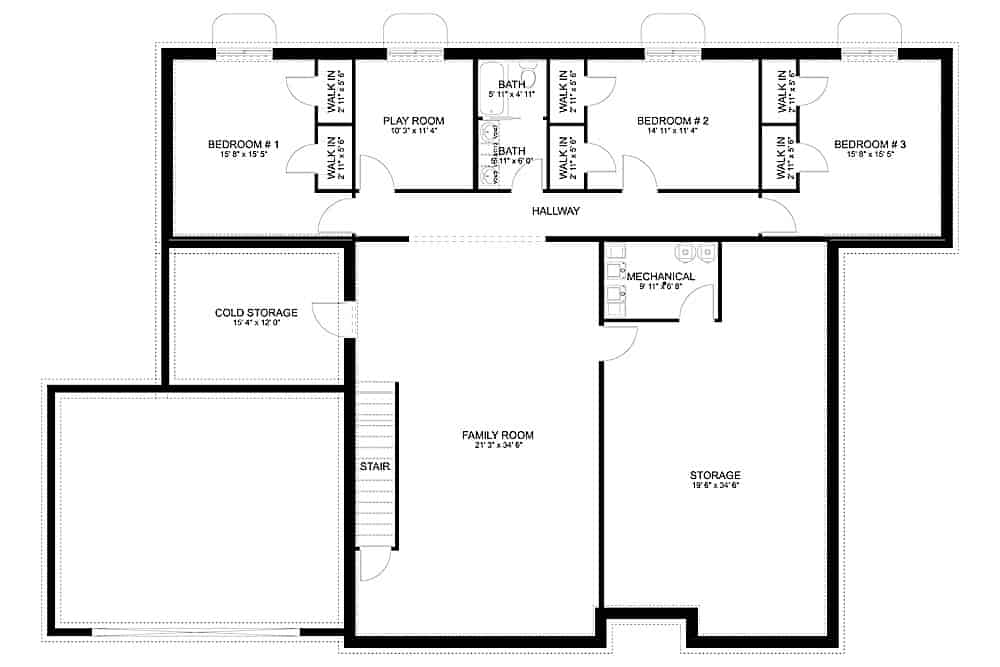
Note: The main level has 2705 living sq ft; the optional finished basement adds 2915 sq ft.
This elegantly designed one-story transitional Craftsman home with a total heated-cooled area of 2,705 square feet is an amazing house design inside out. The low-slung roofline, front-facing gable, four decorative dormers, and brick accents create a beautiful curb appeal to the house.
There's a wide main entrance door that will usher you into a large entry hall, connecting you to the Great Room, with the dining room and main kitchen, in an open floor plan. The covered porch on the left side further enhances the area of the dining room, as it...
Estimate your costs based on your location and materials.
All sales of house plans, modifications, and other products found on this site are final. No refunds or exchanges can be given once your order has begun the fulfillment process. Please see our Policies for additional information.
All plans offered on ThePlanCollection.com are designed to conform to the local building codes when and where the original plan was drawn.
The homes as shown in photographs and renderings may differ from the actual blueprints. For more detailed information, please review the floor plan images herein carefully.
Estimate your costs based on your location and materials.













































