Estimate your costs based on your location and materials.
Yes! This plan can be customized—contact us for a free quote.



Yes! This plan can be customized—contact us for a free quote.
PLEASE NOTE! Please note that paper orders will be delayed until after the New Year. Due to the high volume of requests, please note that timelines for quotes and order fulfillment for this designer will be longer. We are looking at a 2-week timelines.
On some plans, alternate foundations could take up to ONE WEEK to produce. NOTE FROM DESIGNER: If you purchase a CAD, you will automatically receive the unlimited build license!
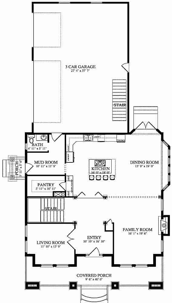
Note: The main floor has 1548 living sq ft; the upper floor has 1506 living sq ft plus a bonus room with 767 sq ft; the basement level has an optional 1846 living sq ft;
This plan is a classic rustic Cottage exterior home with a floor plan that is spacious and inviting. The house covers 5667 square feet of finished and unfinished space with a bonus room and optional basement level that can be finished according to the floor plan in the future if desired. Excluding the basement and bonus room, this modern farmhouse with a cottage vibe has 3054 living square feet. The 3-car garage opens at the back of the house with a side entrance, and its third bay may be converted into a workshop area or another functional room according to your needs. This...
Estimate your costs based on your location and materials.
All sales of house plans, modifications, and other products found on this site are final. No refunds or exchanges can be given once your order has begun the fulfillment process. Please see our Policies for additional information.
All plans offered on ThePlanCollection.com are designed to conform to the local building codes when and where the original plan was drawn.
The homes as shown in photographs and renderings may differ from the actual blueprints. For more detailed information, please review the floor plan images herein carefully.
Estimate your costs based on your location and materials.






















































