Estimate your costs based on your location and materials.
Yes! This plan can be customized—contact us for a free quote.


Yes! This plan can be customized—contact us for a free quote.
On some plans, Basement Foundations, Walkout Basement Foundations, & 2x6 Conversions could take up to ONE WEEK to produce. Materials Lists could take up to FOUR WEEKS to produce and they will be for the ORIGINAL plan! Any modifications will NOT be reflected on the Materials List. NOTE FROM DESIGNER: If you purchase a CAD, you will automatically receive the unlimited build license - no need to purchase separately!
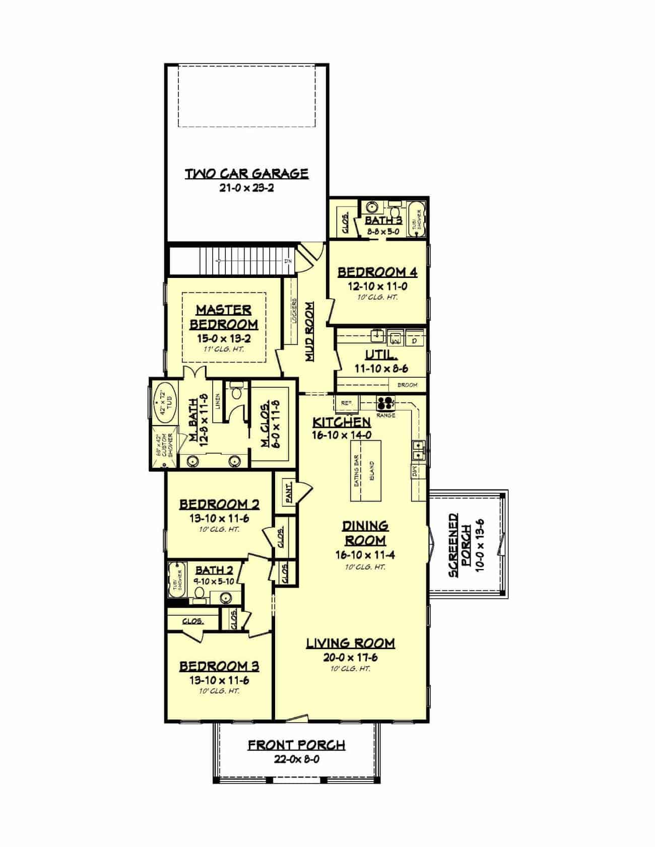
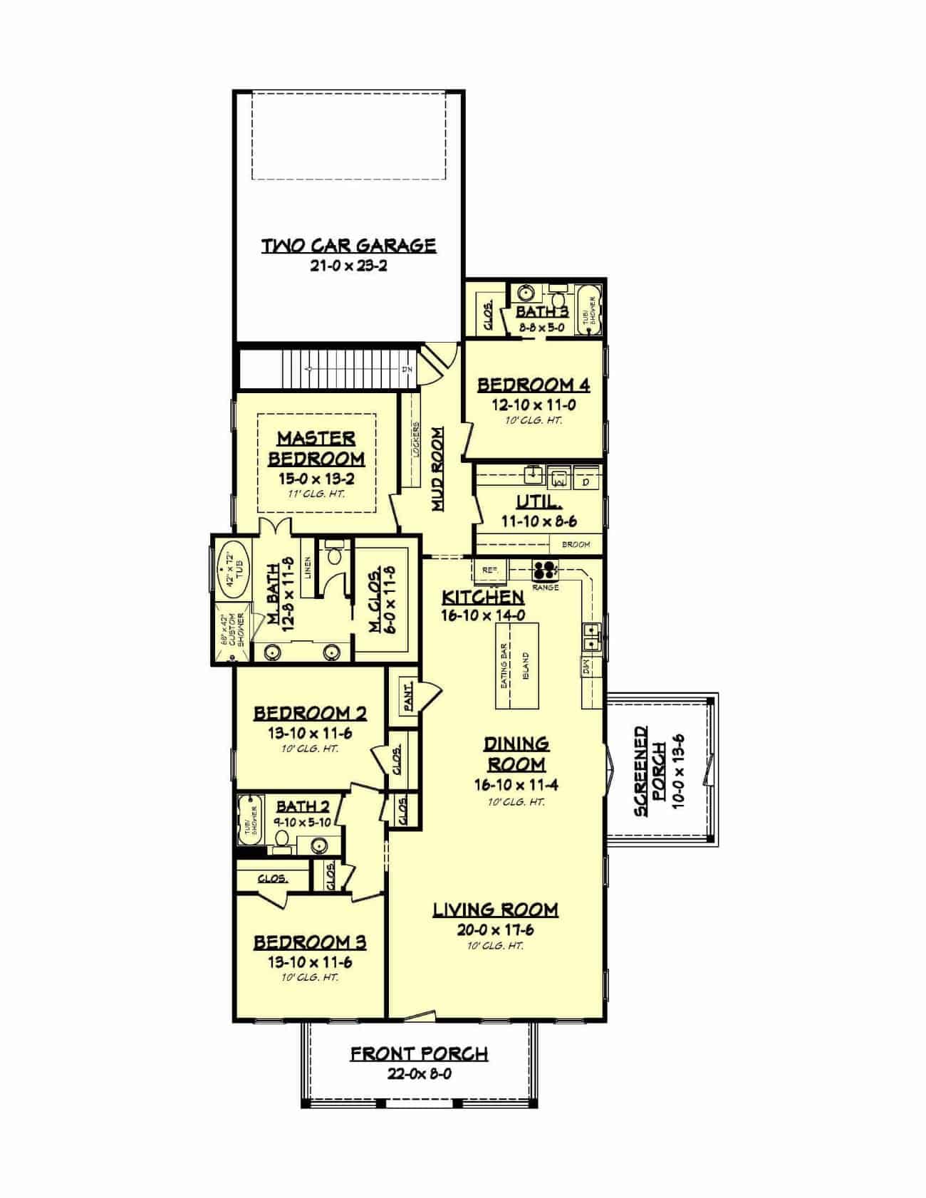
The facade and narrow layout of this comfy Country style home (Plan #142-1193) belie its size and utility. Because the garage is a rear-entry type at the back of the house, the home has the look of a smallish cottage or farmhouse. But with 2219 square feet of living space, it has a lot to offer. And 10- and 11-foot-high ceilings make the home feel even bigger than it is.
Four bedrooms, including the lovely master suite, are situated along the left and rear perimeter of the home, along with the garage. One of the bedrroms has its own bathroom to form a...
Estimate your costs based on your location and materials.
All sales of house plans, modifications, and other products found on this site are final. No refunds or exchanges can be given once your order has begun the fulfillment process. Please see our Policies for additional information.
All plans offered on ThePlanCollection.com are designed to conform to the local building codes when and where the original plan was drawn.
The homes as shown in photographs and renderings may differ from the actual blueprints. For more detailed information, please review the floor plan images herein carefully.
Estimate your costs based on your location and materials.












