Estimate your costs based on your location and materials.
Yes! This plan can be customized—contact us for a free quote.



Yes! This plan can be customized—contact us for a free quote.
On some plans, Basement Foundations, Walkout Basement Foundations, & 2x6 Conversions could take up to ONE WEEK to produce. Materials Lists could take up to FOUR WEEKS to produce and they will be for the ORIGINAL plan! Any modifications will NOT be reflected on the Materials List. NOTE FROM DESIGNER: If you purchase a CAD, you will automatically receive the unlimited build license - no need to purchase separately!
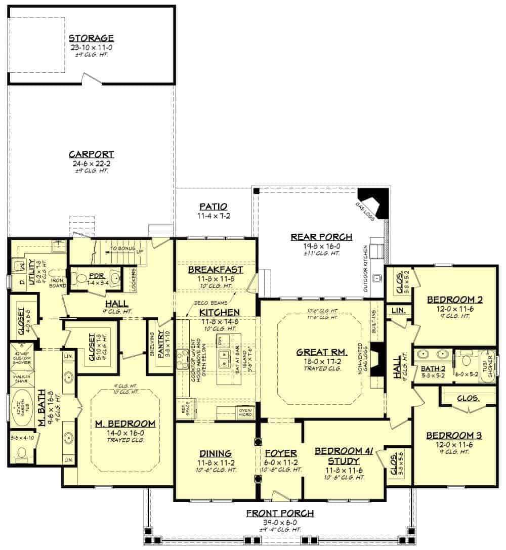
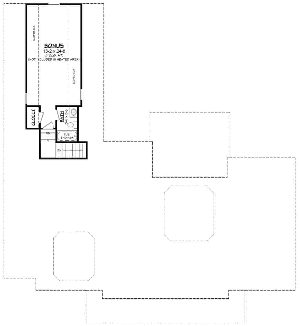
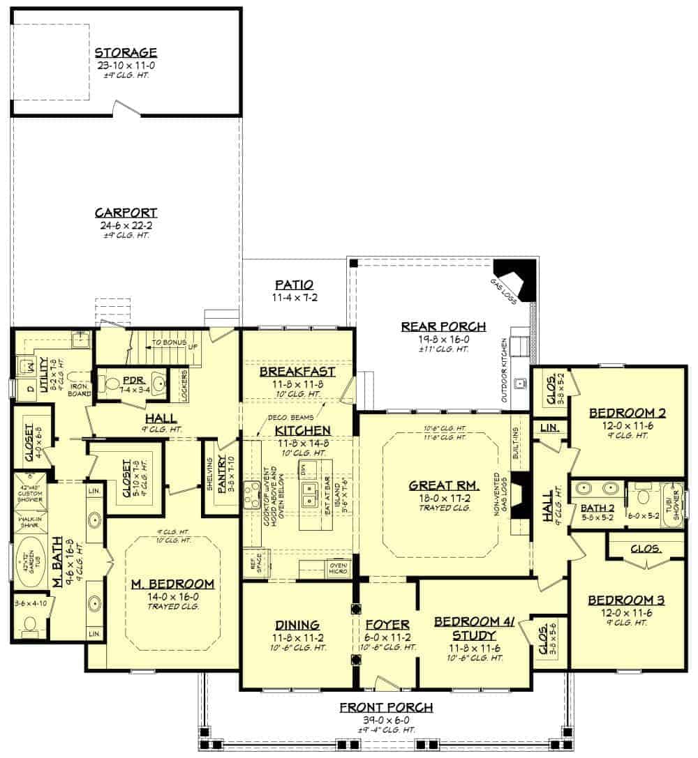
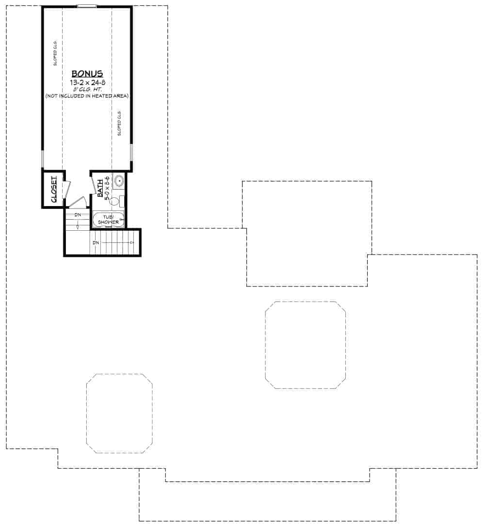
Please note: The total square footage of this plan is 4245. With the basement option, the depth of the house increases to 82' 4" and total heated square feet increases to 2473.
This plan is Southern comfort at its best!
This magnificent home has such great curb appeal. The front porch is perfect for sitting out enjoying long days. Inside, the floor plan offers 4 large bedrooms, 2.5 baths, and over 2400 living sq ft. The great room has a stunning fireplace and views to the backyard allowing the home to be consumed with natural lighting. The rear porch offers an outdoor fireplace and optional outdoor kitchen, perfect for get-togethers with family and friends. In the kitchen, a raised bar offers extra seating while lots of cabinets are perfect...
Estimate your costs based on your location and materials.
All sales of house plans, modifications, and other products found on this site are final. No refunds or exchanges can be given once your order has begun the fulfillment process. Please see our Policies for additional information.
All plans offered on ThePlanCollection.com are designed to conform to the local building codes when and where the original plan was drawn.
The homes as shown in photographs and renderings may differ from the actual blueprints. For more detailed information, please review the floor plan images herein carefully.
Estimate your costs based on your location and materials.








