Estimate your costs based on your location and materials.
Yes! This plan can be customized—contact us for a free quote.


Yes! This plan can be customized—contact us for a free quote.
Plans by this designer do NOT usually come with FRAMING - some plans may have framing available for an extra fee - please contact us to find out about a specific plan & we will check with the designer!!
Additionally: For this designer, if you choose optional features such as but not limited to: 2x6 framing, reverse or optional basement, the designer will need an additional 2-5 business days to adjust the plan accordingly. Please keep this in mind when choosing your shipping option. If you would like Express or Priority shipping, the designer will ship the plan to you using the method you choose but you will still have the 2-5 business day waiting period BEFORE they ship! Please feel free to contact us with any questions! PLEASE NOTE: Multi-licenses are available.
The plans do not come with ICF specifications. If ICF construction method is desired, the CAD plan can be purchased and then forwarded to the ICF dealer and they’ll do a takeoff to assist with that specific projec
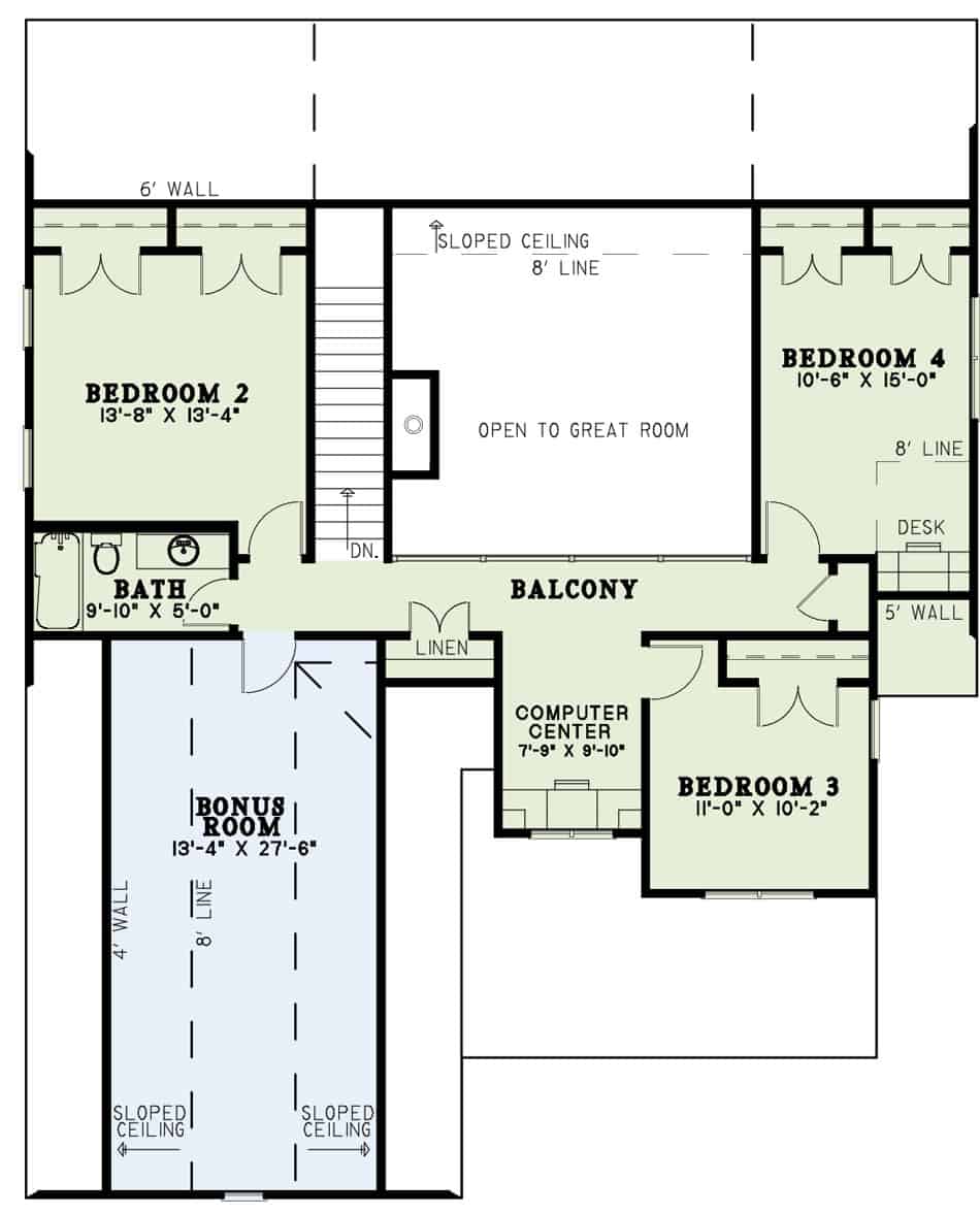
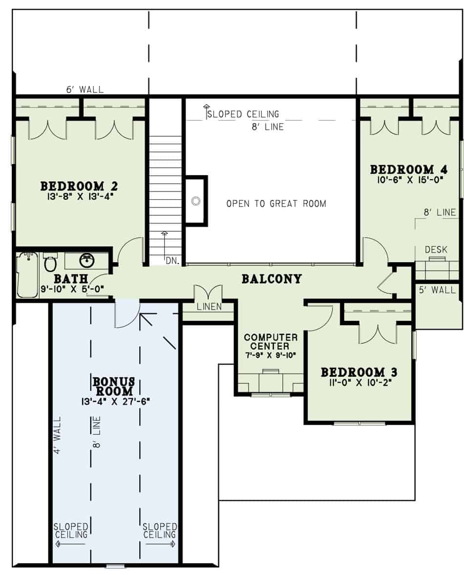
COMMENTS: 10 box columns on the front porch. There is a foyer with arched opening to the great room. Dining room with access to the kitchen. Great Room with fireplace, media center, built-ins, and access to the rear grilling porch. The kitchen is open to the great room with snack bar to breakfast room and walk-in pantry. Master suite with computer center and access to the rear porch. Master bath with shower, whirlpool tub, split vanities, and walk-in closet. Kid's nook with bench for storage. Upper floor computer center. All of the bedrooms come with ample closet space. Bedroom 4 has a built-in desk. Bonus room for future media room. The total square footage is 3771. The dimensions are measured from outside to outside wall.
One of our favorite homes. This two-story, country Craftsman has stunning curb appeal with its shakes and brick exterior. The elegant arches in front lead to a large, covered porch. Entering through the front door, you are greeted by an attractive foyer that opens out into the great room – the center and heart of the home - with an impressive fireplace and built-ins to the left. To the right is a large, modern kitchen with an eating bar – ideal for entertaining guests or spending time with family. Both the breakfast room and great room open out to the grilling porch...
Estimate your costs based on your location and materials.
All sales of house plans, modifications, and other products found on this site are final. No refunds or exchanges can be given once your order has begun the fulfillment process. Please see our Policies for additional information.
All plans offered on ThePlanCollection.com are designed to conform to the local building codes when and where the original plan was drawn.
The homes as shown in photographs and renderings may differ from the actual blueprints. For more detailed information, please review the floor plan images herein carefully.
Estimate your costs based on your location and materials.




























