Estimate your costs based on your location and materials.
Yes! This plan can be customized—contact us for a free quote.


Yes! This plan can be customized—contact us for a free quote.
Please Note: There might be a 4-5 day delay in getting the sales orders out due to updates being made to the designer's plans.
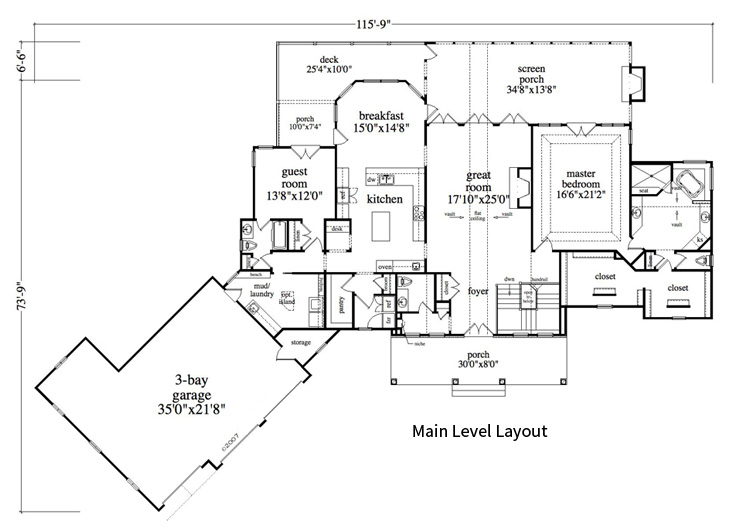
Perfect for a sloped lot or mountain setting, this rustic ranch house plan with Craftsman detailing offers 2618 living square feet, 5 bedrooms and 4.5 baths. The front is inviting and makes a great first impression.
The foyer leads to an expansive, vaulted great room with a fireplace. The screened porch is inviting, with an outdoor fireplace perfect for entertaining friends and family. It also allows for the perfect view to be enjoyed close to home. The huge, chef-like kitchen offers an island eating bar and leads to the large breakfast area that has wonderful views to the rear...
Read MoreEstimate your costs based on your location and materials.
All sales of house plans, modifications, and other products found on this site are final. No refunds or exchanges can be given once your order has begun the fulfillment process. Please see our Policies for additional information.
All plans offered on ThePlanCollection.com are designed to conform to the local building codes when and where the original plan was drawn.
The homes as shown in photographs and renderings may differ from the actual blueprints. For more detailed information, please review the floor plan images herein carefully.
Estimate your costs based on your location and materials.













