Estimate your costs based on your location and materials.
Yes! This plan can be customized—contact us for a free quote.


Yes! This plan can be customized—contact us for a free quote.
PLEASE NOTE!! Mirror Reverse ONLY available if purchasing a PDF. Right Reading Reverse ONLY available if purchasing a CAD!
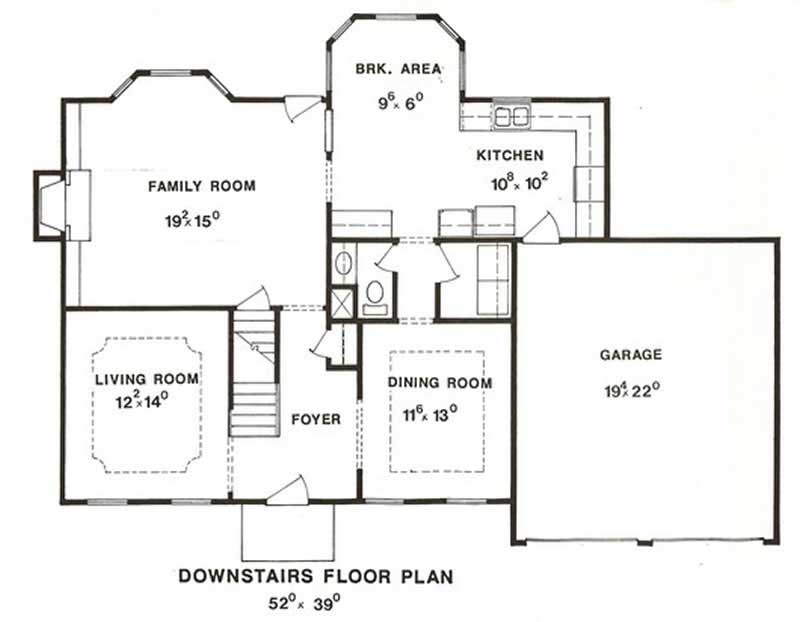
TOTAL SF. 2174, MAIN LEVEL SF. 1094, SECOND LEVEL 1080 WIDTH 52'-0", DEPTH 39'-0", BEDROOMS 4, BATHS 3, GARAGE 2 CAR, STORIES 2, EXTERIOR WALL 2X4, EXTERIOR SURFACE FRAME SIDING, CEILING HEIGHTS MAIN 8'-0", FOUNDATION BASEMENT, SPECIAL FEATURES: MASTER SUITE, RAISED CEILINGS IN LIVING ROOM AND DINING ROOM BREAKFEAST AREA
This elegant Colonial style home with Traditional characteristics (House Plan #147-1057) has 2174 living sq ft. The 2-story floor plan includes 4 bedrooms.
Estimate your costs based on your location and materials.
All sales of house plans, modifications, and other products found on this site are final. No refunds or exchanges can be given once your order has begun the fulfillment process. Please see our Policies for additional information.
All plans offered on ThePlanCollection.com are designed to conform to the local building codes when and where the original plan was drawn.
The homes as shown in photographs and renderings may differ from the actual blueprints. For more detailed information, please review the floor plan images herein carefully.
Estimate your costs based on your location and materials.


