Estimate your costs based on your location and materials.
Yes! This plan can be customized—contact us for a free quote.


Yes! This plan can be customized—contact us for a free quote.
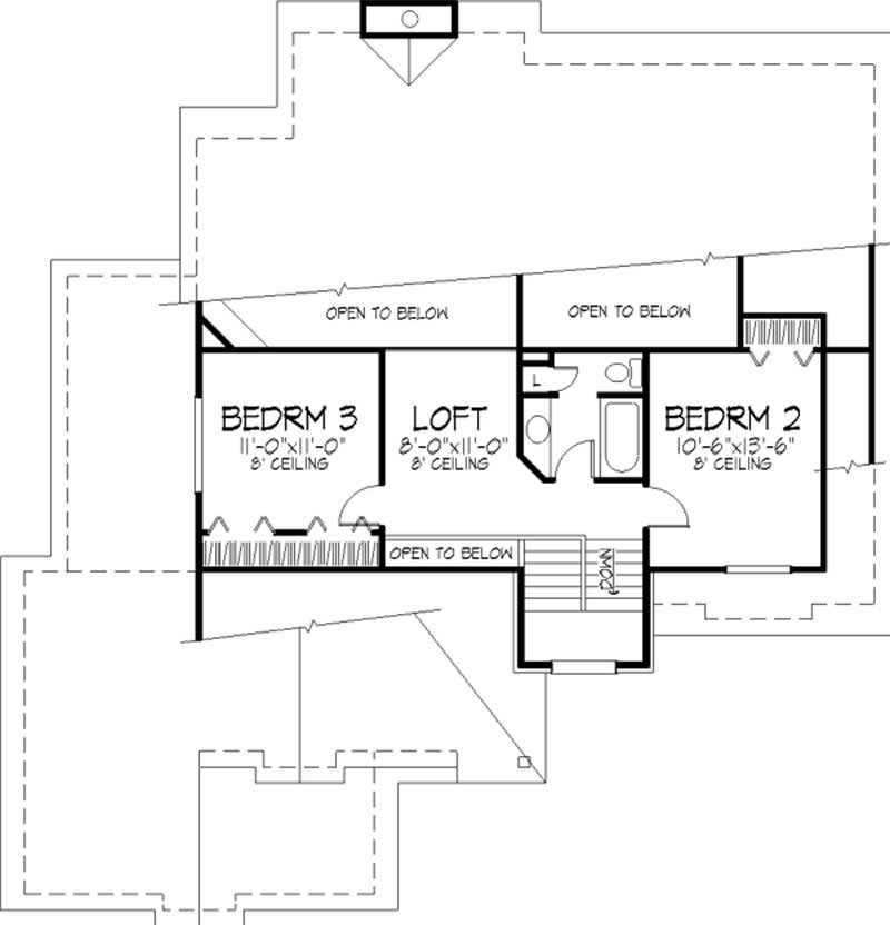
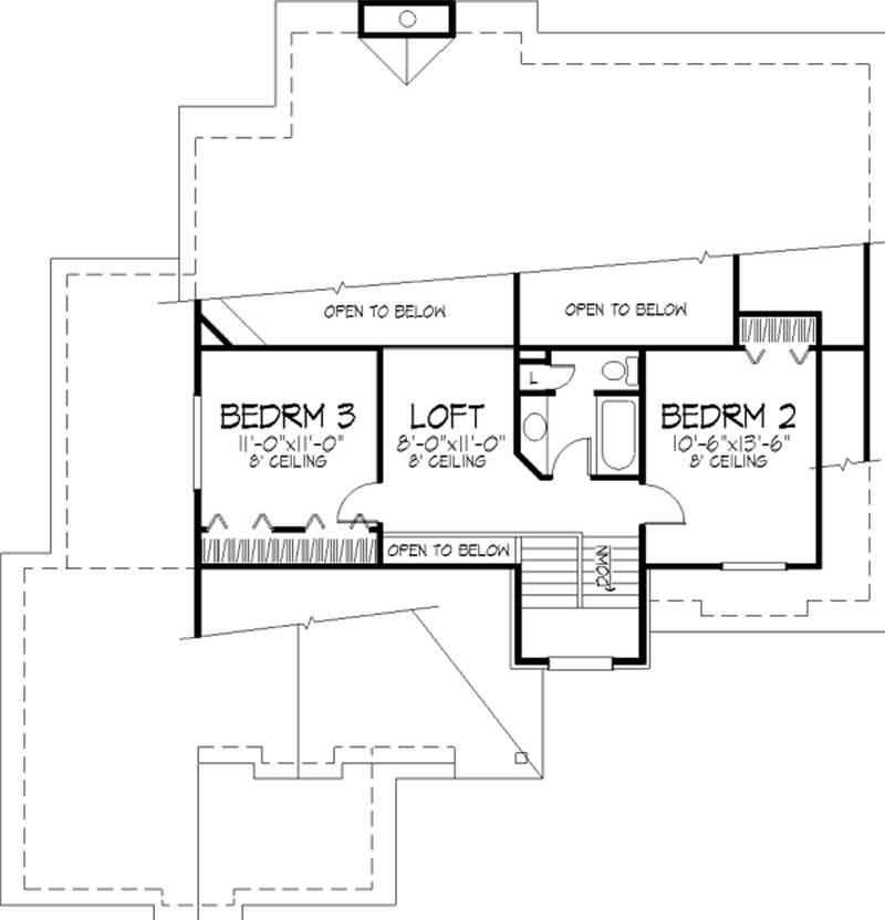
The large sweeping roofscape, the interesting use of stone and narrow lap siding, and the welcoming front porch all add up to a look of success. The front door opens to a dramatic, vaulted Great Room with fireplace, corner glass and a large deck. Also on the first floor are a den/guest bedroom with doubledoors, a well-laid-out kitchen with a breakfast room, and a wet bar in the Great Room. The central placement of the two bedrooms and the loft overlook on the second floor allow the first floor master suite to have a vaulted ceiling.
Estimate your costs based on your location and materials.
All sales of house plans, modifications, and other products found on this site are final. No refunds or exchanges can be given once your order has begun the fulfillment process. Please see our Policies for additional information.
All plans offered on ThePlanCollection.com are designed to conform to the local building codes when and where the original plan was drawn.
The homes as shown in photographs and renderings may differ from the actual blueprints. For more detailed information, please review the floor plan images herein carefully.
Estimate your costs based on your location and materials.


