Estimate your costs based on your location and materials.
Yes! This plan can be customized—contact us for a free quote.


Yes! This plan can be customized—contact us for a free quote.
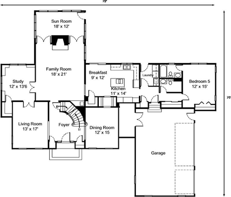
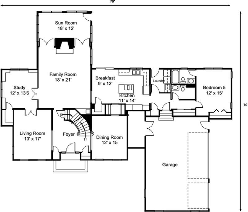
This elegant home welcomes with a grand, two-story foyer featuring a magnificent staircase leading to the sleeping areas above. The spacious family room showcases a stunning gas-log fireplace flanked by French doors that open to an inviting sun room. An informal eating area offering rear views lies adjacent to a spectacular kitchen. The master suite boasts a large sitting room with a fireplace, a walk-in closet, a dressing area and a private bath.
Estimate your costs based on your location and materials.
All sales of house plans, modifications, and other products found on this site are final. No refunds or exchanges can be given once your order has begun the fulfillment process. Please see our Policies for additional information.
All plans offered on ThePlanCollection.com are designed to conform to the local building codes when and where the original plan was drawn.
The homes as shown in photographs and renderings may differ from the actual blueprints. For more detailed information, please review the floor plan images herein carefully.
Estimate your costs based on your location and materials.



