Estimate your costs based on your location and materials.
Yes! This plan can be customized—contact us for a free quote.



Yes! This plan can be customized—contact us for a free quote.
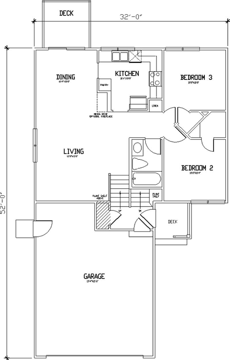
This charming home offers budget-minded construction, yet provides all the features your family wants and needs. The living room and dining rooms merge to create a large, open gathering space for social entertaining. The dining room overlooks the rear deck for added beauty. The galley kitchen has a handy pantry. The upstairs includes a large master suite with a private bath, a future family room and a large unfinished space to fit your family's evolving needs!
Estimate your costs based on your location and materials.
All sales of house plans, modifications, and other products found on this site are final. No refunds or exchanges can be given once your order has begun the fulfillment process. Please see our Policies for additional information.
All plans offered on ThePlanCollection.com are designed to conform to the local building codes when and where the original plan was drawn.
The homes as shown in photographs and renderings may differ from the actual blueprints. For more detailed information, please review the floor plan images herein carefully.
Estimate your costs based on your location and materials.



