Estimate your costs based on your location and materials.
Yes! This plan can be customized—contact us for a free quote.


Yes! This plan can be customized—contact us for a free quote.
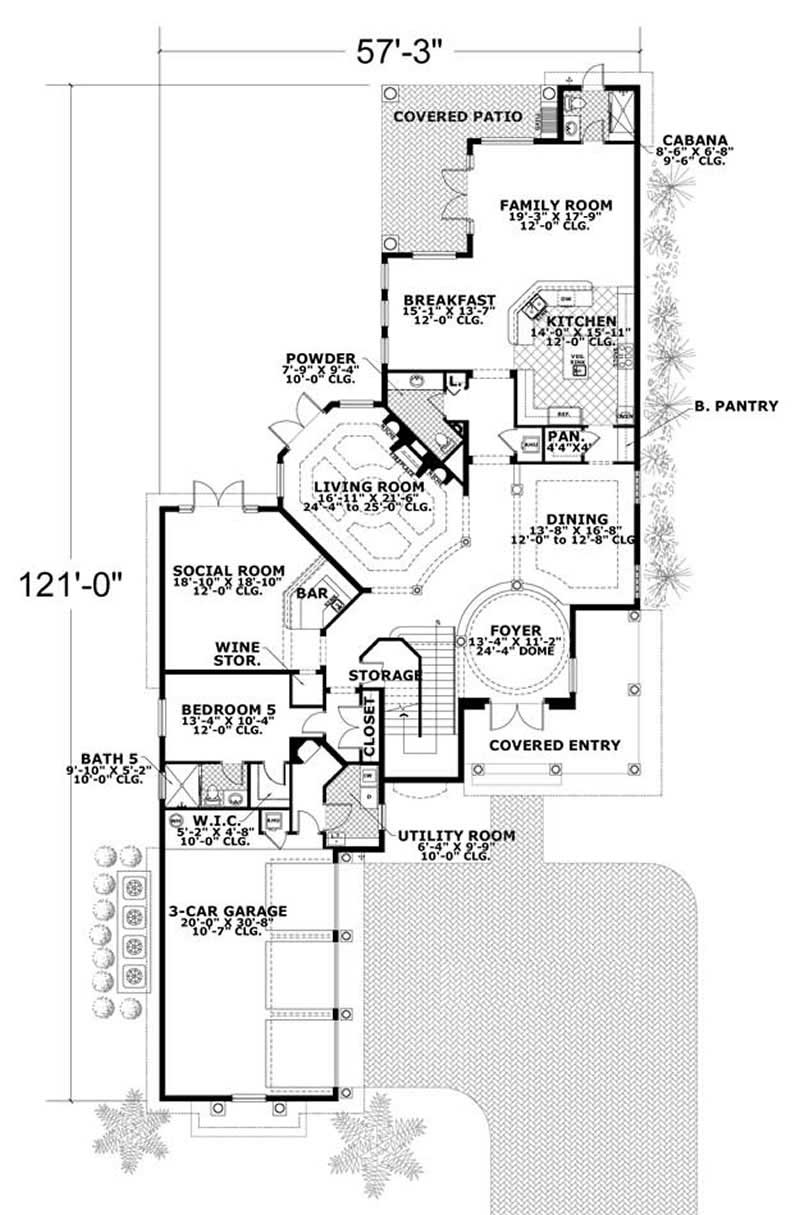
This superb, two-story Florida Mediterranean-style waterfront home plan features five bedrooms, four and one-half bathrooms, a cabana bath, three-car garage, a grand covered entrance with exquisite French doors with arched transom and covered balconies. The first story of this design offers a large family room opening to a covered patio, a formal foyer with domed ceiling that leads to large open living/dining/social area with a wet bar and fireplace. This is truly a house plan "fit for a king"! It is a perfect place for hosting large parties. The gourmet island kitchen with an...
Estimate your costs based on your location and materials.
All sales of house plans, modifications, and other products found on this site are final. No refunds or exchanges can be given once your order has begun the fulfillment process. Please see our Policies for additional information.
All plans offered on ThePlanCollection.com are designed to conform to the local building codes when and where the original plan was drawn.
The homes as shown in photographs and renderings may differ from the actual blueprints. For more detailed information, please review the floor plan images herein carefully.
Estimate your costs based on your location and materials.


