7-Bedroom, 6412 Sq Ft Coastal Plan with His and Her Walk-in Closets

Coastal home (ThePlanCollection: Plan #107-1182)

Images/Plans copyrighted by designer. Photos may reflect homeowner modifications.

About House Plan #107-1182

Sq Ft
6412
Sq Ft
Bedrooms
7
Bedrooms
Bathroom
7
Baths
Half Baths
1
Half Baths
Bedrooms
3
Cars
Bedrooms
2
Stories
Bedrooms
80' 0'
Width
Bedrooms
58
Depth
Starting at$1900.00What's included
STEP 1Bedrooms
STEP 2Bedrooms
STEP 3Bedrooms

Subtotal:$0
BedroomsBest Price Guaranteed
Plan Collection

How much will it cost to build?

Estimate your costs based on your location and materials.

Free Cost Instant Estimator

Floor Plans

Main Floor Plan
Main Floor Plan
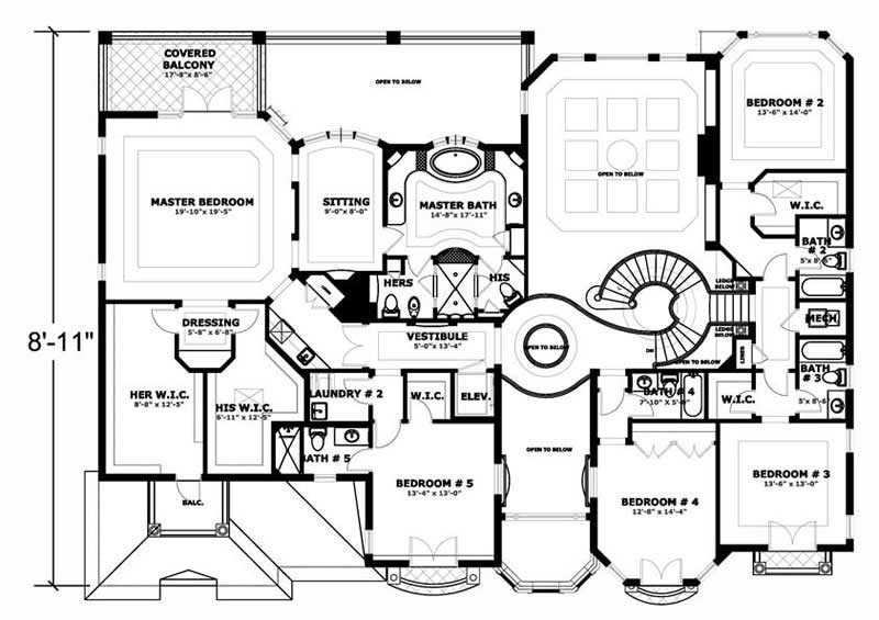
Second Floor Plan
Second Floor Plan
Plan Collection

Can I modify this plan?

Yes! This plan can be customized—contact us for a free quote.

House Plan Description

This Luxury House is made of concrete-block exterior. The dining room has a cofferred ceiling and the butler's pantry leads to the kitchen. The kitchen has an island range and a walk-in pantry, as well as a breakfast room with access to the rear covered patio. The family room has a cofferred ceiling, built-ins, and access to the patio as well. The living room has an open ceiling; the bar and fireplace have built-ins. The VIP suite is made with a cofferred ceiling, walk-in closet, and access to the rear VIP bath. The VIP bath has a corner shower, whirlpool tub, and split vanities....

Home Details

Summary
Plan #:107-1182
Starting at:$1900.00
Floors:2
Bedrooms:7
Full Baths:7
Half Baths:1
Garage:
Square Footage
Heated Area:6412 Sq. Ft.
First Floor:3480 Sq. Ft.
Second Floor:2932 Sq. Ft.
Unheated Area:
Garage:607 Sq. Ft.
Dimensions
Depth:58' 11''
Ridge Height:32' 8''
Architectural Styles
Exterior Wall Material
Stucco
Roofing Type
Hip
Roofing Material
Tiles
Ceiling Height
9 Foot Ceiling
Special Feature
Mother in law apartmentFireplaceDining RoomFamily RoomMain Level LaundryLibraryColor PhotosColor PhotosSplit BathroomDenVaulted CeilingsElevatorBalconyOpen Floor Plan
Garage Type
Attached GarageFront Entry
Fireplaces
One Fireplace
Exterior Wall Framing
Concrete
Building Lot Type
Flat Site
Kitchen Features
Kitchen IslandButler's PantryNook/Breakfast AreaWalk-in PantryPeninsula/Eating BarEat-In Kitchen
Porches and Exterior Features
Covered Front PorchCovered Rear Porch
Master Suite Features
Two or More Master SuitesMaster BathroomWalk In ClosetSitting AreaPrivate DeckSecond Floor Master

What’s Included

Most plan sets include the following:

icon text-secondary-400 includedFloor plan

icon text-secondary-400 includedKitchen & Bath layout

icon text-secondary-400 includedExterior elevations

icon text-secondary-400 includedSections

icon text-secondary-400 includedStructural plans

icon text-secondary-400 includedFoundation plan

icon text-secondary-400 includedRoof plan

icon text-secondary-400 includedMechanical layout

icon text-secondary-400 includedElectrical layout

What’s Not Included

These items are  NOT included:

icon text-secondary-400 includedArchitectural or Engineering Stamp - handled locally if required.

icon text-secondary-400 includedSite Plan - handled locally when required.

icon text-secondary-400 includedMechanical Drawings (location of heating and air equipment and ductwork) - your subcontractors handle this.

icon text-secondary-400 includedPlumbing Drawings (drawings showing the actual plumbing pipe sizes and locations) - your subcontractors handle this.

icon text-secondary-400 includedEnergy calculations - handled locally when required.

Related House Plans

Plan Collection
Plan Collection
Plan Collection
Plan#107-1031
Starting at$2200
7883
Sq Ft
2
Story
7
Bed
7.5
Bath
3
Car
Plan Collection
Plan Collection
Plan Collection
Plan#107-1075
Starting at$2200
7502
Sq Ft
2
Story
7
Bed
7.5
Bath
2
Car
View All

Other Plans By This Designer

Plan Collection
Plan Collection
Plan Collection
Plan#107-1015
Starting at$1800
5555
Sq Ft
2
Story
4
Bed
4.5
Bath
3
Car
Plan Collection
Plan Collection
Plan Collection
Plan#107-1204
Starting at$1100
1250
Sq Ft
1
Story
3
Bed
2
Bath
1
Car
Plan Collection
Plan Collection
Plan Collection
Plan#107-1002
Starting at$1900
6175
Sq Ft
2
Story
6
Bed
7.5
Bath
4
Car