3-Bedroom, 3489 Sq Ft European Plan with Master Bathroom

Main image for house plan # 16031

Images/Plans copyrighted by designer. Photos may reflect homeowner modifications.

About House Plan #106-1047

Sq Ft
3489
Sq Ft
Bedrooms
3
Bedrooms
Bathroom
3
Baths
Half Baths
1
Half Baths
Bedrooms
4
Cars
Bedrooms
2
Stories
Bedrooms
82' 0'
Width
Bedrooms
100
Depth
Starting at$1695.00What's included
STEP 1Bedrooms
STEP 2Bedrooms
STEP 3Bedrooms

Subtotal:$0
BedroomsBest Price Guaranteed
Plan Collection

How much will it cost to build?

Estimate your costs based on your location and materials.

Free Cost Instant Estimator

Floor Plans

MAIN FLOOR PLAN
MAIN FLOOR PLAN
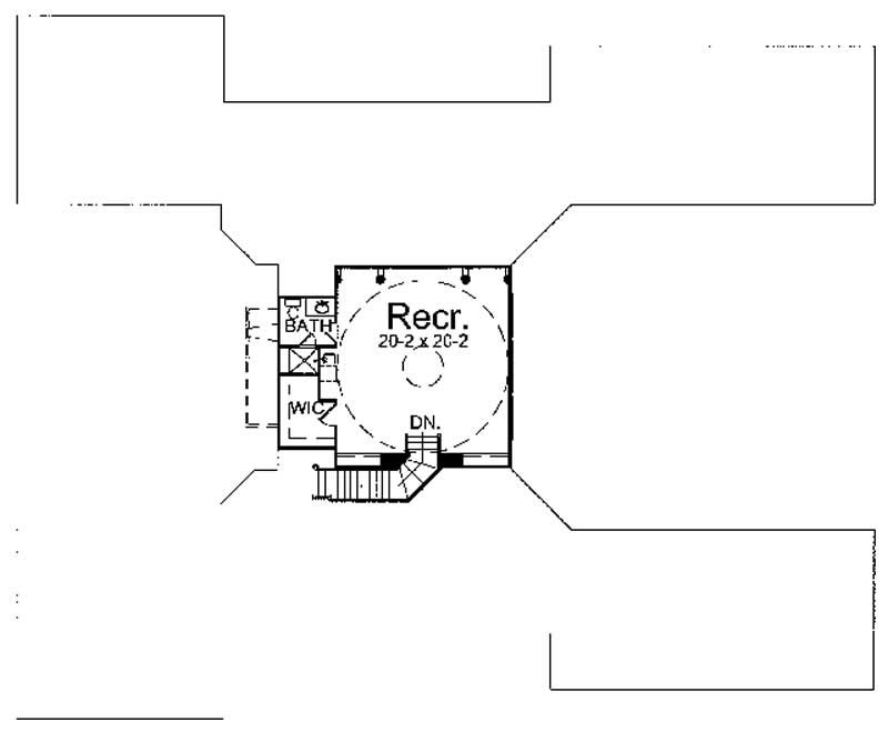
SECOND FLOOR PLAN
SECOND FLOOR PLAN
Plan Collection

Can I modify this plan?

Yes! This plan can be customized—contact us for a free quote.

Additional Notes from Designer

The plans by this designer do NOT include framing. PLEASE NOTE: An Unlimited Use License is available for purchase through the designer BUT YOU MUST purchase a CAD package!

House Plan Description

The #106-1047 is a traditional European style home. The home has an open plan with a library, grand room, dining, kitchen, and beautiful master bath with a sun room. The upper floor has a rec room with bath and walk-in closet.

Home Details

Summary
Plan #:106-1047
Starting at:$1695.00
Floors:2
Bedrooms:3
Full Baths:3
Half Baths:1
Garage:
Square Footage
Heated Area:3489 Sq. Ft.
First Floor:3489 Sq. Ft.
Unheated Area:
Dimensions
Architectural Styles
Exterior Wall Material
BrickRock/Stone
Special Feature
Library
Garage Type
Courtyard Entry
Fireplaces
One Fireplace

What’s Included

Most plan sets include the following:

icon text-secondary-400 includedFoundation Plan

icon text-secondary-400 includedFloor plans

icon text-secondary-400 includedElectrical layout

icon text-secondary-400 includedExterior elevations

icon text-secondary-400 includedCross-section

icon text-secondary-400 includedTypical Call detail

icon text-secondary-400 includedTypical footing detail

icon text-secondary-400 includedMiscellaneous details

icon text-secondary-400 includedWindow/Door sizes

icon text-secondary-400 includedRoof plan

What’s Not Included

These items are  NOT included:

icon text-secondary-400 includedFraming.

icon text-secondary-400 includedArchitectural or Engineering Stamp - handled locally if required.

icon text-secondary-400 includedSite Plan - handled locally when required.

icon text-secondary-400 includedMechanical Drawings (location of heating and air equipment and ductwork) - your subcontractors handle this.

icon text-secondary-400 includedPlumbing Drawings (drawings showing the actual plumbing pipe sizes and locations) - your subcontractors handle this.

icon text-secondary-400 includedEnergy calculations - handled locally when required.

Related House Plans

Plan Collection
Plan Collection
Plan Collection
Plan#153-1897
Starting at$2250
4121
Sq Ft
2
Story
3
Bed
3.5
Bath
3
Car
Plan Collection
Plan Collection
Plan Collection
Plan#117-1118
Starting at$1795
3230
Sq Ft
2
Story
3
Bed
3.5
Bath
3
Car
Plan Collection
Plan Collection
Plan Collection
Plan#161-1051
Starting at$2650
4190
Sq Ft
2
Story
3
Bed
3.5
Bath
4
Car
View All

Other Plans By This Designer

Plan Collection
Plan Collection
Plan Collection
Plan#106-1325
Starting at$4095
8628
Sq Ft
2
Story
7
Bed
7.5
Bath
5
Car
Plan Collection
Plan Collection
Plan Collection
Plan#106-1315
Starting at$1695
2830
Sq Ft
1
Story
3
Bed
2.5
Bath
3
Car
Plan Collection
Plan Collection
Plan Collection
Plan#106-1206
Starting at$4095
8210
Sq Ft
2
Story
6
Bed
6.5
Bath
4
Car