Estimate your costs based on your location and materials.
Yes! This plan can be customized—contact us for a free quote.



Yes! This plan can be customized—contact us for a free quote.
Please Note: The plans by this designer DO NOT include electrical plans or electrical layout plans. NOTE: If you are building this home in Washington State, please contact us BEFORE placing your order!
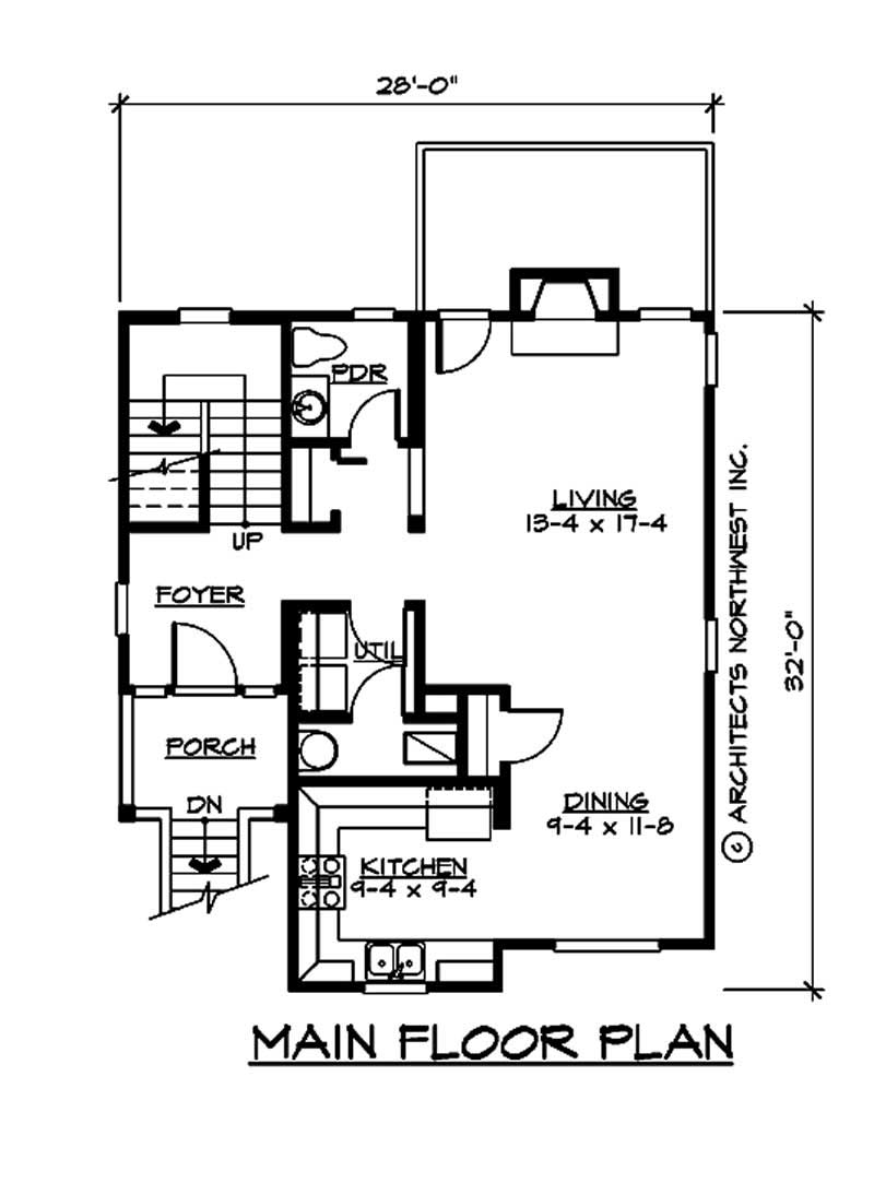
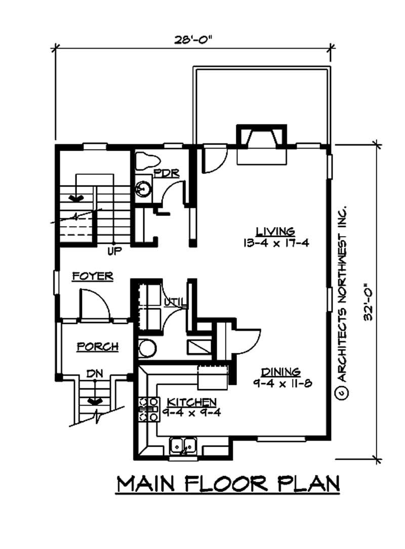
This beautiful and open floor plan allows easy access from the living room to the dining area and into the kitchen. It provides plenty of room for entertaining family and friends. As you make your way through the entrance there is the convenience of a powder room for your guests to freshen up in. In the living room you have a nice fireplace to enjoy and a door leading oft to a enjoyable deck. The plan has 2x6 exterior walls and 8” foundation stem...
Estimate your costs based on your location and materials.
All sales of house plans, modifications, and other products found on this site are final. No refunds or exchanges can be given once your order has begun the fulfillment process. Please see our Policies for additional information.
All plans offered on ThePlanCollection.com are designed to conform to the local building codes when and where the original plan was drawn.
The homes as shown in photographs and renderings may differ from the actual blueprints. For more detailed information, please review the floor plan images herein carefully.
Estimate your costs based on your location and materials.



