4-Bedroom, 3489 Sq Ft Country Plan with Kitchen Island

Main image for house plan # 13601

Images/Plans copyrighted by designer. Photos may reflect homeowner modifications.

About House Plan #101-1086

Sq Ft
3489
Sq Ft
Bedrooms
4
Bedrooms
Bathroom
3
Baths
Half Baths
0
Half Baths
Bedrooms
3
Cars
Bedrooms
2
Stories
Bedrooms
74' 8'
Width
Bedrooms
64
Depth
Starting at$1280.00What's included
STEP 1Bedrooms
STEP 2Bedrooms
STEP 3Bedrooms

Subtotal:$0
BedroomsBest Price Guaranteed
Plan Collection

How much will it cost to build?

Estimate your costs based on your location and materials.

Free Cost Instant Estimator

Floor Plans

MAIN FLOOR PLAN
MAIN FLOOR PLAN
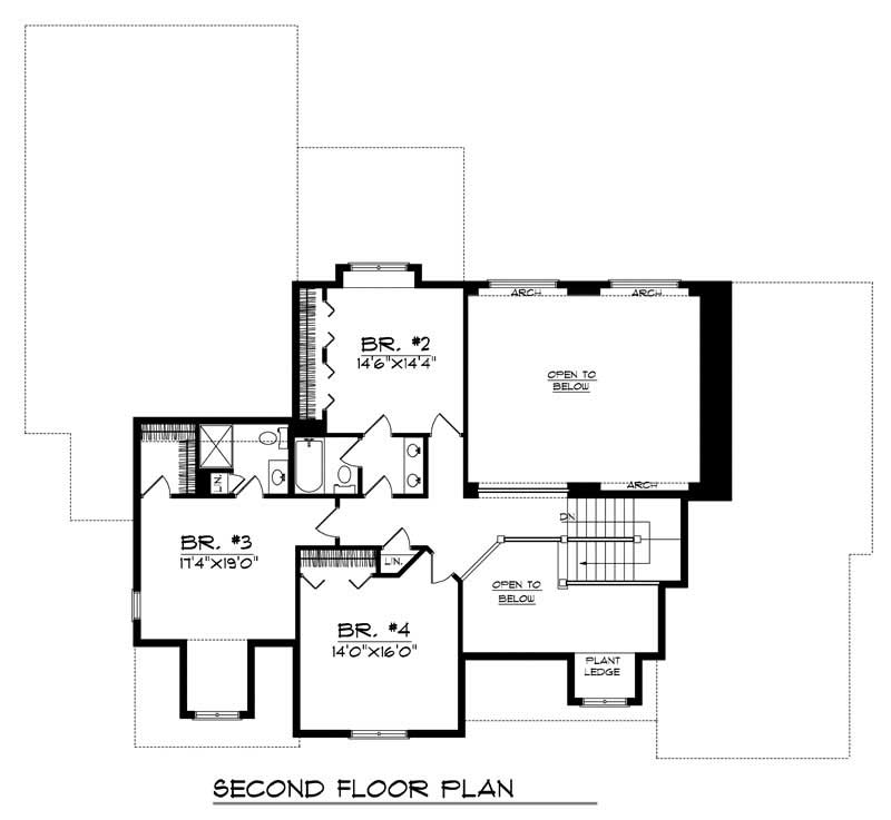
SECOND FLOOR PLAN
SECOND FLOOR PLAN
Plan Collection

Can I modify this plan?

Yes! This plan can be customized—contact us for a free quote.

House Plan Description

You are sure to fall in love with this traditional French Country two-story design. The great room offers a fireplace surrounded by built-in cabinets, a two-story ceiling, and striking arched windows. The study will provide you with a corner of the house to yourself, perfect for getting some work done. The spacious kitchen has a walk-in pantry, plenty of counter space, and an eating bar; it easily serves both the formal dining room, and the vaulted nook, which opens to a rear deck. The master bedroom enjoys plenty of space and two walk-in closets, along with a lavish private bath. This floor...

Home Details

Summary
Plan #:101-1086
Starting at:$1280.00
Floors:2
Bedrooms:4
Full Baths:3
Half Baths:0
Garage:
Square Footage
Heated Area:3489 Sq. Ft.
First Floor:2514 Sq. Ft.
Second Floor:975 Sq. Ft.
Unheated Area:
Dimensions
Width:74' 8''
Depth:64' 8''
Architectural Styles
Exterior Wall Material
Vinyl SidingBrickStuccoRock/Stone
Roof Pitch
12/12
Ceiling Height
10 Foot Ceiling
Special Feature
FireplaceDining Room
Garage Type
Attached Garage
Exterior Wall Framing
2x6
Kitchen Features
Walk-in Pantry

What’s Included

Most plan sets include the following:

icon text-secondary-400 includedFront, Back & Side Elevations

icon text-secondary-400 includedFloor Plans

icon text-secondary-400 includedElectrical Layout (location of outlets, switches, etc. - it does not have wiring schematics)

icon text-secondary-400 includedRoof Plan (Birdseye view)

icon text-secondary-400 includedFoundation Layout

icon text-secondary-400 includedWall & Stair Sections

icon text-secondary-400 includedCross Section

icon text-secondary-400 includedKitchen Layout

icon text-secondary-400 includedGeneral Notes

What’s Not Included

These items are  NOT included:

icon text-secondary-400 includedArchitectural or Engineering Stamp - handled locally if required.

icon text-secondary-400 includedSite Plan - handled locally when required.

icon text-secondary-400 includedMechanical Drawings (location of heating and air equipment and ductwork) - your subcontractors handle this.

icon text-secondary-400 includedPlumbing Drawings (drawings showing the actual plumbing pipe sizes and locations) - your subcontractors handle this.

icon text-secondary-400 includedFraming layouts with beam sizes and locations.

icon text-secondary-400 includedEnergy calculations - handled locally when required.

Related House Plans

Plan Collection
Plan Collection
Plan Collection
Plan#161-1067
Starting at$2400
3897
Sq Ft
2
Story
4
Bed
3.5
Bath
3
Car
Plan Collection
Plan Collection
Plan Collection
Plan#120-2176
Starting at$1405
3124
Sq Ft
2
Story
4
Bed
3.5
Bath
2
Car
Plan Collection
Plan Collection
Plan Collection
Plan#109-1191
Starting at$1495
2909
Sq Ft
2
Story
4
Bed
3.5
Bath
0
Car
View All

Other Plans By This Designer

Plan Collection
Plan Collection
Plan Collection
Plan#101-1503
Starting at$1090
2098
Sq Ft
2
Story
4
Bed
2
Bath
2
Car
Plan Collection
Plan Collection
Plan Collection
Plan#101-1028
Starting at$1240
3020
Sq Ft
2
Story
4
Bed
2.5
Bath
3
Car
Plan Collection
Plan Collection
Plan Collection
Plan#101-2024
Starting at$1240
3235
Sq Ft
1
Story
5
Bed
3.5
Bath
3
Car