2-Bedroom, 1459 Sq Ft Bungalow Plan with Covered Rear Porch

Bungalow home (ThePlanCollection: Plan #157-1146)

Images/Plans copyrighted by designer. Photos may reflect homeowner modifications.

About House Plan #157-1146

Sq Ft
1459
Sq Ft
Bedrooms
2
Bedrooms
Bathroom
1
Baths
Half Baths
0
Half Baths
Bedrooms
0
Cars
Bedrooms
1
Stories
Bedrooms
28' 0'
Width
Bedrooms
29
Depth
Starting at$1255.00What's included
STEP 1Bedrooms
STEP 2Bedrooms
STEP 3Bedrooms

Subtotal:$0
BedroomsBest Price Guaranteed
Plan Collection

How much will it cost to build?

Estimate your costs based on your location and materials.

Free Cost Instant Estimator

Floor Plans

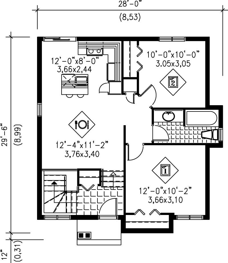
MAIN FLOOR PLAN
MAIN FLOOR PLAN
BASEMENT FLOOR PLAN
BASEMENT FLOOR PLAN
Plan Collection

Can I modify this plan?

Yes! This plan can be customized—contact us for a free quote.

Additional Notes from Designer

Please Note that the designer's office will be closed for Christmas and New Year's Day from 12/21/2024 to 1/5/2025, inclusive. Any orders or modification requests submitted during this time will be processed when the designer resumes office on 1/6/2025. This designer doesn't offer electrical layouts with their plans! For our Ontario customers - BCIN is available for this designer's plans. Please submit a modification request to receive a free quote.

House Plan Description

This alluring bungalow house has 1,459 square feet of living space. The two-story floor plan includes 2 bedrooms and 1 bathrooms.

Home Details

Summary
Plan #:157-1146
Starting at:$1255.00
Floors:1
Bedrooms:2
Full Baths:1
Half Baths:0
Garage:
Square Footage
Heated Area:1459 Sq. Ft.
First Floor:744 Sq. Ft.
Unheated Area:
Basement:715 Sq. Ft.
Dimensions
Depth:29' 6''
Architectural Styles
Building Lot Type
Narrow Lot Design

What’s Included

Most plan sets include the following:

icon text-secondary-400 includedExterior elevations

icon text-secondary-400 includedFoundation plan

icon text-secondary-400 includedFloor plans

icon text-secondary-400 includedCross sections

icon text-secondary-400 includedStaircase section

icon text-secondary-400 includedRoof truss drawings

icon text-secondary-400 includedSpecifications

icon text-secondary-400 includedConstruction details

icon text-secondary-400 includedSize of structural elements (posts, beams, concrete pads, etc.)

What’s Not Included

These items are  NOT included:

icon text-secondary-400 includedArchitectural or Engineering Stamp - handled locally if required.

icon text-secondary-400 includedSite Plan - handled locally when required.

icon text-secondary-400 includedMechanical Drawings (location of heating and air equipment and ductwork) - your subcontractors handle this.

icon text-secondary-400 includedPlumbing Drawings (drawings showing the actual plumbing pipe sizes and locations) - your subcontractors handle this.

icon text-secondary-400 includedEnergy calculations - handled locally when required.

Related House Plans

Plan Collection
Plan Collection
Plan Collection
Plan#126-1070
Starting at$1450
1113
Sq Ft
1
Story
2
Bed
1
Bath
1
Car
Plan Collection
Plan Collection
Plan Collection
Plan#126-1001
Starting at$1510
1210
Sq Ft
1
Story
2
Bed
1
Bath
0
Car
Plan Collection
Plan Collection
Plan Collection
Plan#132-1216
Starting at$1315
1200
Sq Ft
1
Story
2
Bed
1
Bath
0
Car
View All

Other Plans By This Designer

Plan Collection
Plan Collection
Plan Collection
Plan#157-1148
Starting at$1055
1110
Sq Ft
1
Story
2
Bed
1
Bath
0
Car
Plan Collection
Plan Collection
Plan Collection
Plan#157-1381
Starting at$855
1000
Sq Ft
1
Story
2
Bed
1
Bath
1
Car
Plan Collection
Plan Collection
Plan Collection
Plan#157-1405
Starting at$1350
1820
Sq Ft
2
Story
4
Bed
2
Bath
1
Car