4-Bedroom, 2119 Sq Ft Country Plan with Walk In Closet

Country home (ThePlanCollection: Plan #157-1612)

Images/Plans copyrighted by designer. Photos may reflect homeowner modifications.

About House Plan #157-1612

Sq Ft
2119
Sq Ft
Bedrooms
4
Bedrooms
Bathroom
1
Baths
Half Baths
2
Half Baths
Bedrooms
0
Cars
Bedrooms
2
Stories
Bedrooms
28' 0'
Width
Bedrooms
32
Depth
Starting at$1455.00What's included
STEP 1Bedrooms
STEP 2Bedrooms
STEP 3Bedrooms

Subtotal:$0
BedroomsBest Price Guaranteed
Plan Collection

How much will it cost to build?

Estimate your costs based on your location and materials.

Free Cost Instant Estimator

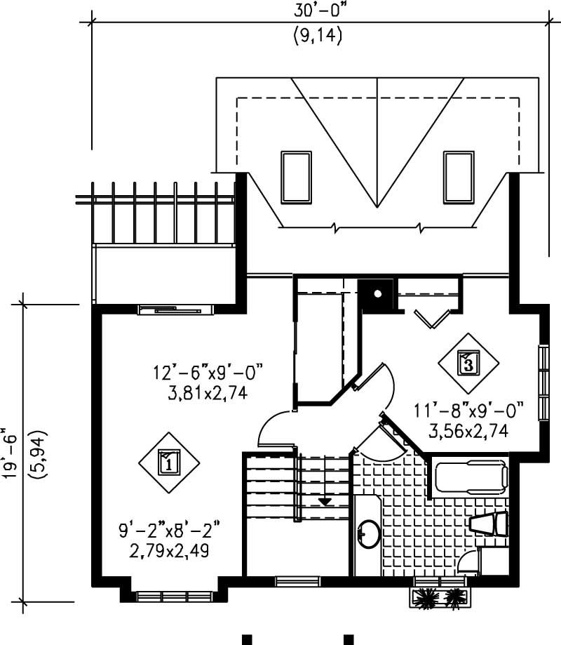
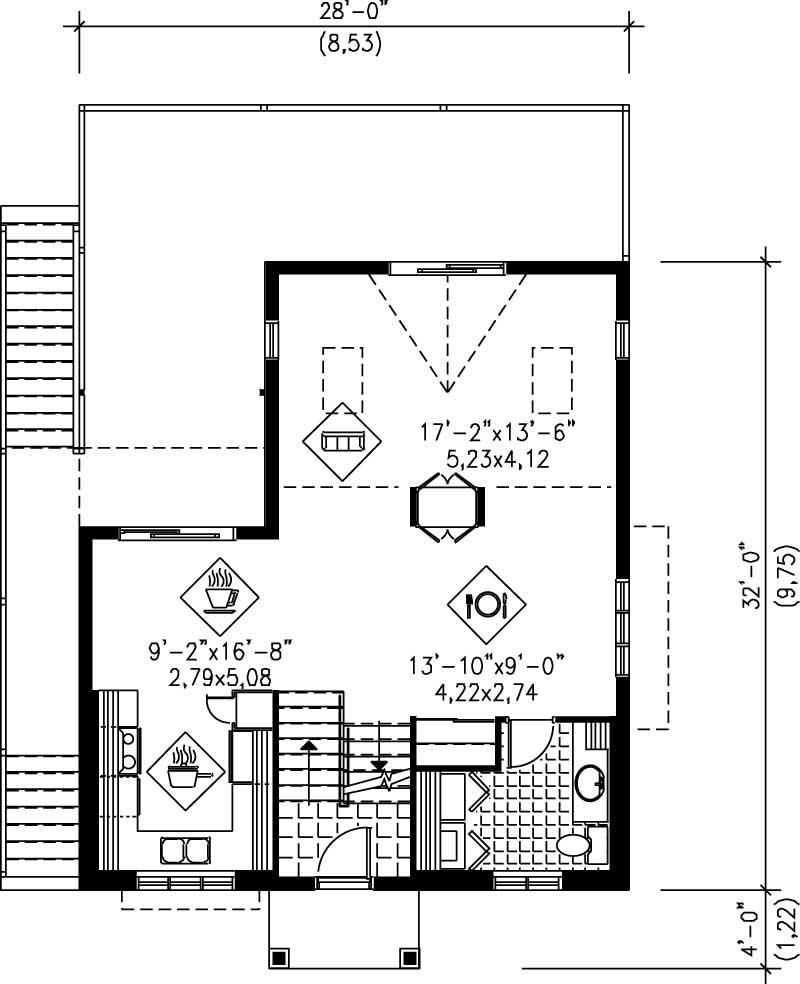
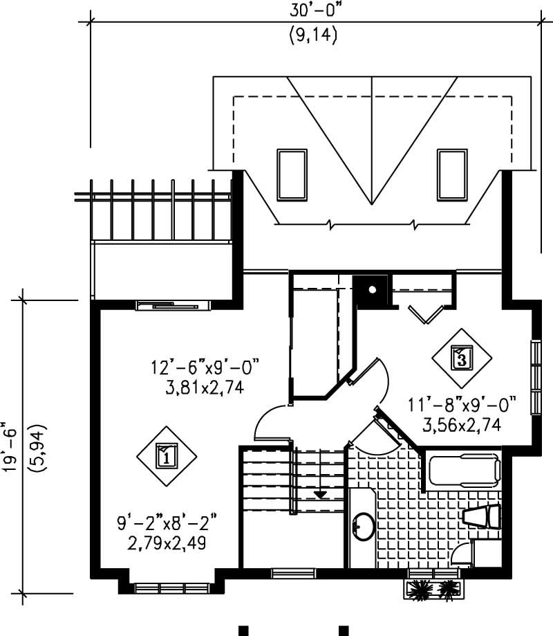
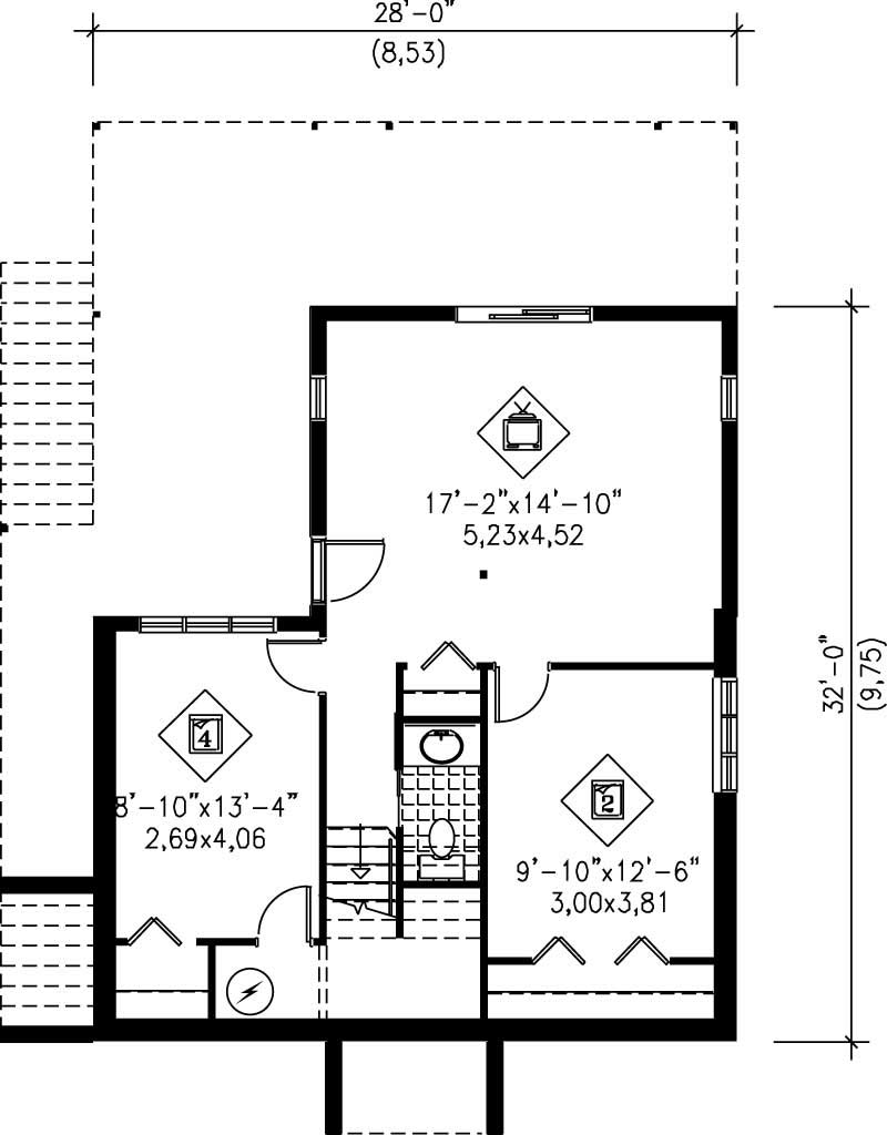
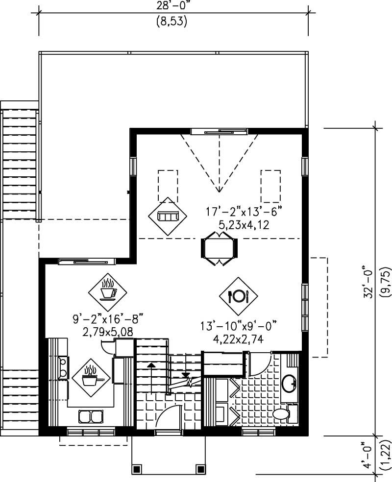
Floor Plans

MAIN FLOOR PLAN
MAIN FLOOR PLAN
UPPER FLOOR PLAN
UPPER FLOOR PLAN
BASEMENT FLOOR PLAN
BASEMENT FLOOR PLAN
Plan Collection

Can I modify this plan?

Yes! This plan can be customized—contact us for a free quote.

Additional Notes from Designer

Please Note that the designer's office will be closed for Christmas and New Year's Day from 12/21/2024 to 1/5/2025, inclusive. Any orders or modification requests submitted during this time will be processed when the designer resumes office on 1/6/2025. This designer doesn't offer electrical layouts with their plans! For our Ontario customers - BCIN is available for this designer's plans. Please submit a modification request to receive a free quote.

House Plan Description

This lovely country style home design has 2,119 square feet of living space. The two-story floor plan includes 4 bedrooms and 1.5 bathrooms.

Home Details

Summary
Plan #:157-1612
Starting at:$1455.00
Floors:2
Bedrooms:4
Full Baths:1
Half Baths:2
Garage:
Square Footage
Heated Area:2119 Sq. Ft.
First Floor:768 Sq. Ft.
Second Floor:583 Sq. Ft.
Unheated Area:
Basement:768 Sq. Ft.
Dimensions
Architectural Styles
Building Lot Type
Narrow Lot Design

What’s Included

Most plan sets include the following:

icon text-secondary-400 includedExterior elevations

icon text-secondary-400 includedFoundation plan

icon text-secondary-400 includedFloor plans

icon text-secondary-400 includedCross sections

icon text-secondary-400 includedStaircase section

icon text-secondary-400 includedRoof truss drawings

icon text-secondary-400 includedSpecifications

icon text-secondary-400 includedConstruction details

icon text-secondary-400 includedSize of structural elements (posts, beams, concrete pads, etc.)

What’s Not Included

These items are  NOT included:

icon text-secondary-400 includedArchitectural or Engineering Stamp - handled locally if required.

icon text-secondary-400 includedSite Plan - handled locally when required.

icon text-secondary-400 includedMechanical Drawings (location of heating and air equipment and ductwork) - your subcontractors handle this.

icon text-secondary-400 includedPlumbing Drawings (drawings showing the actual plumbing pipe sizes and locations) - your subcontractors handle this.

icon text-secondary-400 includedEnergy calculations - handled locally when required.

Related House Plans

Plan Collection
Plan Collection
Plan Collection
Plan#126-1105
Starting at$1855
1814
Sq Ft
2
Story
4
Bed
1.5
Bath
2
Car
Plan Collection
Plan Collection
Plan Collection
Plan#158-1186
Starting at$1500
2249
Sq Ft
2
Story
4
Bed
1.5
Bath
2
Car
Plan Collection
Plan Collection
Plan Collection
Plan#158-1173
Starting at$1755
1992
Sq Ft
2
Story
4
Bed
1.5
Bath
2
Car
View All

Other Plans By This Designer

Plan Collection
Plan Collection
Plan Collection
Plan#157-1148
Starting at$1055
1110
Sq Ft
1
Story
2
Bed
1
Bath
0
Car
Plan Collection
Plan Collection
Plan Collection
Plan#157-1381
Starting at$855
1000
Sq Ft
1
Story
2
Bed
1
Bath
1
Car
Plan Collection
Plan Collection
Plan Collection
Plan#157-1405
Starting at$1350
1820
Sq Ft
2
Story
4
Bed
2
Bath
1
Car