3-Bedroom, 1660 Sq Ft Country Plan with Second Floor Master

Main image for house plan # 11558

Images/Plans copyrighted by designer. Photos may reflect homeowner modifications.

About House Plan #120-2108

Sq Ft
1660
Sq Ft
Bedrooms
3
Bedrooms
Bathroom
2
Baths
Half Baths
0
Half Baths
Bedrooms
2
Cars
Bedrooms
2
Stories
Bedrooms
38' 0'
Width
Bedrooms
42
Depth
Starting at$1255.00What's included
STEP 1Bedrooms
STEP 2Bedrooms
STEP 3Bedrooms

Subtotal:$0
BedroomsBest Price Guaranteed
Plan Collection

How much will it cost to build?

Estimate your costs based on your location and materials.

Free Cost Instant Estimator

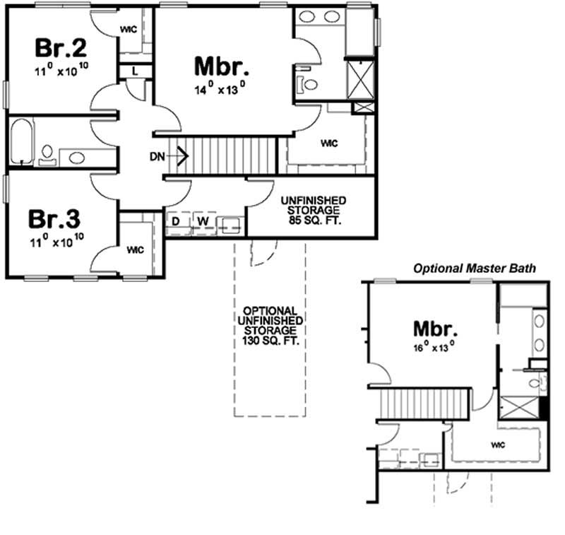
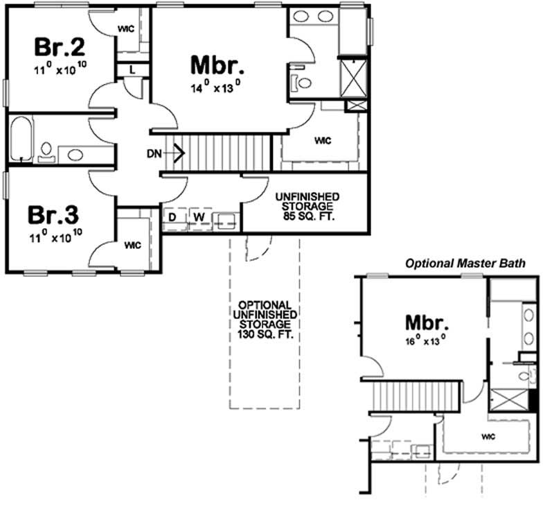
Floor Plans

FIRST FLOOR PLAN
FIRST FLOOR PLAN
SECOND FLOOR PLAN
SECOND FLOOR PLAN
Plan Collection

Can I modify this plan?

Yes! This plan can be customized—contact us for a free quote.

Additional Notes from Designer

PLEASE NOTE! If you order an optional foundation and a materials list, the materials list will NOT include the optional foundation, only the standard foundation. The designer can provide an updated materials list for a fee, so please ask for a quote! ATTENTION! All CAD orders include a PDF

House Plan Description

This lovely country style home with craftsman features (House Plan #120-2108) has over 1660 square feet of living space. The two story floor plan includes 3 bedrooms.

Home Details

Summary
Plan #:120-2108
Starting at:$1255.00
Floors:2
Bedrooms:3
Full Baths:2
Half Baths:0
Garage:
Square Footage
Heated Area:1660 Sq. Ft.
First Floor:807 Sq. Ft.
Second Floor:853 Sq. Ft.
Unheated Area:
Dimensions
Architectural Styles
Exterior Wall Material
Vinyl SidingRock/Stone
Garage Type
Attached Garage
Building Lot Type
Narrow Lot Design

What’s Included

Most plan sets include the following:

icon text-secondary-400 includedCover Page! Each home plan features the front elevation and informative reference sections including, general notes and design criteria*, abbreviations, and symbols for your plan.

icon text-secondary-400 includedElevations. Scaled elevations for the front, rear, and sides are provided. All elevations are detailed and an aerial view of the roof is provided.

icon text-secondary-400 includedFoundations. Foundations are fully engineered for each design, whether slab or basement.

icon text-secondary-400 includedMain Level Floor Plan

icon text-secondary-400 includedSecond Level Floor Plan

icon text-secondary-400 includedElectrical layout

icon text-secondary-400 includedWall and Stair Sections

What’s Not Included

These items are  NOT included:

icon text-secondary-400 includedArchitectural or Engineering Stamp - handled locally if required.

icon text-secondary-400 includedSite Plan - handled locally when required.

icon text-secondary-400 includedMechanical Drawings (location of heating and air equipment and ductwork) - your subcontractors handle this.

icon text-secondary-400 includedPlumbing Drawings (drawings showing the actual plumbing pipe sizes and locations) - your subcontractors handle this.

icon text-secondary-400 includedEnergy calculations - handled locally when required.

Related House Plans

Plan Collection
Plan Collection
Plan Collection
Plan#109-1029
Starting at$1195
1334
Sq Ft
2
Story
3
Bed
2.5
Bath
0
Car
Plan Collection
Plan Collection
Plan Collection
Plan#169-1146
Starting at$770
1664
Sq Ft
2
Story
3
Bed
2.5
Bath
2
Car
Plan Collection
Plan Collection
Plan Collection
Plan#153-1085
Starting at$1200
1374
Sq Ft
2
Story
3
Bed
2
Bath
0
Car
View All

Other Plans By This Designer

Plan Collection
Plan Collection
Plan Collection
Plan#120-2545
Starting at$1255
1763
Sq Ft
1
Story
3
Bed
2.5
Bath
3
Car
Plan Collection
Plan Collection
Plan Collection
Plan#120-2624
Starting at$1305
2077
Sq Ft
2
Story
3
Bed
2.5
Bath
2
Car
Plan Collection
Plan Collection
Plan Collection
Plan#120-1117
Starting at$1255
1699
Sq Ft
2
Story
3
Bed
2.5
Bath
2
Car