Estimate your costs based on your location and materials.
Yes! This plan can be customized—contact us for a free quote.


Yes! This plan can be customized—contact us for a free quote.
CAD files may take up to 3 business days to receive - please contact us for availability.
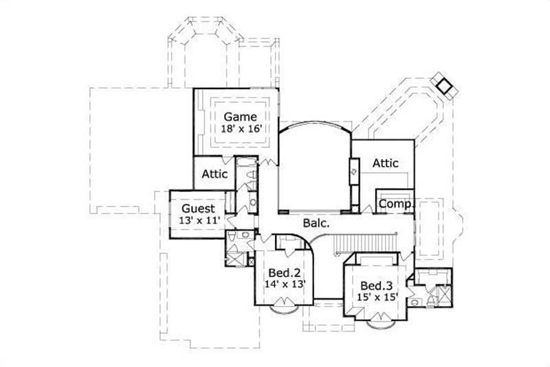
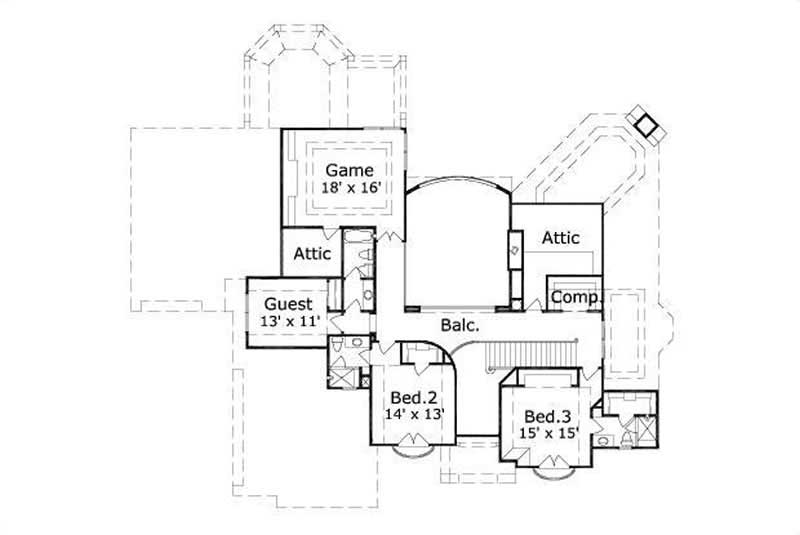
Home Plan #40687 is a two story country french home with stucco and cultured stone exterior and 4760 total living square feet. It has 4 bedrooms, 4 baths, and a split front load 3 car garage. This house plan also has 1 living area, 2 dining areas, a butler pantry, a coffee/juice bar, a covered pavillion, a dark room, a hobby room, a mud entry, an outdoor kitchen, a shop, an unfinished storage, a cabana bath, a computer alcove, a covered rear porch, an exercise room, a master with sitting area, an optional balcony, a separate master closet, a texas basement, and a wine closet.
Estimate your costs based on your location and materials.
All sales of house plans, modifications, and other products found on this site are final. No refunds or exchanges can be given once your order has begun the fulfillment process. Please see our Policies for additional information.
All plans offered on ThePlanCollection.com are designed to conform to the local building codes when and where the original plan was drawn.
The homes as shown in photographs and renderings may differ from the actual blueprints. For more detailed information, please review the floor plan images herein carefully.
Estimate your costs based on your location and materials.


