Estimate your costs based on your location and materials.
Yes! This plan can be customized—contact us for a free quote.



Yes! This plan can be customized—contact us for a free quote.
PLEASE NOTE: Not all plans from this designer can be modified! Please check before sending in a mod request. Thank you!
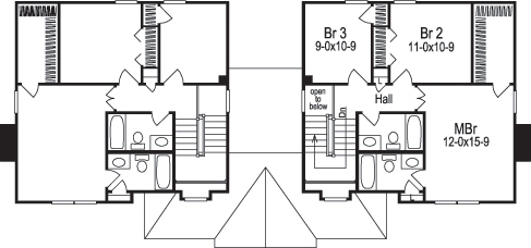
This lovely Multi-Unit style home with Traditional influences (Multi-Family House Plan #138-1119) has 1751 square feet of living space per unit with 792 s.f. on the main level & 707 s.f. on the upper level. The 2 story floor plan includes 3 bedrooms per unit.
Estimate your costs based on your location and materials.
All sales of house plans, modifications, and other products found on this site are final. No refunds or exchanges can be given once your order has begun the fulfillment process. Please see our Policies for additional information.
All plans offered on ThePlanCollection.com are designed to conform to the local building codes when and where the original plan was drawn.
The homes as shown in photographs and renderings may differ from the actual blueprints. For more detailed information, please review the floor plan images herein carefully.
Estimate your costs based on your location and materials.







