Estimate your costs based on your location and materials.
Yes! This plan can be customized—contact us for a free quote.


Yes! This plan can be customized—contact us for a free quote.
PLEASE NOTE! The CAD - Unlimited package is NOT an unlimited license - it is a license to build up to 5 homes. ATTENTION! Printed sets can ONLY be sent via ground shipping. NO priority or express shipping is available. ATTENTION! Printed sets can ONLY be sent by ground - NO priority or express shipping on printed sets!
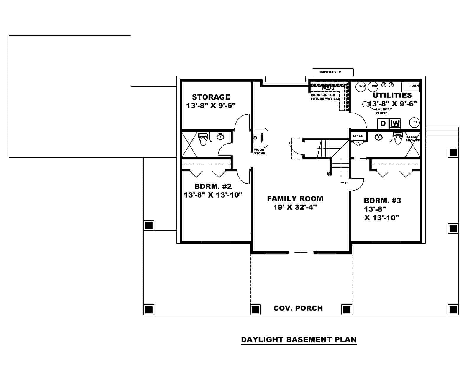
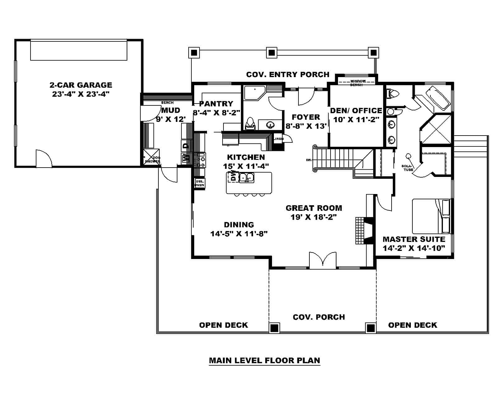
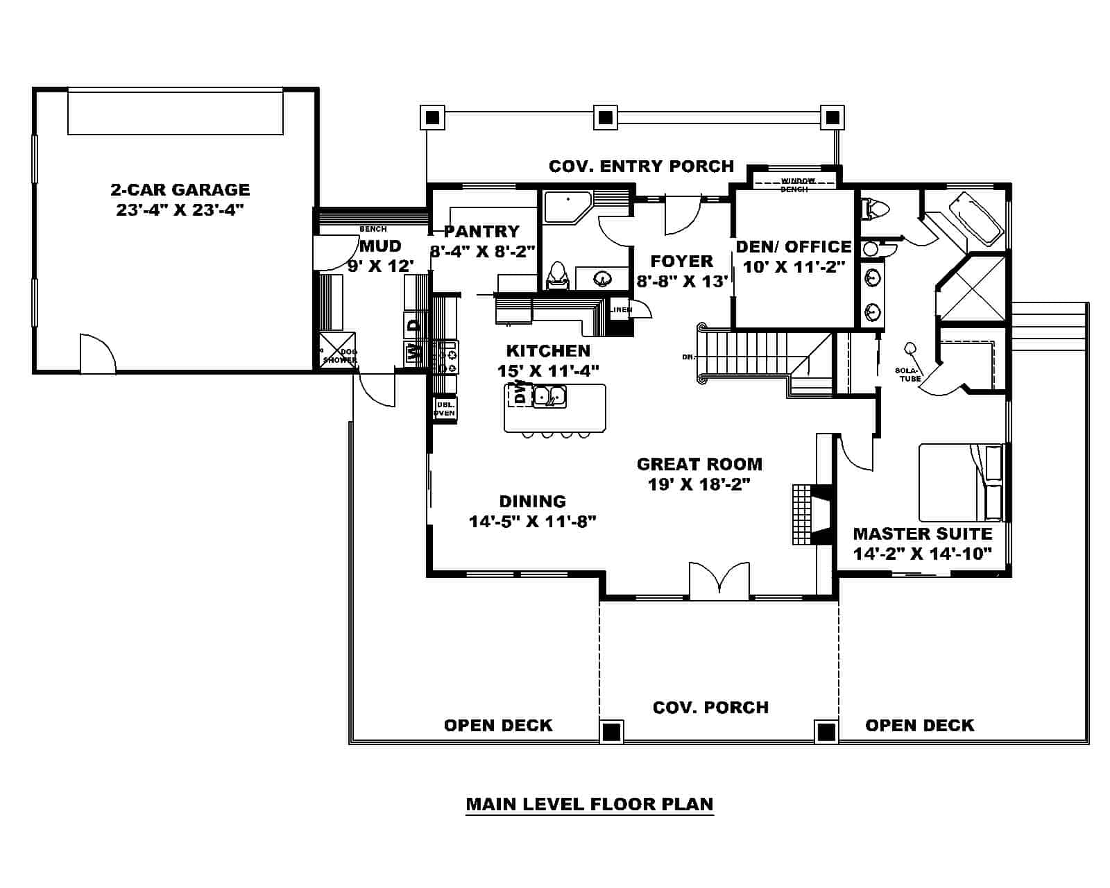
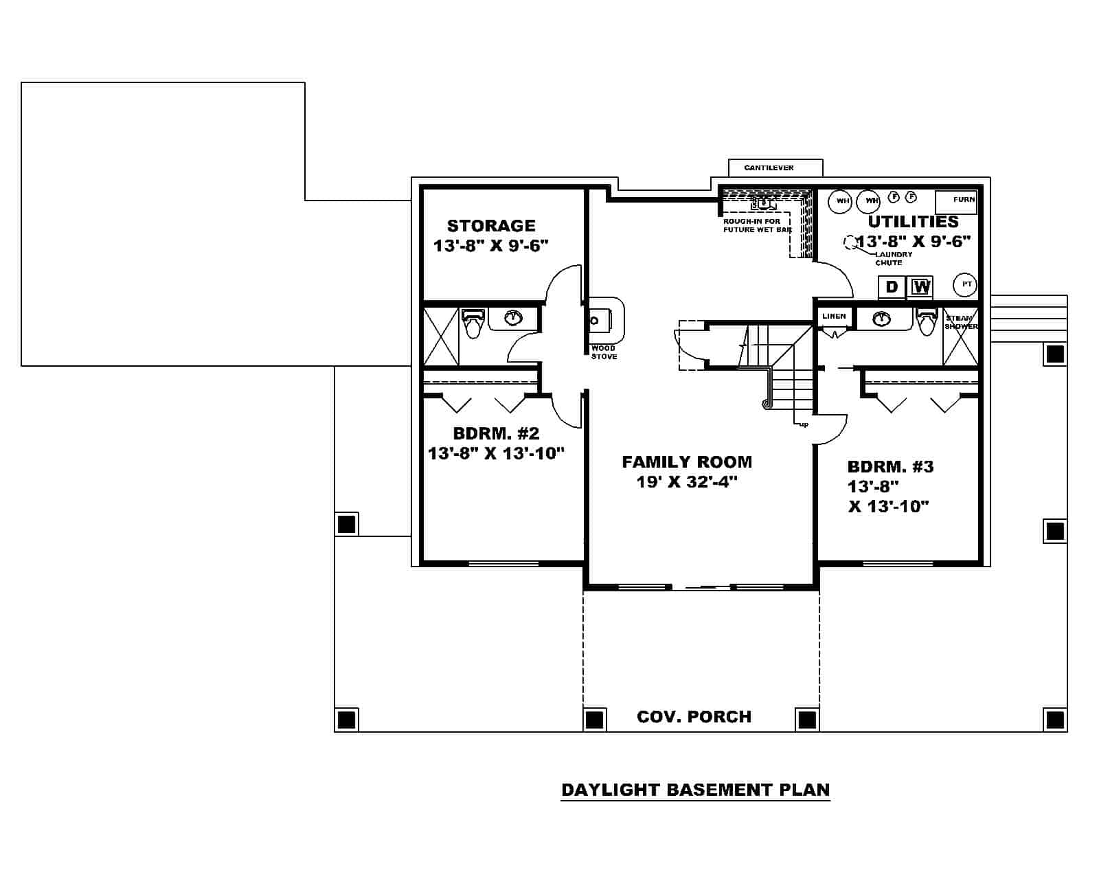
This gorgeous 3-bedroom, 3443 sq ft Farmhouse plan with den/office is exactly what you've been dreaming of! With beautiful Ranch qualities and an open floor plan, this home is perfect for entertaining and family life. The mudroom is a great place to keep all your gear organized, and the spacious great room is perfect for gathering with friends and loved ones. The dining room is perfect for hosting dinner parties or holiday meals, and the pantry provides plenty of storage space. The den/office is the perfect place to work from home or get some extra work done. The open deck and covered...
Estimate your costs based on your location and materials.
All sales of house plans, modifications, and other products found on this site are final. No refunds or exchanges can be given once your order has begun the fulfillment process. Please see our Policies for additional information.
All plans offered on ThePlanCollection.com are designed to conform to the local building codes when and where the original plan was drawn.
The homes as shown in photographs and renderings may differ from the actual blueprints. For more detailed information, please review the floor plan images herein carefully.
Estimate your costs based on your location and materials.






