Estimate your costs based on your location and materials.
Yes! This plan can be customized—contact us for a free quote.


Yes! This plan can be customized—contact us for a free quote.
On some plans, Basement Foundations, Walkout Basement Foundations, & 2x6 Conversions could take up to ONE WEEK to produce. Materials Lists could take up to FOUR WEEKS to produce and they will be for the ORIGINAL plan! Any modifications will NOT be reflected on the Materials List. NOTE FROM DESIGNER: If you purchase a CAD, you will automatically receive the unlimited build license - no need to purchase separately!
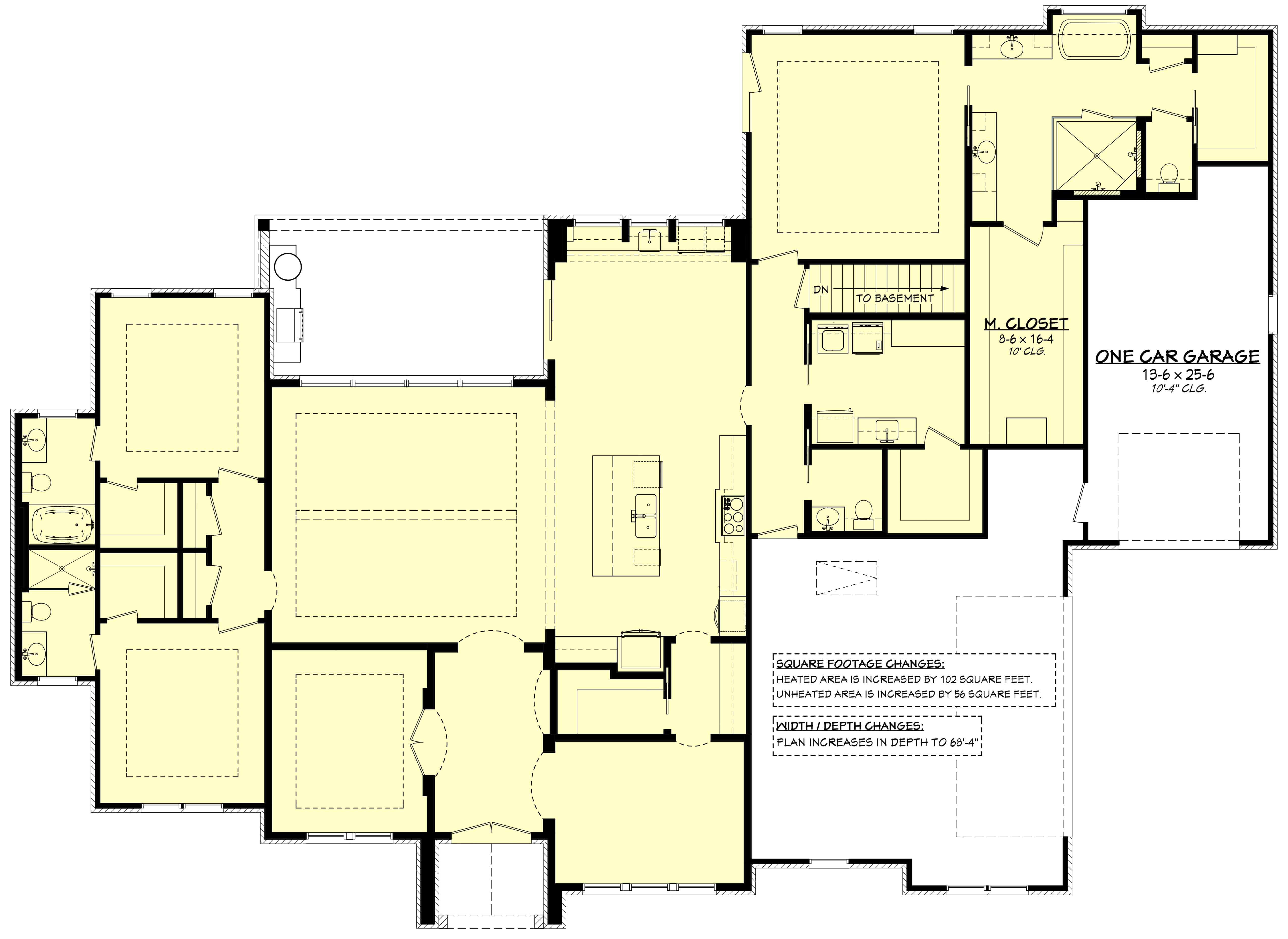
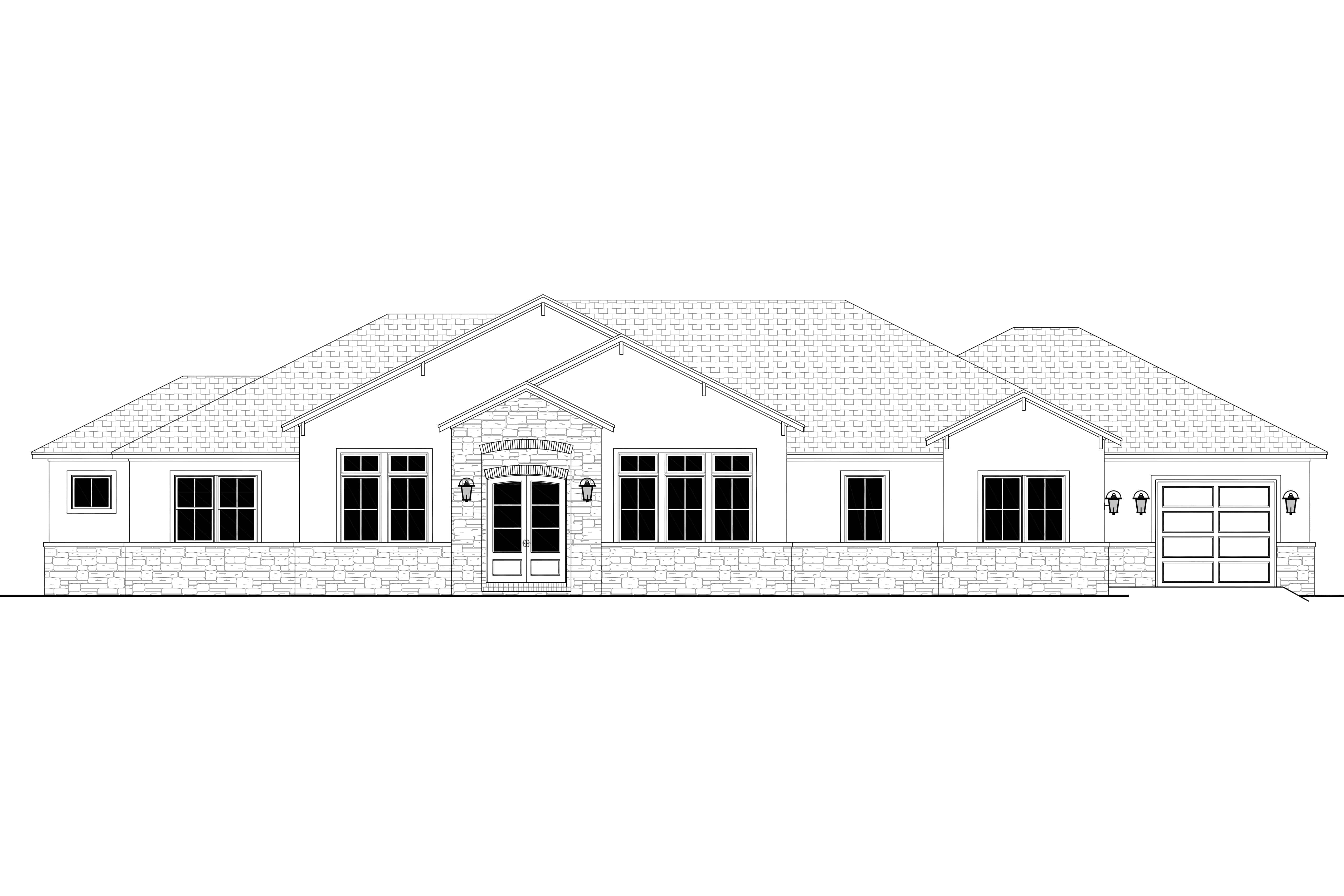
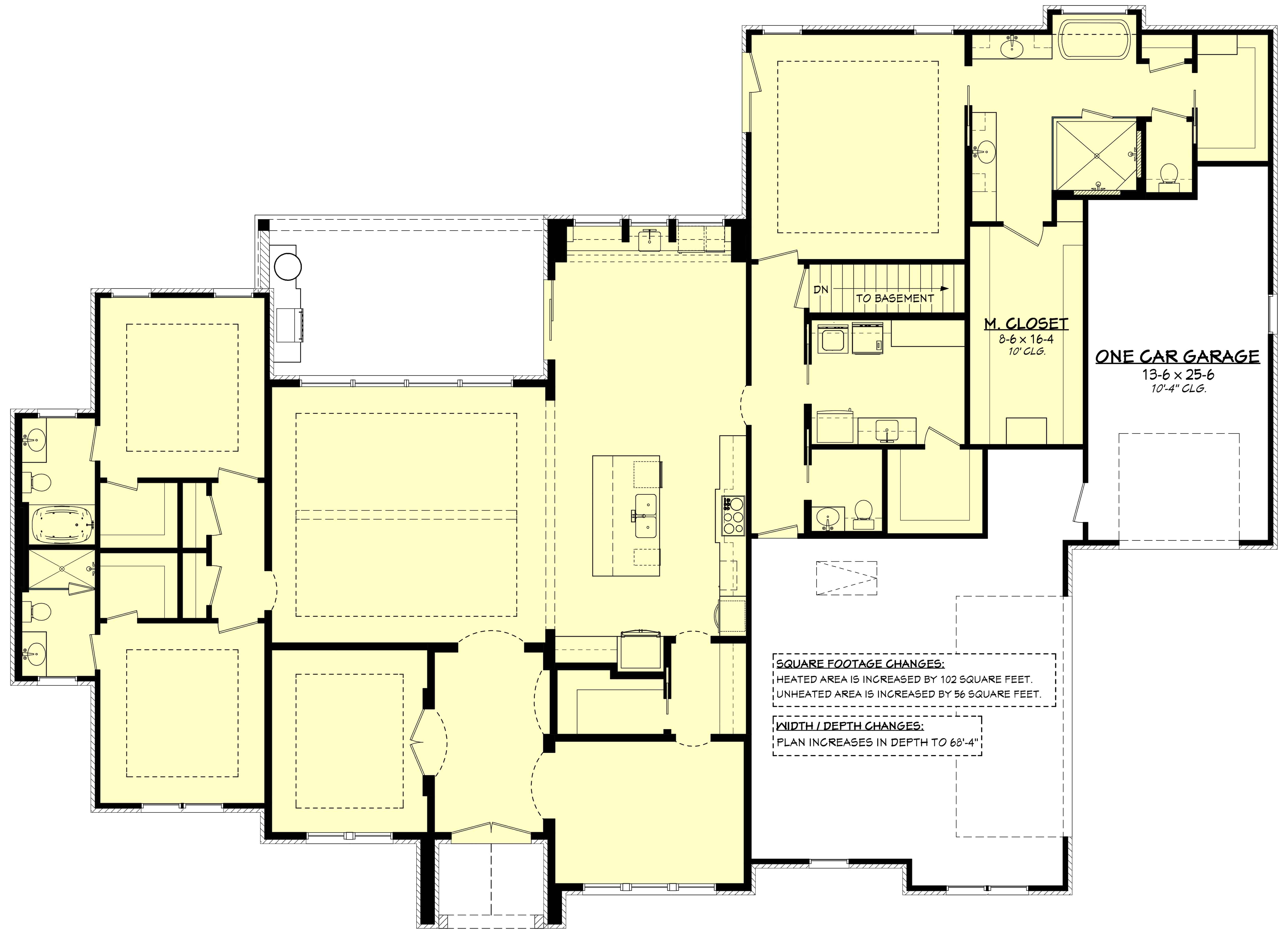
Welcome to this remarkable 3078 square foot house! A perfect blend of modern and traditional styles that includes 3 bedrooms and 3.5 baths. The volume ceilings, arch details, and Texas ranch-style create a welcoming atmosphere for any family. Your friends will be jealous as you enjoy the view from your large rear porch with plenty of room to entertain! Explore the additional features this gem offers - from its excellent master suite to its guest suites, Study/flex space, laundry room, and extra storage space! This home is just what every family needs and deserves.
Estimate your costs based on your location and materials.
All sales of house plans, modifications, and other products found on this site are final. No refunds or exchanges can be given once your order has begun the fulfillment process. Please see our Policies for additional information.
All plans offered on ThePlanCollection.com are designed to conform to the local building codes when and where the original plan was drawn.
The homes as shown in photographs and renderings may differ from the actual blueprints. For more detailed information, please review the floor plan images herein carefully.
Estimate your costs based on your location and materials.


















