Estimate your costs based on your location and materials.
Yes! This plan can be customized—contact us for a free quote.


Yes! This plan can be customized—contact us for a free quote.
PLEASE NOTE! This designer's plans do NOT come with framing!
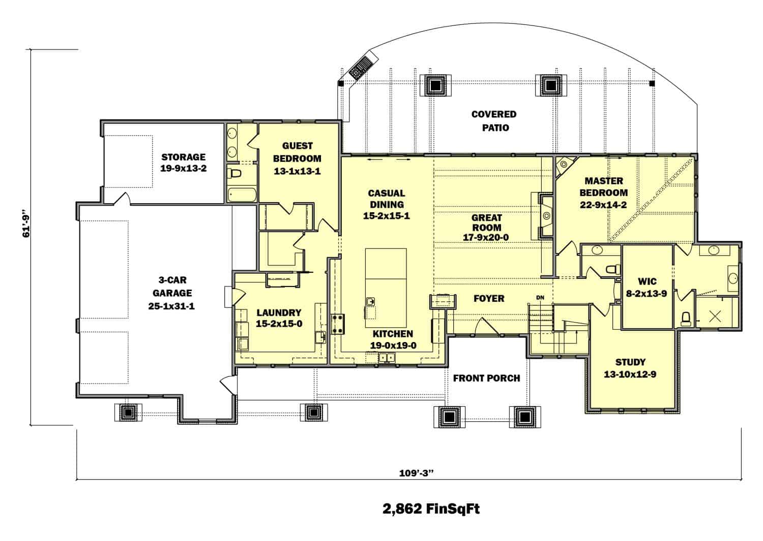
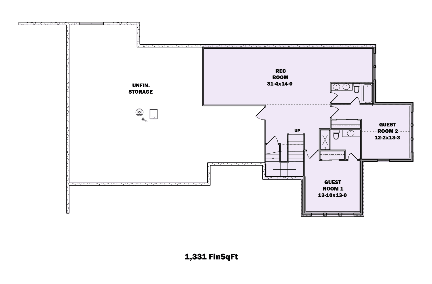
Sure to be among the top houses on your list of possible dream homes, this majestic-looking Contemporary-style Ranch will capture your heart. The house has a total heated-and-cooled area of 2,862 square feet with a 2,862-square-foot basement with 1,331 square feet that may be finished according to the suggested floor plan and 1,531 that will remain as unfinished storage. The home's 1,181-square-foot 3-car garage is located at the left front corner of the house and has a side entrance. The third bay may be used for a small car or as a workshop or...
Estimate your costs based on your location and materials.
All sales of house plans, modifications, and other products found on this site are final. No refunds or exchanges can be given once your order has begun the fulfillment process. Please see our Policies for additional information.
All plans offered on ThePlanCollection.com are designed to conform to the local building codes when and where the original plan was drawn.
The homes as shown in photographs and renderings may differ from the actual blueprints. For more detailed information, please review the floor plan images herein carefully.
Estimate your costs based on your location and materials.














